31971L0347[1]
A Tanács irányelve (1971. október 12.) a gabona hektolitertömegének mérésére vonatkozó tagállami jogszabályok közelítéséről
(2006. november 20.)
az áruk szabad mozgása területén elfogadott egyes irányelveknek Bulgária és Románia csatlakozására tekintettel történő kiigazításáról
AZ EURÓPAI KÖZÖSSÉGEK TANÁCSA,
tekintettel az Európai Gazdasági Közösséget létrehozó szerződésre és különösen annak 100. cikkére,
tekintettel a Bizottság javaslatára,
tekintettel az Európai Parlament véleményére ( 1 ),
tekintettel a Gazdasági és Szociális Bizottság véleményére ( 2 ),
mivel a tagállamokban a gabona hektolitertömegének mérésére használt szabványos módszerek eltérőek, és közvetlenül befolyásolják a közös piac működését; mivel az erre a területre vonatkozó jogszabályok közelítése nem csupán a gabona, hanem a mérőeszközök kereskedelmét is előmozdítja;
mivel ezért célszerű meghatározni egy külön jellemzőt, melynek megnevezése: "EGK-hektolitertömeg", és célszerű meghatározni azokat a műszaki követelményeket, amelyeket az ennek a referenciaértéknek a meghatározásához használt szabványos eszközöknek ki kell elégíteniük;
mivel azok a mérőeszközök, amelyek pontosságát az előbbi szabványos eszközökhöz viszonyítva határozzák meg, és amelyeket a mérőműszerekkel és a metrológiai ellenőrzés módszereivel kapcsolatos közös rendelkezésekre vonatkozó tagállami jogszabályok közelítéséről szóló, 1971. július 26-i tanácsi irányelv ( 3 ) alapján ellenőriznek, megfelelő garanciát jelentenek azok jogszerű használatára az összes tagállamban; mivel ezek a mérőeszközök ezért az egész Közösségben forgalmazhatók;
mivel a tagállamok közötti kereskedelem vonatkozásában meg kell tiltani a szabványos gabona hektolitertömegnek a Közösségben jelenleg alkalmazott különböző rendelkezések és gyakorlatok alapján történő mérését; mivel az EGK-hektolitertömeg kizárólagos és kötelező használata minden tagállamban elejét veszi a Közösségen belüli kereskedelemben az e mérési módszer körüli vitáknak;
ELFOGADTA EZT AZ IRÁNYELVET:
1. cikk
Ez az irányelv az alábbiakra vonatkozik:
a) a gabonára vonatkozó jellem2ző meghatározása, melynek megnevezése "EEG-natuurgewicht", "EWG-Schüttdichte", "peso ettolitrico CEE", "EEC standard mass per storage volume", "EØF-masse af hektoliter korn" (EGK-hektolitertömeg) , "βάρος εκατολίτρου ΕΟΚ" , "masa del hectolitro CEE", "peso hectolitro CEE" , "EY hehtolitrapaino", "EG hektolitervikt" , "хектолитрова маса ЕИО", "EHS objemová hmotnost obilí", "EMÜ puistemass", "EEK tilpummasa", "EEB hektolitro masė", "EGK-hektolitertömeg", "Il-massa standard tal-KEE għall-volum tal-preservar", "gęstość zboża w stanie zsypnym EWG", "masă hectolitrică CEE","EGS hektolitrska masa", "EHS násypná hustota obilia";
b) az EGK-hektolitertömeg meghatározására szolgáló szabványos referenciaeszköz műszaki tervezésére és kivitelezésére vonatkozó követelmények;
c) a EGK-hektolitertömeg mérésére szolgáló üzemi eszközök által teljesítendő feltételek.
2. cikk
(1) Az EGK-hektolitertömeg a kilogrammban kifejezett tömeg és a hektoliterben kifejezett térfogat hányadosa bármely gabona esetében olyan mérőeszközzel és mérési módszerrel meghatározva, amelyek megfelelnek az ezen irányelvben foglalt rendelkezéseknek.
(2) A "referencia" EGK-hektolitertömeg az I. melléklet I. és II. fejezetével összhangban tervezett és használt szabványos közösségi vagy nemzeti mérőeszközzel meghatározott EGK-hektolitertömeg.
(3) A referencia EGK-hektolitertömeget kilogramm per hektoliterben fejezik ki, két tizedesjegy pontosságig.
3. cikk
(1) A közösségi szabványos eszközt letétbe helyezik a Németországi Szövetségi Köztársaság Mérésügyi Szolgálatánál. A nemzeti eszközöket az I. melléklettel összhangban legalább tízévente egyszer összemérik a közösségi szabványos eszközzel, és az eredménytől függően egy hasonló típusú hordozható szabványos eszköz segítségével beszabályozzák.
(2) A hordozható szabványos eszköz egy súlymérő készülék nélküli eszköz, amely minden egyéb jellemzőjében megegyezik a közösségi és nemzeti szabványos eszközökkel.
4. cikk
(1) Kereskedelmi célokra a EGK-hektolitertömeg kizárólag a gabona olyan jellemzőinek megadására használható, amelyeket az ezen irányelv követelményeinek megfelelő eszközökkel határoztak meg.
(2) A tagállamok közötti gabonakereskedelem alkalmazásában a szabvány hektolitertömeg elnevezésű jellemzőn kizárólag az előzőekben meghatározott EGK-hektolitertömeget lehet érteni.
(3) A csatlakozás időpontjában az Egyesült Királyságban és Írországban törvényesen használt mértékegység (pounds per bushel) továbbra is engedélyezett marad, az "EGK-hektolitertömeg" használható az Egyesült Királyságban és Írországban az adott ország mérőeszközeivel és módszereivel mért gabonák jellemzésére. Ebben az esetben a "pounds per bushel"-ben számított méréseket az 1,25 együttható alkalmazásával át kell váltani EGK-hektolitertömeg mértékegységre.
5. cikk
A gabona EGK-hektolitertömegének kereskedelmi célokra történő meghatározására használt eszközöknek meg kell felelniük a II. melléklet követelményeinek.
Az eszközök EGK-típusjóváhagyás és EGK-elsőhitelesítés tárgyát képezik.
Az eszközöket az EGK-típusjóváhagyási igazolásban meghatározott feltételeknek megfelelően kell tervezni és használni.
Az eszközökön fel kell tüntetni az EGK-jeleket és szimbólumokat.
6. cikk
A tagállamok nem tagadhatják meg, nem tilthatják és nem korlátozhatják a EGK-hektolitertömeg meghatározására szolgáló mérőeszközök forgalomba hozatalát vagy üzembe helyezését, amennyiben ezeken a mérőeszközökön megtalálható az EGK-típusjóváhagyási jel vagy az EGK-elsőhitelesítési jel.
7. cikk
(1) A tagállamok hatályba léptetik azokat a törvényi, rendeleti és közigazgatási rendelkezéseket, amelyek szükségesek ahhoz, hogy ennek az irányelvnek az értesítéstől számított tizennyolc hónapon belül megfeleljenek, és erről haladéktalanul tájékoztatják a Bizottságot.
(2) A tagállamok közlik a Bizottsággal nemzeti joguknak azokat a főbb rendelkezéseit, amelyeket az ezen irányelv által szabályozott területen fogadnak el.
8. cikk
Ennek az irányelvnek a tagállamok a címzettjei.
I. MELLÉKLET
A GABONA EGK-HEKTOLITERTÖMEGÉNEK MÉRÉSÉRE HASZNÁLT SZABVÁNYOS MÉRŐESZKÖZÖK
I. SZERKEZETI KÖVETELMÉNYEK
1. A mérőeszköz mérőedényből, töltő berendezésből, lehúzó berendezésből, mérlegből, töltő edényből és gyűjtőládából áll.
A mérőeszköz minden része erős, alaktartó és gondosan kivitelezett, hogy a rendeltetésszerű használat során megőrizze a méreteit és alakját. A gabonával érintkező összes felület sima és gyakorlatilag nem változó, mechanikai és korróziós hatásoknak ellenálló fémből készül, (pl. sárgaréz, rozsdamentes acél).
2. Térfogatmérő
2.1. A mérőedény egyenes körhenger alakú, felső széle a tengelyére merőleges síkban simára csiszolt.
2.2. Töltésnél a mérőedény mindig ugyanabban az állásban helyezkedik el a töltőberendezés alatt.
2.3. A mérőedény felett töltési helyzetben egy töltő gyűrű van elhelyezve, amelynek a tengelyiránya és a belső átmérője megegyezik a mérőedényével. A lehúzó berendezés a két részegység között kis távolságot tartva, az érintésük nélkül mozog.
3. Töltő berendezés
3.1. A töltő berendezés záró fedéllel és szabályozó készülékkel ellátott töltő tölcsérből áll.
3.2. A töltő tölcsér csonka kúp alakú, amelyhez felül hengeres perem, alul pedig fedéllel ellátott kifolyócsonk csatlakozik hozzá.
3.3. A töltő tölcsér úgy van elhelyezve, hogy töltőállásban a tengelye függőleges, és egybeesik a mérőedény tengelyével.
3.4. A szabályozó berendezés szigorúan meghatározott profilú. Belenyúlik a kúpos kifolyócsonkba, és függőleges irányban beállítható. Tengelye egybeesik a töltő tölcsér tengelyével.
4. Lehúzó berendezés
4.1. A lehúzó berendezés lehúzó késből, vezető és húzó szerkezetből áll.
4.2. A lehúzó kés sima, vízszintesen helyezkedik el, és használat közben megőrzi az alakját.
4.3. A vezető szerkezet a lehúzó kés mozgását vezeti a töltő gyűrű alsó széle és a mérőedény felső széle között.
4.4. A húzó szerkezet a lehúzó kést folyamatos mozgással húzza át a gabonán.
4.5. A mérőedény megtöltése és lemérése után a töltőgyűrűben elhelyezkedő lehúzó késen lévő gabonafelesleget gyűjtőládában fogják fel.
5. Mérleg
5.1. A gabonával megtöltött mérőedényt egy 50& ;kg maximális terhelhetőségű, egyenlőkarú mérlegen lemérik.
5.2. A mérleg súlyserpenyőjének egyensúlyban kell lennie az üres mérőedénnyel.
6. A teljes berendezés
6.1. A mérőeszköz egyes részeit a mérőedényen és a mérlegen kívül állványon rögzítik olyan módon, hogy a mérőedény felső pereme töltési helyzetben vízszintes.
6.2. A mérőedény peremének vízszintes helyzetét a mérőeszköz vázára szerelt legalább 500 mm hosszúságú függőónnal vagy hasonló érzékenységű libellával, a mérőeszközön feltüntetett ellenőrző jelek figyelembevételével kell beállítani.
7. Az egyes alkatrészek méretei
| Mérőedény | |
| Belső átmérő | 295 mm ± & ;1 mm |
| Űrtartalom | 20& ;l ±& ;0,01 l |
| A mérőedény fenék belső oldalának távolsága a töltő tölcsér kúpos kifolyócsonkjának alsó szélétől | 500 mm ±& ;2 mm |
| A lehúzó kés távolsága a mérőedény szélétől | 0,5 mm ±& ;0,2 mm |
| Töltő gyűrű | |
| Belső átmérő | 295 mm ±& ;1 mm |
| Töltő tölcsér | |
| Felső, hengeres rész tengelyének hossza | 120 mm ±& ;2 mm |
| Kúpos rész tengelyének hossza | 240 mm ±& ;1 mm |
| Alsó kúpos kifolyócsonk tengelyének hossza | 80 mm ±& ;0,5 mm |
| Töltő tölcsér tengelyének hossza | 440 mm ±& ;3 mm |
| Felső hengeres rész belső átmérője | 390 mm ±& ;1 mm |
| Alsó kúpos kifolyócsonk belső átmérője | |
| fent (g’) | 84,5 mm ±& ;0,5 mm |
| lent (g’’) | 86,5 mm ±& ;0,5 mm |
| g’– g’’ különbsége | 2 mm ±& ;0,5 mm |
| Szabályozó berendezés | |
| Szár átmérője | 11 mm ±& ;0,2 mm |
| Váll-átmenet sugara | 16 mm ±& ;0,5 mm |
| Hengeres rész magassága | 5 mm ±& ;0,5 mm |
| Hengeres rész átmérője | 33 mm ±& ;0,2 mm |
| Lehúzó berendezés | |
| Lehúzó berendezés terhelősúlyának tömege | 5& ;kg ±& ;0,1 kg |
| Töltőedény | |
| Űrtartalma a szegélyig | 24& ;l ±& ;0,1 l |
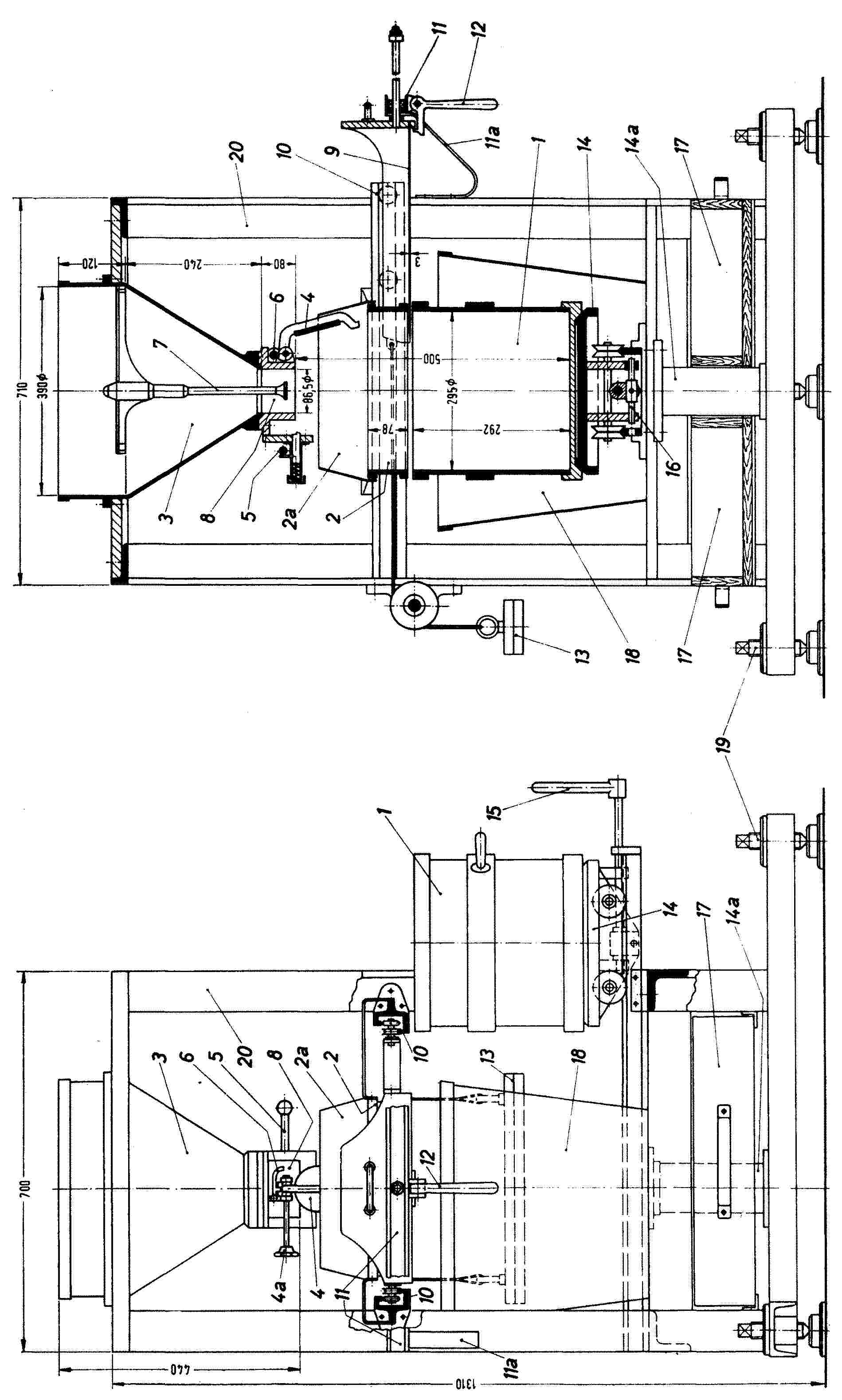
8. Ábra A szabványos mérőeszköz a mellékelt ábrán látható.
II. ÜZEMELTETÉSI ÚTMUTATÓ
A megvizsgálni kívánt gabona nem lehet szennyezett, a hőmérséklete hozzávetőlegesen egyezzen meg a mérőhelyiség hőmérsékletével. Legyen légszáraz állapotban, azaz a mérőhelyiség levegőjével higroszkopikus egyensúlyban legyen. Ennek érdekében a gabonát betöltés előtt mintegy 10 órán keresztül vékony rétegben elterítve, háborítatlanul kell szárítani. A környezeti levegő relatív nedvessége nem lehet 60& ; %-nál magasabb.
A gabona hektolitertömege függ a felhasznált gabonamennyiségtől és a töltő tölcsérbe való betöltés módjától, ezért az alábbi módon kell eljárni:
A mellékelt ábrának megfelelően az (1) mérőedényt töltési helyzetben úgy kell elhelyezni, hogy a tengelye egybeessen a (2) töltő gyűrű és a (3) töltő tölcsér tengelyével, majd a (15) kézi fogantyú mozgatásával és a (16) csappal rögzíteni kell. Ezután a (9) lehúzó kés a kiindulási helyzetébe állítva a (12) fogantyúval ebben a helyzetében rögzítésre kerül. A (19) talpcsavarokkal a (20) állványt mindig úgy kell beállítani, hogy az (1) mérőedény felső széle a töltés során vízszintes síkban legyen.
Mintegy 24& ;l mérendő gabonát a töltőedénybe (az ábrán nem látható), majd azt a (3) töltő tölcsérbe kell önteni, miután ellenőrizték, hogy a (8) kifolyócsonkot lezáró (4) záró fedél lezárt állapotban van. A záró csappantyú (5) tolóreteszét meghúzva a (4) csappantyú kinyílik (azt a (6) zár tartja nyitott állapotban), és a gabona kifolyik a (3) tölcsérből az (14) aljzaton álló (1) mérőedénybe. Az átömlést zavaró hatások ellen a (2a) keret véd. Az (14) aljzat görgői sínen futnak, amelynek behajlását a (14a) támaszték akadályozza meg.
Az (1) mérőedény állandóan egyenletes töltésének biztosítása érdekében a (3) töltő tölcsért (mintegy 4 l) gabonával túltöltik, ami az (1) mérőedény teljes megtöltése után a (2) töltő gyűrűben maradt. Annak érdekében, hogy ezt a mennyiséget elválasszák az (1) mérőedény tartalmától, meg kell húzni a (11) kereszttartón csuklósan elhelyezett (9) lehúzó kés (12) reteszét, hogy az szabaddá tegye a lehúzó kést. A (13) húzósúllyal működtetett lehúzó késnek elöl olyan vágó éle van, amellyel az (1) mérőedény szélén lévő - az egyenletes lehúzást akadályozó - gabonaszemcséket át lehet vágni. Ha a (9) lehúzó kés elérte a végállást, akkor az (14) aljzaton álló (1) mérőedényt a (15) kézi fogantyúval kihúzzák, az aljzatról leemelik, ráteszik a mérlegre és ±& ;5 g pontossággal megmérik a töltési súlyát.
A lehúzó kést visszahúzva a kiinduló helyzetébe a rajta lévő felesleges gabona belehullik a (17) gyűjtőládába, miközben a (18) palástról leugró gabonaszemeket a gyűjtőládába irányítják. Ezután a (6) zárat a (4a) kézi kerék elforgatásával kioldják, és a (4) csappantyú újra záró állásba kerül.
Ha ugyanezzel a mintával további mérést szükséges végezni, akkor az (1) mérőedényből származó gabonát össze kell keverni a (17) gyűjtőládából származó gabonával.
A gabona hektolitertömege kg/hl-ben úgy határozható meg, hogy a mérőeszköz által megadott N érték 0,2 hl-rel osztandó.
III. ELLENŐRZÉS ÉS BESZABÁLYOZÁS
1. Méretek és térfogatok
Az 1.7. pont alatt szereplő méreteket és térfogatokat megfelelő pontosságú mérőeszközökkel kell ellenőrizni.
2. A működés ellenőrzése
A szabványos nemzeti mérőeszközöket egy hordozható szabványos eszköz segítségével össze kell mérni a közösségi szabványos mérőeszközökkel, és szükség szerint be kell szabályozni őket.
2.1. Az ellenőrzés céljaira a Manitoba búzát használják, amelynek a szemei megközelítőleg gömb alakúak. Ennek a búzafajtának a hektolitertömege legalább 80& ;kg/hl, és higroszkópos egyensúlyban kell lennie a környezeti levegővel. Hat mérési műveletet végeznek a II. pont utasításaival összhangban. Ha a P az ellenőrizendő szabványos eszközt jelenti és N az EGK szerinti szabványos mérőeszközt, akkor a méréseket a következő sorrendben végzik:
| Összehasonlítás száma: | 1 | 2 | 3 | 4 | 5 | 6 |
| Mérõeszközök sorrendje: | NP | PN | NP | PN | NP | PN |
2.1.1. A P által mért egyes értékek és azok középértékének különbsége nem haladhatja meg a ±& ;10 g-ot.
2.1.2. A mérőeszköz hibája a P-n leolvasott hat mérési eredmény középértékének és az N-en leolvasott hat mérési eredmény középértékének különbsége. A maximálisan megengedhető hiba ±& ;10 g.
2.1.3. Amennyiben a 2.1.1. és 2.1.2. pontban meghatározott maximális hibát túllépik, ennek oka lehet az, hogy a gabonaszemek még mindig nem megfelelő mértékben homogének; ekkor szét kell teríteni őket, és állni hagyni a mérési helyen további tíz órán keresztül, majd a 2.1. pont szerinti ellenőrzést meg kell ismételni.
2.1.4. Amennyiben csak a 2.1.2. pont szerinti maximális megengedhető hibát lépik túl, a mérőeszközt be kell szabályozni.
A mérőeszközön leolvasható értékeket a szabályozó berendezés (7) magasabb vagy alacsonyabb pozícióba történő mozdítása segítségével meg lehet változtatni.
A szabályozó berendezés (7) elmozdítását követően megismétlik a 2.1. pontban meghatározott ellenőrzést.
3. Mérleg
3.1. A 10& ;kg és 20& ;kg közötti terhek esetében a mérleg hibája nem haladhatja meg a teher ±& ;0,01& ;%-át.
3.2. A használt ellensúlyok összes hibája nem haladhatja meg a névleges tömegük ±& ;0,02& ;%-át.
A mellékelt ábra jelmagyarázata
1. Térfogatmérő
2. Betöltő gyűrű és (2a) gallér
3. Betöltő garat
4. Záróberendezés és (4a) kézikerék
5. Záróberendezés csavarja
6. Záróberendezés retesze
7. Szabályozó berendezés
8. Kiömlő kúp
9. Lehúzólap
10. Lehúzólap vezetéke
11. Keresztdarab és (11a) támaszték
12. Lehúzólap csavarja
13. Vonósúly
14. Kocsi és (14a) síntámaszték
15. Kocsi karja
16. Záró rúd
17. Tartály
18. Gallér
19. Talpcsavarok
20. Keret

II. MELLÉKLET
A GABONA EGK-HEKTOLITERTÖMEGÉNEK MEGHATÁROZÁSÁRA HASZNÁLT MÉRŐESZKÖZÖK
1. A gabona EGK-hektolitertömegének meghatározására használt mérőeszközök az alábbi jellemzőkkel rendelkeznek:
a) úgy kerültek tervezésre és úgy készültek, hogy biztosítsák a mérések kielégítő megismételhetőségét és reprodukálhatóságát;
b) a szabványos hektolitertömeg maximális megengedhető hibája a szabványos mérőeszköz eredményének plusz vagy mínusz ötezred része;
c) a térfogatmérésnél használt tartály maximális megengedhető relatív hibája plusz vagy mínusz kettőezred rész;
d) a súlymérő eszköz maximális megengedhető relatív hibája plusz vagy mínusz egyezred rész;
e) az egyes gabonák esetében mért külön értékek és a hat egymást követő mérésből megállapított szabványos hektolitertömeg középérték közötti különbség nem több mint a középérték plusz vagy mínusz háromezred része.
2. Mindegyik mérőeszközön található egy jól látható tájékoztató tábla, amelyen jól olvashatóan és tartósan a következő adatok olvashatók:
a) az EGK-típus-jóváhagyási jel;
b) a gyártó azonosító jele vagy megnevezése;
c) a gyártó leírása (ha van);
d) egy azonosítási szám és a gyártás éve;
e) a térfogatmérő névleges térfogata és a használati útmutató vagy arra való utalás.
( 1 ) HL L 63., 1969.5.28., 27. o.
( 2 ) HL C 4., 1969.1.14., 4. o.
( 3 ) HL L 202., 1971.9.6., 1. o.
Lábjegyzetek:
[1] A dokumentum eredetije megtekinthető CELEX: 31971L0347 - https://eur-lex.europa.eu/legal-content/HU/ALL/?uri=CELEX:31971L0347&locale=hu Utolsó elérhető, magyar nyelvű konszolidált változat CELEX: 01971L0347-20070101 - https://eur-lex.europa.eu/legal-content/HU/ALL/?uri=CELEX:01971L0347-20070101&locale=hu