32008R1235[1]
A Bizottság 1235/2008/EK rendelete ( 2008. december 8. ) a 834/2007/EK tanácsi rendeletben az ökológiai termékek harmadik országból származó behozatalára előírt szabályozás végrehajtására vonatkozó részletes szabályok meghatározásáról
A BIZOTTSÁG 1235/2008/EK RENDELETE
(2008. december 8.)
a 834/2007/EK tanácsi rendeletben az ökológiai termékek harmadik országból származó behozatalára előírt szabályozás végrehajtására vonatkozó részletes szabályok meghatározásáról
I. CÍM
BEVEZETŐ RENDELKEZÉSEK
1. cikk
Tárgy
E rendelet meghatározza a 834/2007/EK rendelet 32. és 33. cikkében előírt megfelelő termékek behozatalára és egyenértékű garanciákat nyújtó termékek behozatalára vonatkozó részletes szabályokat.
2. cikk
Fogalommeghatározások
E rendelet alkalmazásában:
1. "ellenőrzési tanúsítvány": a 834/2007/EK rendelet 33. cikke (1) bekezdésének d) pontjában említett ellenőrzési tanúsítvány, amely egy szállítmányra vonatkozik;
2. "írásbeli igazolás": a 889/2008/EK bizottsági rendelet ( 1 ) 68. cikkében és e rendelet 6. cikkében említett dokumentum, amelynek mintája e rendelet II. mellékletében található;
3. "szállítmány": a Kombinált Nómenklatúra egy vagy több kódja alá tartozó termékek olyan mennyisége, amelyre egyetlen ellenőrzési tanúsítvány vonatkozik, amely szállítása ugyanazon szállítóeszközzel történik, és amely ugyanabból a harmadik országból érkezik;
4. "első címzett": a 889/2008/EK rendelet 2. cikkének d) pontjában meghatározott természetes vagy jogi személy;
5. "a szállítmány vizsgálata": az érintett tagállam illetékes hatósága által a 882/2004/EK európai parlamenti és tanácsi rendeletben ( 2 ) előírt hivatalos ellenőrzések keretében a 834/2007/EK rendelet, a 889/2008/EK rendelet és e rendelet követelményei teljesítésének szisztematikus okmányellenőrzések, szúrópróbaszerű azonossági ellenőrzések, valamint - kockázatértékelésük alapján adott esetben - fizikai ellenőrzések révén végzett vizsgálata a szállítmány Unión belüli szabad forgalomba bocsátását megelőzően e rendelet 13. cikkének megfelelően;
6. "érintett tagállam illetékes hatósága": a tagállamok által a 834/2007/EK rendelet 27. cikkének (1) bekezdése alapján kijelölt, a szállítmány vizsgálatáért és az ellenőrzési tanúsítvány hitelesítéséért felelős vámhatóság, élelmiszer-biztonsági hatóság vagy egyéb hatóság;
7. "értékelő jelentés": a 834/2007/EK rendelet 32. cikkének (2) bekezdésében és 33. cikkének (3) bekezdésében említett ISO 17011 szabvány követelményeinek megfelelő független harmadik fél vagy egy megfelelő illetékes hatóság által kiadott értékelő jelentés, amely információkat tartalmaz a dokumentumok ellenőrzéséről, beleértve az e rendelet 4. cikke (3) bekezdésének b) pontjában és 11. cikke (3) bekezdésének b) pontjában említett leírásokat, a kritikus helyszíneket is magában foglaló hivatali ellenőrzésekről, és a reprezentatív harmadik országokban elvégzett kockázatorientált közvetlen megfigyelésen alapuló ellenőrzésekről;
8. "akvakultúra-termékek": az 1380/2013/EU európai parlamenti és tanácsi rendelet ( 3 ) 4. cikke (1) bekezdésének 34. pontjában meghatározott akvakultúra-termékek;
9. "feldolgozatlan": feldolgozatlan a 852/2004/EK rendelet ( 4 ) 2. cikke (1) bekezdésének n) pontja szerinti feldolgozatlan termékek fogalommeghatározása szerint, függetlenül a csomagolási vagy címkézési műveletektől;
10. "feldolgozott": feldolgozott a 852/2004/EK rendelet 2. cikke (1) bekezdésének o) pontja szerinti feldolgozott termékek fogalommeghatározása szerint, függetlenül a csomagolási vagy címkézési műveletektől;
11. "beléptetési pont": a szabad forgalomba bocsátás helye.
II. CÍM
MEGFELELŐ TERMÉKEK BEHOZATALA
1. FEJEZET
A megfelelőség tekintetében elismert ellenőrző szervek és ellenőrző hatóságok jegyzéke
3. cikk
A megfelelőség tekintetében elismert ellenőrző szervek és ellenőrző hatóságok jegyzékének összeállítása és tartalma
(1) A Bizottság a 834/2007/EK rendelet 32. cikke (2) bekezdésének megfelelően jegyzéket állít össze a megfelelőség tekintetében elismert ellenőrző szervekről és ellenőrző hatóságokról. A jegyzéket e rendelet I. mellékletében kell közzétenni. A jegyzék elkészítésére és módosítására vonatkozó eljárások e rendelet 4., 16. és 17. cikkében kerülnek meghatározásra. E rendelet 16. cikkének (4) bekezdése és 17. cikke értelmében a jegyzéket az interneten nyilvánosan hozzáférhetővé kell tenni.
(2) A jegyzék az ellenőrző szervekkel vagy ellenőrző hatóságokkal kapcsolatban minden olyan szükséges információt tartalmaz, amely lehetővé teszi annak ellenőrzését, hogy a Közösség területén forgalomba hozott termékeket, a 834/2007/EK rendelet 32. cikkének (2) bekezdése szerint elismert valamely ellenőrző szerv vagy hatóság ellenőrizte-e, különös tekintettel a következő adatokra:
a) az ellenőrző szerv vagy ellenőrző hatóság neve és címe, beleértve azok e-mail címét és internetes elérhetőségét, illetve kódszámát;
b) az érintett és a termékek származási helyeként megjelölt harmadik országok;
c) a harmadik országokra vonatkozóan feltüntetett érintett termékkategóriák;
d) a jegyzékbe történő felvétel érvényességének határideje;
e) azon internetes oldal címe, ahol az ellenőrzési rendszer hatálya alá tartozó gazdasági szereplők jegyzéke, többek között azok tanúsított státusa, az érintett termékkategóriák, valamint a felfüggesztett és tanúsításától megfosztott gazdasági szereplők és termékek találhatók.
4. cikk
A megfelelőség tekintetében elismert ellenőrző szervek és ellenőrző hatóságok jegyzékébe történő felvételi kérelemre vonatkozó eljárás
(1) A Bizottság valamely ellenőrző szervnek vagy ellenőrző hatóságnak az elismeréséről és a 3. cikkben meghatározott jegyzékbe történő felvételéről az érintett ellenőrző szerv vagy ellenőrző hatóság képviselője által számára megküldött, a 17. cikk (2) bekezdése szerint a Bizottság által rendelkezésre bocsátott mintadokumentumnak megfelelő kérelem kézhezvétele után dönt. Az első jegyzék összeállítása során a Bizottság csak a 2018. október 31. előtt beérkezett hiánytalan kérelmeket veszi figyelembe.
(2) Kérelmet a Közösség területén vagy valamely harmadik országban létrehozott ellenőrző szerv és ellenőrző hatóság terjeszthet be.
(3) A kérelemhez minden olyan szükséges információt tartalmazó technikai dokumentációt kell csatolni, amelynek alapján a Bizottság megbizonyosodhat arról, hogy a Közösség felé irányuló exportra szánt ökológiai termékek mindegyike megfelel a 834/2007/EK rendelet 32. cikkének (1) és (2) bekezdésében meghatározott feltételeknek; ezek az információk a következők:
a) általános ismertető az ellenőrző szerv vagy ellenőrző hatóság az érintett harmadik országban vagy harmadik országokban végzett tevékenységéről, beleértve az érintett gazdasági szereplők becsült számát, valamint az érintett harmadik országból vagy harmadik országokból származó és a 834/2007/EK rendelet 32. cikkének (1) és (2) bekezdése szerint a Közösségbe irányuló exportra szánt mezőgazdasági termékek és élelmiszerek várható jellegének és mennyiségének feltüntetését;
b) a 834/2007/EK rendelet II., III. és IV. címének, illetve a 889/2008/EK rendelet rendelkezéseinek az adott harmadik országban vagy valamennyi érintett harmadik országban történő végrehajtására vonatkozó részletes ismertetés;
c) a 834/2007/EK rendelet 32. cikke (2) bekezdésének negyedik albekezdésében meghatározott értékelő jelentés másolata, amely:
i. igazolja, hogy az ellenőrző szerv vagy ellenőrző hatóság az értékelés alapján kielégítő módon eleget tud tenni a 834/2007/EK rendelet 32. cikkének (1) és (2) bekezdésében megállapított feltételeknek;
ii. garanciát nyújt a 834/2007/EK rendelet 27. cikkének (2), (3), (5), (6) és (12) bekezdésében említett elemek tekintetében;
iii. biztosítja, hogy az ellenőrző szerv vagy ellenőrző hatóság megfelel a 889/2008/EK rendelet IV. címében meghatározott ellenőrzési követelményeknek és óvintézkedéseknek; valamint
iv. megerősíti, hogy az említett feltételek és követelmények szerint ellenőrzési tevékenységeit hatékonyan végezte;
d) annak igazolása, hogy az ellenőrző szerv vagy ellenőrző hatóság tevékenységeiről értesítette az érintett harmadik ország hatóságait, és vállalja az érintett harmadik ország hatóságai által vele szemben támasztott jogi követelmények betartását;
e) azon internetes oldal címe, ahol az ellenőrzési rendszer hatálya alá tartozó gazdasági szereplők jegyzéke megtalálható, valamint egy olyan kapcsolattartó pont megadása, ahol az említett szereplők tanúsított státusára, az érintett termékkategóriákra, valamint a felfüggesztett és tanúsításától megfosztott gazdasági szereplőkre és termékekre vonatkozóan azonnali információ áll rendelkezésre;
f) az e rendelet 5. cikke rendelkezéseinek való megfelelés vállalása;
g) az ellenőrző szerv vagy ellenőrző hatóság, illetve a Bizottság által lényegesnek tartott bármely egyéb információ.
(4) Az ellenőrző szerv vagy ellenőrző hatóság által a jegyzékbe történő felvétel iránt beadott kérelem elbírálása során, és a felvételt követően bármikor, a Bizottság további információkat kérhet be, beleértve a független szakértők által végzett egy vagy több helyszíni vizsgálatról készített jelentések bemutatását. A Bizottság továbbá, kockázatértékelés alapján, illetve szabálytalanság gyanúja esetén, az általa kijelölt szakértők vezetésével helyszíni vizsgálatot szervezhet.
(5) A Bizottság elbírálja, hogy a (3) bekezdésben említett technikai dokumentáció, illetve a (4) bekezdésben említett információk kielégítők-e, és ezután határoz az ellenőrző szerv vagy ellenőrző hatóság elismeréséről és a jegyzékbe történő felvételéről. A Bizottság határozatát a 834/2007/EK rendelet 37. cikkének (2) bekezdésében említett eljárással összhangban hozza meg.
5. cikk
A megfelelőség tekintetében elismert ellenőrző szervek és ellenőrző hatóságok jegyzékének kezelése és felülvizsgálata
(1) Egy ellenőrző szerv vagy ellenőrző hatóság csak abban az esetben nyerhet felvételt a 3. cikkben említett jegyzékbe, ha eleget tesz a következő követelményeknek:
a) amennyiben, az ellenőrző szerv vagy ellenőrző hatóság jegyzékbe történő felvételét követően, az ellenőrző szerv vagy ellenőrző hatóság által alkalmazott intézkedések tekintetében bármilyen változás történik, az adott ellenőrző szerv vagy ellenőrző hatóság értesíti a Bizottságot; az ellenőrző szervvel vagy ellenőrző hatósággal kapcsolatos, a 3. cikk (2) bekezdésében említett információk módosítására irányuló kérelmekről szintén tájékoztatni kell a Bizottságot;
b) a jegyzékben szereplő ellenőrző szerv vagy ellenőrző hatóság folyamatosan hozzáférhetővé teszi és kérésre azonnal rendelkezésre bocsátja a harmadik országban végzett ellenőrzési tevékenységével kapcsolatos információkat; a Bizottság által kijelölt szakértőket beengedi irodáiba és egyéb létesítményeibe;
c) az ellenőrző szerv vagy ellenőrző hatóság minden év március 31-ig rövid éves jelentést küld a Bizottság részére; az éves jelentésben a 4. cikk (3) bekezdésében említett technikai dokumentációban szereplő adatok frissítése szerepel; az éves jelentés elsősorban az ellenőrző szerv vagy ellenőrző hatóság által az előző év során a harmadik országban elvégzett ellenőrzési tevékenységeket, azok eredményét, a tapasztalt szabálytalanságokat és jogsértéseket, illetve a megtett korrekciós intézkedéseket ismerteti; az éves jelentés tartalmazza továbbá a legújabb értékelő jelentést vagy egy ilyen jelentés frissített változatát, a 834/2007/EK rendelet 32. cikkének (2) bekezdésében említett rendszeres helyszíni értékelés, felügyelet és többéves újraértékelés eredményeit; a Bizottság bármely további, általa szükségesnek vélt információt kérhet;
d) a beérkezett információkra figyelemmel a Bizottság bármikor módosíthatja az ellenőrző szervvel vagy ellenőrző hatósággal kapcsolatos adatokat, és felfüggesztheti az adott szerv vagy hatóság bejegyzését a 3. cikkben említett jegyzékben; hasonló döntést hozhat akkor is, ha az ellenőrző szerv vagy ellenőrző hatóság nem bocsátja rendelkezésre az előírt információkat, vagy nem egyezik bele egy helyszíni vizsgálat lefolytatásába;
e) az ellenőrző szerv vagy ellenőrző hatóság egy internetes oldalon elérhetővé teszi a tanúsítvánnyal rendelkező gazdasági szereplők és ökológiai termékek folyamatosan frissített jegyzékét az érdekelt felek számára.
(2) Amennyiben valamely ellenőrző szerv vagy ellenőrző hatóság a Bizottság kérése ellenére elmulasztja elküldeni az (1) bekezdés c) pontjában említett éves jelentést, nem teszi elérhetővé vagy nem közli a technikai dokumentáció, ellenőrzési rendszere vagy a tanúsítvánnyal rendelkező gazdasági szereplők és ökológiai termékek naprakész jegyzéke tekintetében előírt információkat, illetve ha nem járul hozzá egy helyszíni vizsgálat lefolytatásához, a Bizottság által a probléma súlyosságának függvényében meghatározott és általában 30 napnál nem rövidebb időszakon belül, az adott ellenőrző szerv vagy ellenőrző hatóság törölhető az ellenőrző szervek és ellenőrző hatóságok jegyzékéből, a 834/2007/EK rendelet 37. cikkének (2) bekezdésében említett eljárásnak megfelelően.
Ha egy ellenőrző szerv vagy ellenőrző hatóság nem tesz megfelelő helyreigazító intézkedéseket, a Bizottság haladéktalanul törli az adott szervet vagy hatóságot a jegyzékből.
2. FEJEZET
A megfelelő termékek behozatalára előírt írásbeli igazolás
6. cikk
Írásbeli igazolás
(1) A megfelelő termékek behozatala tekintetében a 834/2007/EK rendelet 32. cikke (1) bekezdésének c) pontja szerint előírt írásbeli igazolást e rendelet 17. cikkének (2) bekezdésével összhangban az e rendelet II. mellékletében található mintadokumentum alapján kell kiállítani és annak legalább az említett mintadokumentumban található valamennyi elemet tartalmaznia kell.
(2) Az eredeti írásbeli igazolást a 4. cikkben említett határozat által az adott dokumentum kiállítására elismert ellenőrző szerv vagy ellenőrző hatóság állítja ki.
(3) Az írásbeli igazolást kibocsátó hatóság vagy szerv a 17. cikk (2) bekezdésével összhangban meghatározott szabályokat, illetve a Bizottság által a dokumentumok elektronikus továbbítását lehetővé tevő, a 17. cikk (1) bekezdésében említett számítógépes rendszerben közzétett mintát, megjegyzéseket és iránymutatásokat követi.
III. CÍM
EGYENÉRTÉKŰ GARANCIÁKAT NYÚJTÓ TERMÉKEK BEHOZATALA
1. FEJEZET
Elismert harmadik országok jegyzéke
7. cikk
A harmadik országok jegyzékének összeállítása és tartalma
(1) A Bizottság a 834/2007/EK rendelet 33. cikke (2) bekezdésének megfelelően jegyzéket állít össze az elismert harmadik országokról. Az elismert országok jegyzéke e rendelet III. mellékletét képezi. A jegyzék összeállítására és módosítására vonatkozó eljárásokat e rendelet 8. és 16. cikke határozza meg. A jegyzék módosításait az e rendelet 16. cikkének (4) bekezdése és 17. cikke szerint az interneten nyilvánosan hozzáférhetővé kell tenni.
(2) A jegyzék a harmadik országokkal kapcsolatban minden olyan szükséges információt tartalmaz, amely lehetővé teszi annak ellenőrzését, hogy a Közösség területén forgalomba hozott termékeket a 834/2007/EK rendelet 33. cikke (2) bekezdésének alapján elismert harmadik országok ellenőrzési rendszerében megvizsgálták-e, különös tekintettel a következő információkra:
a) az érintett termékkategóriák;
b) a termékek származási helye;
c) hivatkozás az adott harmadik országban alkalmazott termelési szabványokra;
d) az adott harmadik ország ellenőrzési rendszerért felelős illetékes hatósága, annak címe, beleértve az e-mail és internetes címeket is;
e) a d) pontban említett illetékes hatóság által az ellenőrzések elvégzésére elismert ellenőrző hatóság vagy hatóságok, illetve ellenőrző szerv vagy szervek neve, címe, e-mail-címe, internetes elérhetősége és kódszáma;
f) az adott harmadik országban az Unió területére történő behozatalra vonatkozó tanúsítványok kiállításáért felelős hatóság vagy hatóságok, illetve ellenőrző szerv vagy szervek neve, címe, e-mail-címe, internetes elérhetősége és kódszáma;
g) a jegyzékbe való felvétel érvényességének határideje.
8. cikk
A harmadik országok jegyzékébe történő felvételi kérelmekre vonatkozó eljárás
(1) A Bizottság mérlegeli, hogy az érintett harmadik ország képviselője által 2014. július 1-jét megelőzően benyújtott, a harmadik országnak a 7. cikkben meghatározott jegyzékbe való felvételére irányuló kérelme elfogadható-e.
(2) A Bizottság csak azokat a felvételi kérelmeket köteles figyelembe venni, amelyek megfelelnek a következő előfeltételeknek.
A felvételi kérelemhez minden olyan szükséges információt tartalmazó technikai dokumentációt kell csatolni, amelynek alapján a Bizottság megbizonyosodhat arról, hogy a Közösség felé irányuló exportra szánt termékek megfelelnek a 834/2007/EK rendelet 33. cikkének (1) bekezdésében meghatározott feltételeknek; ezen adatok a következők:
a) általános információ az adott harmadik országban folyó ökológiai termelés fejlődéséről, az előállított termékekről, a művelés alá vont területről, a termelési régiókról, a termelők számáról és az élelmiszer-feldolgozási tevékenységről;
b) a Közösség felé irányuló exportra szánt ökológiai mezőgazdasági termékek és élelmiszerek várható jellegének és mennyiségének feltüntetése;
c) a harmadik országban alkalmazott termelési szabványok, illetve azok egyenértékűségének értékelése a Közösségben alkalmazott szabványokkal való összehasonlításban;
d) a harmadik országban alkalmazott ellenőrzési rendszer, beleértve az adott harmadik országban működő illetékes hatóságok által végzett folyamatos ellenőrzési és felügyeleti tevékenységeket, illetve az ellenőrzési rendszer egyenértékűségének értékelése a Közösségben alkalmazott ellenőrzési rendszerrel való összehasonlításban;
e) azon internetes oldal címe vagy egyéb elérhetőség, ahol az ellenőrzési rendszer hatálya alá tartozó gazdasági szereplők jegyzéke megtalálható, illetve egy olyan kapcsolattartó pont megadása, ahol az említett gazdasági szereplők tanúsított státusára és az érintett termékkategóriákra vonatkozóan azonnali információ áll rendelkezésre;
f) a harmadik ország által a 7. cikk szerint a jegyzékben való feltüntetésre javasolt információ;
g) a 9. cikk rendelkezéseinek való megfelelés vállalása;
h) a harmadik ország vagy a Bizottság által lényegesnek tartott bármely egyéb információ.
(3) Az elismert harmadik országok jegyzékébe történő felvételre irányuló kérelem vizsgálata során, és a felvételt követően bármikor, a Bizottság további információt kérhet, beleértve a független szakértők által végzett egy vagy több helyszíni vizsgálatról készített jelentés bemutatását. A Bizottság továbbá, kockázatértékelés alapján és szabálytalanságok gyanúja esetén, az általa kijelölt szakértők vezetésével helyszíni vizsgálatot szervezhet.
A Bizottság a 834/2007/EK rendelet 33. cikkének (2) bekezdésével összhangban elismert egyéb harmadik országokból is hívhat meg szakértőket a helyszíni vizsgálaton megfigyelőként való részvételre.
(4) A Bizottság elbírálja, hogy a (2) bekezdésben említett technikai dokumentáció és a (3) bekezdésben említett információk kielégítők-e, és ezek után határozhat az adott harmadik ország elismeréséről és a jegyzékbe hároméves időszakra történő felvételéről. Ha a Bizottság úgy ítéli meg, hogy a 834/2007/EK rendeletben és e rendeletben meghatározott feltételek továbbra is teljesülnek, dönthet úgy, hogy az említett hároméves időszakon túl meghosszabbítja az adott harmadik országnak a jegyzékben való feltüntetését.
A első albekezdésben említett határozatot a 834/2007/EK rendelet 37. cikkének (2) bekezdésében említett eljárásnak megfelelően kell meghozni.
9. cikk
A harmadik országok jegyzékének kezelése és felülvizsgálata
(1) A Bizottság csak akkor köteles figyelembe venni egy felvétel iránti kérelmet, ha a harmadik ország vállalja, hogy elfogadja a következő feltételeket:
a) amennyiben valamely harmadik ország jegyzékbe történő felvételét követően a harmadik országban hatályos intézkedések, azok végrehajtása és különösen az ellenőrzési rendszer tekintetében változás történik, az adott harmadik ország haladéktalanul értesíti a Bizottságot; a 7. cikk (2) bekezdésének d), e) és f) pontjában említett információkat érintő változásról a 889/2008/EK rendelet 94. cikkének (1) bekezdésében említett számítógépes rendszeren keresztül haladéktalanul értesíteni kell a Bizottságot;
b) a 834/2007/EK rendelet 33. cikkének (2) bekezdésében említett éves jelentésben frissíteni kell az e rendelet 8. cikkének (2) bekezdésében említett technikai dokumentációban szereplő adatokat; az éves jelentés különösen a harmadik ország illetékes hatósága által végzett folyamatos ellenőrzési és felügyeleti tevékenységet, azok eredményét és a megtett korrekciós intézkedéseket ismerteti;
c) a beérkezett információkra figyelemmel a Bizottság bármikor módosíthatja a harmadik országra vonatkozó adatokat, és felfüggesztheti a harmadik ország bejegyzését a 7. cikkben említett jegyzékben; hasonló döntést hozhat akkor is, ha valamely harmadik ország nem bocsátja rendelkezésre az előírt információkat vagy ha nem hagyja jóvá egy helyszíni vizsgálat lefolytatását.
(2) Amennyiben valamely harmadik ország a Bizottság kérése ellenére elmulasztja elküldeni a 834/2007/EK rendelet 33. cikkének (2) bekezdésében említett éves jelentést, nem teszi elérhetővé és nem közli a technikai dokumentációjával vagy ellenőrzési rendszerével kapcsolatos információkat, valamint ha nem hagyja jóvá egy helyszíni vizsgálat lefolytatását, a Bizottság által a probléma súlyossága szerint megállapított, és általában 30 napnál nem rövidebb határidőn belül, az adott harmadik országot, a 834/2007/EK rendelet 37. cikkének (2) bekezdésében említett eljárásnak megfelelően törölhetik a jegyzékből.
2. FEJEZET
Az egyenértékűség tekintetében elismert ellenőrző szervek és ellenőrző hatóságok jegyzéke
10. cikk
Az egyenértékűség tekintetében elismert ellenőrző szervek és ellenőrző hatóságok jegyzékének összeállítása és tartalma
(1) A Bizottság, a 834/2007/EK rendelet 33. cikke (3) bekezdésének megfelelően jegyzéket állít össze az egyenértékűség tekintetében elismert ellenőrző szervekről és ellenőrző hatóságokról. A jegyzék e rendelet IV. mellékletében kerül közlésre. A jegyzék összeállítására és módosítására vonatkozó eljárásokat e rendelet 11., 16. és 17. cikke határozza meg. A jegyzék e rendelet 16. cikke (4) bekezdésének és 17. cikkének megfelelően az interneten nyilvánosan hozzáférhető.
(2) A jegyzék az egyes ellenőrző szervekkel és hatóságokkal kapcsolatban minden olyan szükséges információt tartalmaz, amely lehetővé teszi annak vizsgálatát, hogy a Közösség területén forgalomba hozott termékeket valamely, a 834/2007/EK rendelet 33. cikke (3) bekezdésének megfelelően elismert ellenőrző szerv vagy hatóság ellenőrizte-e; ezek az információk a következők:
a) az ellenőrző szerv vagy hatóság neve, címe és kódszáma, valamint adott esetben e-mail címe és internetes elérhetősége;
b) a 7. cikkben meghatározott jegyzékben nem szereplő harmadik országok, amennyiben a termékek ezek valamelyikéből származnak;
c) az érintett termékkategóriák az egyes harmadik országok tekintetében;
d) a jegyzékbe történő felvétel érvényességének határideje; valamint
e) azon internetes honlap címe, ahol megtalálható az ellenőrzési rendszer hatálya alá tartozó gazdasági szereplők naprakész jegyzéke, amely megjelöli az érintett gazdasági szereplők tanúsítási státusát és az érintett termékkategóriákat, és megad egy olyan kapcsolattartó pontot, ahol információk állnak rendelkezésre a felfüggesztett és tanúsításuktól megfosztott gazdasági szereplőkre és termékekre vonatkozóan; valamint
f) az az internetes honlap, ahol megtalálható a harmadik országbeli ellenőrző szerv vagy ellenőrző hatóság által alkalmazott termelési szabvány és ellenőrzési intézkedések teljes körű bemutatása.
(3) A (2) bekezdés b) pontjától eltérve az elismert harmadik országok 7. cikk szerinti jegyzékében szereplő harmadik országból származó azon termékek, amelyek nem tartoznak az érintett harmadik országnak nyújtott elismerés hatálya alá, felvehetők az e cikkben meghatározott jegyzékbe.
11. cikk
Az egyenértékűség tekintetében elismert ellenőrző szervek és ellenőrző hatóságok jegyzékébe történő felvételi kérelmekre vonatkozó eljárás
(1) A Bizottság valamely ellenőrző szervnek vagy ellenőrző hatóságnak a 10. cikkben meghatározott jegyzékbe történő felvételéről az érintett ellenőrző szerv vagy ellenőrző hatóság képviselője által számára megküldött, a 17. cikk (2) bekezdése szerint a Bizottság által rendelkezésre bocsátott mintadokumentumnak megfelelő kérelem kézhezvétele után dönt. A jegyzék frissítésekor csak a 2020 június 30-ig benyújtott hiánytalan kérelmeket lehet figyelembe venni.
(2) Kérelmet a Közösség területén vagy egy harmadik országban létrehozott ellenőrző szerv és ellenőrző hatóság nyújthat be.
(3) A felvétel iránti kérelemhez olyan technikai dokumentációt kell csatolni, amely tartalmaz minden olyan szükséges információt, amelynek alapján a Bizottság megbizonyosodhat arról, hogy a Közösségbe irányuló exportra szánt termékek megfelelnek a 834/2007/EK rendelet 33. cikkének (3) bekezdésében meghatározott feltételeknek; ezek az információk a következők:
a) az ellenőrző szerv vagy ellenőrző hatóság harmadik országban vagy harmadik országokban végzett tevékenységeinek általános ismertetése, beleértve az adott termelésben részt vevő gazdasági szereplők becsült számát, és a 834/2007/EK rendelet 33. cikkének (1) és (3) bekezdésében meghatározott szabályok alapján a Közösségbe irányuló exportra szánt mezőgazdasági termékek és élelmiszerek várható jellegét és mennyiségét;
b) a harmadik országokban alkalmazott termelési szabványok és ellenőrzési intézkedések ismertetése, beleértve ezen szabványok és intézkedések 834/2007/EK rendelet III., IV. és V. címével, illetve a 889/2008/EK rendeletben meghatározott kapcsolódó végrehajtási szabályokkal való egyenértékűségének értékelését;
c) a 834/2007/EK rendelet 33. cikke (3) bekezdésének negyedik albekezdésében foglaltak szerinti értékelési jelentés másolata, amely:
i. igazolja, hogy az ellenőrző szerv vagy ellenőrző hatóság az értékelés alapján meg tud felelni a 834/2007/EK rendelet 33. cikkének (1) és (3) bekezdésében meghatározott feltételeknek;
ii. megerősíti, hogy tevékenységeit az említett feltételeknek megfelelő hatékonysággal végrehajtotta; és
iii. igazolja és megerősíti az e bekezdés b) albekezdésében említett termelési szabványok és ellenőrzési intézkedések egyenértékűségét;
d) annak igazolása, hogy az ellenőrző szerv vagy ellenőrző hatóság tevékenységeiről értesítette valamennyi érintett harmadik ország hatóságát, és vállalja az egyes érintett harmadik országok hatóságai által vele szemben támasztott jogi követelmények betartását;
e) azon internetes oldal címe, ahol az ellenőrzési rendszer hatálya alá tartozó gazdasági szereplők jegyzéke megtalálható, valamint egy olyan kapcsolattartó pont megadása, ahol az említett szereplők tanúsított státusára, az érintett termékkategóriákra, valamint a felfüggesztett és tanúsításától megfosztott gazdasági szereplőkre és termékekre vonatkozóan azonnali információ áll rendelkezésre;
f) a 12. cikkben meghatározott rendelkezéseknek való megfelelés vállalása;
g) az ellenőrző szerv vagy ellenőrző hatóság, illetve a Bizottság által lényegesnek tartott bármely egyéb információ.
(4) Az ellenőrző szerv vagy ellenőrző hatóság jegyzékbe történő felvétel iránti kérelmének elbírálása során, és felvételét követően bármikor, a Bizottság további információkat kérhet, beleértve a független szakértők által végzett egy vagy több helyszíni vizsgálatról készített jelentés bemutatását. A Bizottság továbbá, kockázatértékelés alapján és szabálytalanságok gyanúja esetén, az általa kijelölt szakértők vezetésével helyszíni vizsgálatot szervezhet.
(5) A Bizottság megvizsgálja, hogy a (2) bekezdésben említett technikai dokumentáció és a (3) bekezdésben említett információk kielégítők-e, és ezek után határozhat egy ellenőrző szerv vagy ellenőrző hatóság jegyzékbe történő felvételéről. A Bizottság határozatát a 834/2007/EK rendelet 37. cikkének (2) bekezdésében említett eljárásnak megfelelően hozza meg.
12. cikk
Az egyenértékűség tekintetében elismert ellenőrző szervek és ellenőrző hatóságok jegyzékének kezelése és felülvizsgálata
(1) Egy adott ellenőrző szerv vagy ellenőrző hatóság csak akkor kerülhet be a 10. cikkben említett jegyzékbe, ha eleget tesz a következő követelményeknek:
a) amennyiben, valamely ellenőrző szerv vagy ellenőrző hatóság jegyzékbe történő felvételét követően, az ellenőrző szerv vagy ellenőrző hatóság által alkalmazott intézkedések tekintetében változás történik, az adott ellenőrző szerv vagy ellenőrző hatóság értesíti a Bizottságot; a 10. cikk (2) bekezdésében említett, ellenőrző szervre vagy ellenőrző hatóságra vonatkozó információk módosítására irányuló kérelmekről szintén értesíteni kell a Bizottságot;
b) az ellenőrző szerv vagy ellenőrző hatóság, minden év február 28-ig, éves jelentést küld a Bizottságnak. Az éves jelentésben a 11. cikk (3) bekezdésében említett technikai dokumentációban szereplő adatok frissítése szerepel; a jelentés elsősorban a harmadik országban működő ellenőrző szerv vagy ellenőrző hatóság előző év során végzett tevékenységeit, azok eredményét, az észlelt szabálytalanságokat és jogsértéseket, illetve a megtett korrekciós intézkedéseket ismerteti. Tartalmazza továbbá a legújabb értékelési jelentést, vagy egy értékelési jelentés frissített változatát, a 834/2007/EK rendelet 33. cikkének (3) bekezdésében említett rendszeres helyszíni értékelés, felügyelet és többéves újraértékelés eredményének ismertetésével; a Bizottság bármilyen egyéb, általa szükségesnek vélt információt bekérhet;
c) a Bizottság, a kapott információk alapján bármikor módosíthatja az ellenőrző szervre vagy ellenőrző hatóságra vonatkozó adatokat, és felfüggesztheti az adott szerv vagy hatóság bejegyzését a 10. cikkben említett jegyzékben; hasonló döntést hozhat akkor is, ha valamely ellenőrző szerv vagy ellenőrző hatóság nem bocsátja rendelkezésre az előírt információkat, vagy ha nem hagyja jóvá egy helyszíni vizsgálat lefolytatását;
d) az ellenőrző szerv vagy ellenőrző hatóság elektronikus úton az érdekelt felek rendelkezésére bocsátja a tanúsítvánnyal rendelkező gazdasági szereplők és ökológiai termékek naprakész jegyzékét.
(2) A 834/2007/EK rendelet 37. cikkének (2) bekezdésében említett eljárásnak megfelelően valamely ellenőrző szerv vagy ellenőrző hatóság, illetve az adott ellenőrző szervvel vagy ellenőrző hatósággal összefüggésben valamely konkrét termékkategóriára vagy harmadik országra tett hivatkozás az alábbi esetekben törölhető az e rendelet 10. cikkében említett jegyzékből:
a) ha az adott ellenőrző szervnek vagy ellenőrző hatóságnak az (1) bekezdés b) pontjában említett éves jelentése február 28-ig nem érkezik be a Bizottsághoz;
b) ha az adott ellenőrző szerv vagy ellenőrző hatóság nem értesíti a Bizottságot kellő időben technikai dokumentációjának módosításairól;
c) ha az adott ellenőrző szerv vagy ellenőrző hatóság nem tájékoztatja a Bizottságot valamely szabálytalansági ügy kivizsgálása során;
d) ha az adott ellenőrző szerv vagy ellenőrző hatóság nem hoz megfelelő korrekciós intézkedéseket az észlelt szabálytalanságok és jogsértések tekintetében;
e) ha az adott ellenőrző szerv vagy ellenőrző hatóság nem járul hozzá a Bizottság által kezdeményezett helyszíni vizsgálathoz, illetve ha a helyszíni vizsgálat a rendszeresen nem megfelelően végrehajtott ellenőrzési intézkedések miatt negatív eredménnyel zárul;
f) bármely egyéb olyan helyzetben, amelyben fennáll annak a kockázata, hogy a fogyasztót megtéveszthetik az adott ellenőrző szerv vagy ellenőrző hatóság által tanúsított termékek valódi jellegét illetően.
Ha valamely ellenőrző szerv vagy ellenőrző hatóság a Bizottság kérését követően elmulasztja kellő időben, a Bizottság által a probléma súlyosságától függően megállapított és általában 30 napnál nem rövidebb határidőn belül megtenni a megfelelő helyreigazító intézkedéseket, a Bizottság az adott ellenőrző szervet vagy hatóságot a 834/2007/EK rendelet 37. cikkének (2) bekezdésében említett eljárásnak megfelelően haladéktalanul törli a jegyzékből. A törlésről szóló határozatot ki kell hirdetni az Európai Unió Hivatalos Lapjában. A Bizottság a módosított jegyzékeket a lehető legrövidebb időn belül, minden elérhető technikai eszköz segítségével - ideértve az interneten való közzétételt is - nyilvánosan hozzáférhetővé teszi.
3. FEJEZET
A 834/2007/EK rendelet 33. cikkének megfelelően behozott termékek szabad forgalomba bocsátása
13. cikk
Ellenőrzési tanúsítvány
(1) A 834/2007/EK rendelet 1. cikkének (2) bekezdésében említett és ugyanazon rendelet 33. cikkének megfelelően behozott termékekből álló szállítmányok Unión belüli szabad forgalomba bocsátásához a következők szükségesek:
a) eredeti ellenőrzési tanúsítvány benyújtása az érintett tagállam illetékes hatóságához;
b) a szállítmány vizsgálata és az ellenőrzési tanúsítvány hitelesítése az érintett tagállam illetékes hatósága által; valamint
c) a szabad forgalomba bocsátásra vonatkozó, a 952/2013/EU európai parlamenti és tanácsi rendelet ( 5 ) 158. cikkének (1) bekezdésében említett vám-árunyilatkozatban az ellenőrzési tanúsítvány számának feltüntetése.
A szállítmány vizsgálatát és az ellenőrzési tanúsítvány hitelesítését annak az érintett tagállamnak az illetékes hatósága végzi, amelyben a szállítmányt az Unión belül szabad forgalomba bocsátják.
A tagállam kijelöli a területén belül a beléptetési pontokat és azokról tájékoztatja a Bizottságot.
(2) Az ellenőrzési tanúsítványt a megfelelő ellenőrző hatóság vagy ellenőrző szerv állítja ki, mielőtt a szállítmány elhagyja az exportáló vagy származási országot. Az ellenőrzési tanúsítványt az érintett tagállam illetékes hatósága hitelesíti és az első címzett tölti ki az V. mellékletben meghatározott mintának és magyarázatoknak megfelelően, a 2003/24/EK bizottsági határozattal ( 6 ) létrehozott elektronikus kereskedelem-ellenőrzési és szakértői rendszer (TRACES) alkalmazásával.
Az eredeti ellenőrzési tanúsítvány a TRACES rendszerben szereplő, kitöltött elektronikus tanúsítvány kinyomtatott és kézzel aláírt példánya, vagy - alternatív lehetőségként - a TRACES rendszerben aláírt ellenőrzési tanúsítvány, amely a 910/2014/EU európai parlamenti és tanácsi rendelet ( 7 ) 3. cikkének 27. pontja szerinti minősített elektronikus bélyegzővel van ellátva.
Amennyiben az eredeti ellenőrzési tanúsítvány a TRACES rendszerben szereplő, kitöltött elektronikus tanúsítvány kinyomtatott és kézzel aláírt példánya, az ellenőrző hatóságok, az ellenőrző szervek, az érintett tagállam illetékes hatóságai és az első címzett az ellenőrzési tanúsítvány kiadásának, hitelesítésének és kézhezvételének minden egyes szakaszában ellenőrzi, hogy a szóban forgó példány egyezik-e a TRACES rendszerben feltüntetett információkkal. Amennyiben az ellenőrzési tanúsítvány kinyomtatott, kézzel aláírt példányáról hiányoznak a 16. és 17. rovatban, valamint a 13. rovat vonatkozó szövegmezőiben feltüntetendő, a szállítási okmányokkal kapcsolatos információk, vagy amennyiben ezek az információk eltérnek a TRACES rendszerben rendelkezésre álló információktól, az érintett tagállam illetékes hatóságai és az első címzett az ellenőrzési tanúsítvány ellenőrzése és jóváhagyása céljából kizárólag a TRACES rendszerben rendelkezésre álló információkat veszik figyelembe.
(3) Az ellenőrzési tanúsítvány akkor fogadható el hitelesítésre, ha azt az érintett termék termelőjének vagy feldolgozójának, illetve abban az esetben, ha a feldolgozás céljából az utolsó műveletet végrehajtó gazdasági szereplő nem azonos a termék termelőjével vagy feldolgozójával, a 834/2007/EK rendelet 2. cikkének i) pontjában meghatározott feldolgozás céljából az utolsó műveletet végrehajtó gazdasági szereplőnek az ellenőrző hatósága vagy ellenőrző szerve állította ki.
Az említett ellenőrző hatóság vagy ellenőrző szerv:
a) az érintett termékek tekintetében és annak a harmadik országnak a tekintetében e rendelet III. mellékletében felsorolt ellenőrző hatóság vagy ellenőrző szerv, amelyből a termékek származnak, vagy - adott esetben - amelyben feldolgozás céljából az utolsó műveletet elvégezték; vagy
b) az érintett termékek tekintetében és annak a harmadik országnak a tekintetében e rendelet IV. mellékletében felsorolt ellenőrző hatóság vagy ellenőrző szerv, amelyből a termékek származnak, vagy amelyben feldolgozás céljából az utolsó műveletet elvégezték.
(4) Az ellenőrzési tanúsítványt kiállító ellenőrző hatóság vagy ellenőrző szerv csak azt követően állíthatja ki az ellenőrzési tanúsítványt és írhatja alá a tanúsítvány 18. rovatában szereplő nyilatkozatot, hogy minden vonatkozó ellenőrzési dokumentum tekintetében elvégezte az okmányellenőrzést, ideértve különösen az érintett termék termelési tervét, szállítási és kereskedelmi okmányait, továbbá - kockázatértékelése alapján adott esetben - a szállítmány fizikai ellenőrzését. A 13. rovatban szereplő szállítási okmányokkal kapcsolatos információkat, különös tekintettel a csomagok számára és a nettó tömegre, valamint az ellenőrzési tanúsítvány 16. és 17. rovatában szereplő, a szállítóeszközökre és a szállítási okmányokra vonatkozó információkat az ellenőrzési tanúsítvány kiállításától számított legfeljebb 10 napon belül, de mindenképpen az ellenőrzési tanúsítványnak az érintett tagállam illetékes hatóságai általi hitelesítése előtt fel kell tüntetni az ellenőrzési tanúsítványban.
A feldolgozott termékek esetében ugyanakkor abban az esetben, ha az ellenőrzési tanúsítványt kiállító ellenőrző hatóság vagy ellenőrző szerv a III. mellékletben felsorolt ellenőrző hatóság vagy ellenőrző szerv, akkor csak azt követően állíthatja ki az ellenőrzési tanúsítványt és írhatja alá a tanúsítvány 18. rovatában szereplő nyilatkozatot, hogy ellenőrizte, hogy a termék valamennyi ökológiai összetevőjét ellenőrizte és tanúsította az érintett harmadik ország által elismert és az említett mellékletben felsorolt ellenőrző hatóság vagy ellenőrző szerv, vagy abban az esetben, ha a tanúsítványt kiállító ellenőrző hatóság vagy ellenőrző szerv a IV. mellékletben felsorolt ellenőrző hatóság vagy ellenőrző szerv, akkor csak azt követően állíthatja ki az ellenőrzési tanúsítványt és írhatja alá a tanúsítvány 18. rovatában szereplő nyilatkozatot, hogy ellenőrizte, hogy a szóban forgó termék valamennyi ökológiai összetevőjét ellenőrizte és tanúsította a III. vagy IV. mellékletben felsorolt ellenőrző hatóság vagy ellenőrző szerv, illetve hogy az összetevők előállítása és tanúsítása a 834/2007/EK rendeletnek megfelelően az Unióban történt.
Abban az esetben, ha feldolgozás céljából az utolsó műveletet végrehajtó gazdasági szereplő nem azonos a termék termelőjével vagy feldolgozójával, az ellenőrzési tanúsítványt kiállító, IV. mellékletben felsorolt ellenőrző hatóság vagy ellenőrző szerv csak azt követően állíthatja ki az ellenőrzési tanúsítványt és írhatja alá a tanúsítvány 18. rovatában szereplő nyilatkozatot, hogy minden vonatkozó ellenőrzési dokumentum tekintetében elvégezte az okmányellenőrzést, ideértve a szállítási és kereskedelmi okmányokat is, továbbá ellenőrizte, hogy az érintett termék előállítását vagy feldolgozását ellenőrizte és hitelesítette az érintett termékek és ország tekintetében a 834/2007/EK rendelet 33. cikke (3) bekezdésének megfelelően elismert ellenőrző szerv vagy ellenőrző hatóság, valamint - kockázatértékelése alapján adott esetben - elvégezte a szállítmány fizikai ellenőrzését.
A Bizottságnak vagy valamely tagállam illetékes hatóságának a kérésére az ellenőrzési tanúsítványt a második és harmadik albekezdésnek megfelelően kiállító ellenőrző hatóság vagy ellenőrző szerv haladéktalanul rendelkezésre bocsátja az ökológiai termelési lánc részét képező valamennyi gazdasági szereplő, valamint az e szereplők tevékenységét felügyelő ellenőrző hatóságok vagy ellenőrző szervek jegyzékét.
(5) Az ellenőrzési tanúsítványt egyetlen eredeti példányban kell kiállítani.
Az első címzett vagy adott esetben az importőr az ellenőrző hatóságnak vagy ellenőrző szervnek a 889/2008/EK rendelet 83. cikkével összhangban történő tájékoztatása céljából az ellenőrzési tanúsítványról másolatot készíthet. Minden ilyen másolaton nyomtatva vagy pecséttel fel kell tüntetni a "MÁSOLAT" jelölést.
(6) A szállítmány vizsgálatakor az érintett tagállam illetékes hatósága a 20. rovatban hitelesíti az eredeti ellenőrzési tanúsítványt, és visszaküldi a tanúsítványt benyújtó személynek.
(7) Az első címzett a szállítmány átvételekor kitölti az ellenőrzési tanúsítvány 21. rovatát annak tanúsítására, hogy a szállítmány átvétele a 889/2008/EK rendelet 34. cikkével összhangban történt.
A 834/2007/EK rendelet 33. cikke (1) bekezdése második albekezdésének alkalmazásában az első címzett ezt követően megküldi a tanúsítvány eredeti példányát a 11. rovatban említett importőrnek.
13a. cikk
Vis maior és rendkívüli körülmények
(1) Abban az esetben, ha vis maior vagy rendkívüli körülmények miatt az elektronikus rendszer nem működik és különösen a rendszer nem megfelelő működése vagy tartós kapcsolat hiánya esetén az ellenőrzési tanúsítványt és kivonatait ki lehet állítani és hitelesíteni lehet a 13. cikk (3)-(7) bekezdése alapján a TRACES rendszer alkalmazása nélkül, e cikk (2), (3) és (4) bekezdése szerint, az V. vagy VI. mellékletben meghatározott mintáknak és magyarázatoknak megfelelően. Az illetékes hatóságok, ellenőrző hatóságok, ellenőrző szervek és gazdasági szereplők haladéktalanul tájékoztatják a Bizottságot, és a rendszer helyreállítását követő tíz naptári napon belül beviszik a TRACES rendszerbe az összes szükséges adatot.
(2) Amennyiben az ellenőrzési tanúsítványt a TRACES rendszer alkalmazása nélkül állítják ki, az Unió hivatalos nyelveinek egyikén kell megszövegezni, és - a bélyegzőket és aláírásokat kivéve - kizárólag nagybetűkkel vagy kizárólag nyomtatva kell kitölteni.
Az ellenőrzési tanúsítványt a vámkezelést végző tagállam hivatalos nyelvén, illetve hivatalos nyelveinek egyikén kell kitölteni. Az érintett tagállam illetékes hatóságai szükség esetén kérhetik az ellenőrzési tanúsítvány lefordítását a tagállam hivatalos nyelvére, illetve hivatalos nyelveinek egyikére.
A nem hitelesített módosítások, illetve törlések érvénytelenítik a tanúsítványt.
(3) Az ellenőrzési tanúsítványt kiállító ellenőrző hatóság vagy ellenőrző szerv minden kibocsátott tanúsítványt sorszámmal lát el, időrend szerinti nyilvántartást vezet a kiállított tanúsítványokról, és a sorszámhoz hozzárendeli a TRACES rendszer által adott sorszámot.
(4) Amennyiben az ellenőrzési tanúsítványt a TRACES rendszer alkalmazása nélkül állítják ki és hitelesítik, a 15. cikk (1) bekezdésének második és harmadik albekezdése, valamint a 15. cikk (5) bekezdése nem alkalmazandó.
13b. cikk
Importőr
Az importőr a szabad forgalomba bocsátásra vonatkozó, a 952/2013/EU rendelet 158. cikkének (1) bekezdésében említett vám-árunyilatkozatban feltünteti az ellenőrzési tanúsítvány számát.
13c. cikk
Hozzáférési jogok
A Bizottság felel azért, hogy hozzáférési jogot adjon a TRACES rendszerhez a 834/2007/EK rendelet 2. cikkének n) pontjában meghatározott illetékes hatóságoknak, az ugyanezen rendelet 33. cikke (2) bekezdésének megfelelően elismert harmadik országok illetékes hatóságainak és az e rendelet III. és IV. mellékletében felsorolt ellenőrző hatóságoknak és ellenőrző szerveknek, valamint e jogokat naprakészen tartsa. A TRACES rendszerhez való hozzáférési jog megadását megelőzően a Bizottság ellenőrzi az érintett illetékes hatóságok, ellenőrző hatóságok és ellenőrző szervek személyazonosságát.
A 834/2007/EK rendelet 2. cikkének n) pontjában meghatározott illetékes hatóságok felelnek azért, hogy hozzáférési jogot adjanak a TRACES rendszerhez az uniós gazdasági szereplőknek, ellenőrző hatóságoknak és ellenőrző szerveknek, valamint e jogokat naprakészen tartsák. A TRACES rendszerhez való hozzáférési jog megadását megelőzően az illetékes hatóságok ellenőrzik az érintett gazdasági szereplők, ellenőrző hatóságok és ellenőrző szervek személyazonosságát. A tagállamok egyetlen hatóságot jelölnek ki, amely e területen koordinálja a Bizottsággal való együttműködést és kapcsolattartást.
Az illetékes hatóságok tájékoztatják a Bizottságot az odaítélt hozzáférési jogokról. A Bizottság a TRACES rendszerben aktiválja a szóban forgó hozzáférési jogokat.
13d. cikk
Az információk sértetlensége és olvashatósága
A TRACES rendszer védi az e rendeletnek megfelelően bevitt információk sértetlenségét.
A rendszer tartalmazza különösen a következő garanciákat:
a) lehetővé teszi valamennyi felhasználó egyértelmű azonosítását, és hatékony intézkedéseket foglal magában a hozzáférési jogok ellenőrzése tekintetében annak érdekében, hogy védelmet biztosítson az adatokhoz, az adatállományokhoz és a metaadatokhoz való jogellenes, rosszhiszemű vagy engedély nélküli hozzáféréssel szemben, valamint azok jogellenes, rosszhiszemű vagy engedély nélküli törlésével, megváltoztatásával vagy áthelyezésével szemben;
b) a behatolásokkal és a környezeti eseményekkel szemben védelmet biztosító fizikai védelmi rendszereket, valamint a kibertámadások elhárítására szolgáló szoftvervédelmi rendszereket foglal magában;
c) a tárolt adatokat olyan környezetben őrzi meg, amely mind fizikailag, mind a szoftverek szempontjából biztonságos;
d) különféle eszközökkel megakadályoz mindenféle engedély nélküli módosítást, és a sértetlenség biztosítására irányuló mechanizmusokat tartalmaz, amelyekkel ellenőrizhető, hogy az idő múlásával módosultak-e az adatok;
e) ellenőrzési nyomvonalat ad meg az eljárás valamennyi alapvető fontosságú szakaszára vonatkozóan;
f) megbízható formátumkonvertálási és adatmigrációs eljárásokat állapít meg annak biztosítására, hogy az információ az előírt teljes tárolási időszak alatt olvasható és hozzáférhető legyen;
g) kellően részletes és naprakész működési és műszaki dokumentációt foglal magában a rendszer működésére és jellemzőire vonatkozóan, és ez a dokumentáció mindenkor hozzáférhető a működési és/vagy műszaki előírásokért felelős szervezeti egységek számára.
14. cikk
Különleges vámeljárások
(1) Amennyiben valamely harmadik országból érkező szállítmányt a 952/2013/EU rendelet szerint vámraktározás vagy aktív feldolgozás alá vontak, és a második albekezdésben említett egy vagy több feldolgozásnak vetnek alá, az érintett tagállam illetékes hatósága a szállítmányon az első feldolgozás elvégzése előtt végrehajtja az e rendelet 13. cikke (1) bekezdése első albekezdésének b) pontjában említett ellenőrzést. Az áruk vámraktározásra vagy aktív feldolgozási eljárásra történő bejelentésére szolgáló vám-árunyilatkozat referenciaszámát fel kell tüntetni az ellenőrzési tanúsítvány 19. rovatában.
A feldolgozás a következő típusú műveletekre korlátozódik:
a) csomagolás és újracsomagolás; vagy
b) az ökológiai termelési módszerre utaló címkézés.
Az említett feldolgozást követően a szállítmányt a szabad forgalomba bocsátás előtt alá kell vetni az e rendelet 13. cikkének (1) bekezdésében említett intézkedéseknek.
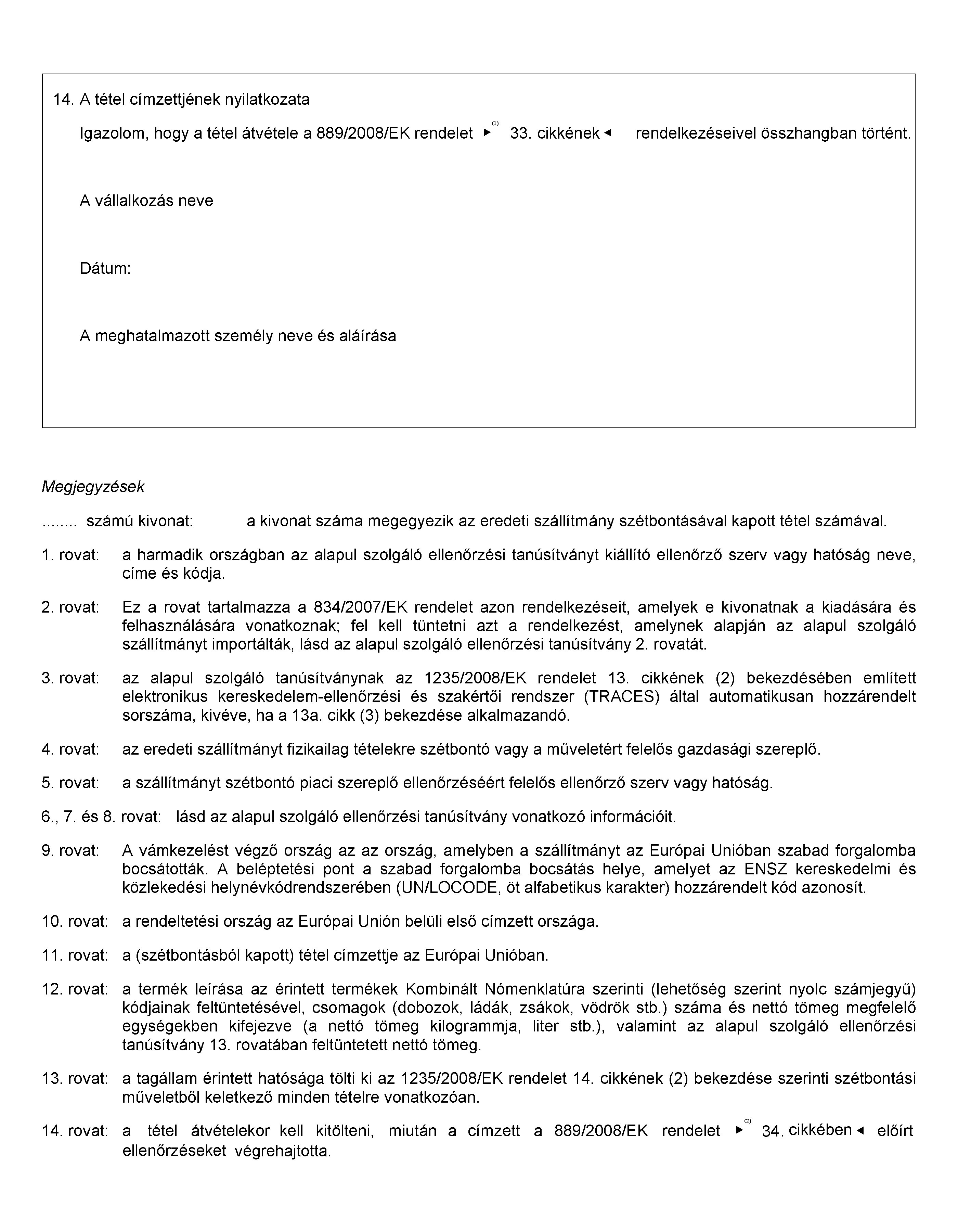
Ezt az eljárást követően az ellenőrzési tanúsítvány eredeti példányát - a 834/2007/EK rendelet 33. cikke (1) bekezdésének második albekezdése alkalmazásában - szükség szerint vissza kell küldeni a szállítmánynak a tanúsítvány 11. rovatában említett importőre részére.
(2) Amennyiben a 2913/92/EGK rendelet szerinti felfüggesztő eljárás keretében egy harmadik országból érkező szállítmányt - annak a Közösségben történő szabad forgalomba bocsátását megelőzően - valamely tagállamban különböző árutételekre kívánnak bontani, a szállítmányra e szétbontás elvégzését megelőzően alkalmazni kell az e rendelet 13. cikkének (1) bekezdésében említett intézkedéseket.
Az ellenőrzési tanúsítvány 11. rovatában említett importőr az ellenőrzési tanúsítvány kivonatát a VI. mellékletben szereplő mintának és magyarázatoknak megfelelően a TRACES rendszeren keresztül a szétbontásból származó valamennyi tételre vonatkozóan benyújtja az érintett tagállam illetékes hatóságának. A tétel vizsgálatát követően az érintett tagállam illetékes hatósága az ellenőrzési tanúsítvány kivonatát szabad forgalomba bocsátás céljából hítelesíti a 13. rovatban. A tétel vizsgálatát és az ellenőrzési tanúsítvány kivonatának hitelesítését annak az érintett tagállamnak az illetékes hatósága végzi, amelyben a tételt az Unión belül szabad forgalomba bocsátják.
A szállítmány eredeti importőreként azonosított és az ellenőrzési tanúsítvány 11. rovatában megjelölt személy köteles az ellenőrzési tanúsítvány minden egyes hitelesített kivonatának másolatát az eredeti ellenőrzési tanúsítvánnyal együtt megőrizni. Ezeken a másolatokon nyomtatva vagy bélyegzővel fel kell tüntetni a "MÁSOLAT" vagy a "MÁSODLAT" jelölést.
A tétel átvételekor annak címzettje kitölti az ellenőrzési tanúsítvány kivonata eredetijének 14. rovatát annak tanúsítására, hogy a tétel átvétele a 889/2008/EK rendelet 34. cikkével összhangban történt.
A tétel címzettje az ellenőrzési tanúsítvány kivonatát legalább két évig az ellenőrző hatóságok és/vagy az ellenőrző szervek rendelkezésére megőrzi.
(3) Az (1) és a (2) bekezdésben említett előkészítési és szétbontási műveleteket a 834/2007/EK rendelet V. címének, valamint a 889/2008/EK rendelet IV. címének vonatkozó rendelkezéseivel összhangban kell elvégezni.
15. cikk
A követelményeknek meg nem felelő termékek
(1) A 834/2007/EK rendelet 30. cikkének és/vagy a 889/2008/EK rendeletnek megfelelően megtett intézkedések, illetve fellépések sérelme nélkül a 834/2007/EK rendelet követelményeinek meg nem felelő termékek azzal a feltétellel bocsáthatók szabad forgalomba az Unión belül, hogy a címkékről, a reklámanyagokból és a kísérő dokumentumokból eltávolították az ökológiai termelési módszerre való utalást.
Amennyiben az érintett tagállam illetékes hatósága a szállítmányon végzett vizsgálat során olyan jogsértést vagy szabálytalanságot tár fel, amely a tanúsítvány hitelesítésének és a termékek szabad forgalomba bocsátásának megtagadásával jár, a hatóság a szóban forgó jogsértésről vagy szabálytalanságról a TRACES rendszeren keresztül haladéktalanul értesíti a Bizottságot és a többi tagállamot.
A tagállamok biztosítják a hivatalos ellenőrzéseket végző illetékes hatóságok közötti hatékony és eredményes koordinációt annak érdekében, hogy haladéktalanul megosszák az olyan, a 834/2007/EK rendelet 1. cikkének (2) bekezdésében említett termékekből álló szállítmányok észlelésére vonatkozó információkat, amelyek ökológiai termelési módszerekre utaló jelöléssel vannak ellátva, de a 834/2007/EK rendeletnek megfelelő tervezett behozatalukat nem jelentették be. Az érintett tagállam illetékes hatósága a feltárt tényről a TRACES rendszeren keresztül haladéktalanul értesíti a Bizottságot és a többi tagállamot.
(2) A 834/2007/EK rendelet 30. cikkének megfelelően végrehajtandó intézkedések, illetve fellépések sérelme nélkül, amennyiben jogsértés vagy szabálytalanság gyanúja merül fel a 834/2007/EK rendelet 33. cikkének (2) bekezdésével összhangban elismert harmadik országokból behozott ökológiai termékeknek vagy az említett rendelet 33. cikkének (3) bekezdésével összhangban elismert ellenőrző hatóságok vagy ellenőrző szervek által ellenőrzött importált ökológiai termékeknek az ugyanabban a rendeletben foglalt követelmények tekintetében való megfelelőségével kapcsolatban, az importőr a 889/2008/EK rendelet 91. cikkének (1) bekezdésével összhangban megtesz minden szükséges intézkedést.
Az importőr és az e rendelet 13. cikkében említett ellenőrzési tanúsítványt kibocsátó ellenőrző hatóság vagy ellenőrző szerv haladéktalanul értesíti az érintett tagállamok és a szóban forgó termékek ökológiai termelés útján történő előállításában részt vevő harmadik országok ellenőrző szerveit, ellenőrző hatóságait és illetékes hatóságait, valamint adott esetben a Bizottságot. Az ellenőrző hatóság vagy ellenőrző szerv előírhatja, hogy a termék mindaddig nem hozható forgalomba az ökológiai termelési módszerre utaló jelölésekkel, amíg az érintett ellenőrző hatóság, illetve ellenőrző szerv a gazdasági szereplő által hozzá eljuttatott vagy más forrásból szerzett információk alapján meg nem győződött arról, hogy a gyanú megszűnt.
(3) A 834/2007/EK rendelet 30. cikkének megfelelően végrehajtandó intézkedések, illetve fellépések sérelme nélkül, amennyiben valamely tagállami vagy harmadik országbeli ellenőrző hatóság vagy ellenőrző szerv úgy ítéli meg, hogy alapos okkal feltételezi jogsértés vagy szabálytalanság elkövetését a 834/2007/EK rendelet 33. cikkének (2) bekezdésével összhangban elismert harmadik országokból behozott ökológiai termékeknek vagy az említett rendelet 33. cikkének (3) bekezdésével összhangban elismert ellenőrző hatóságok vagy ellenőrző szervek által ellenőrzött importált ökológiai termékeknek az ugyanabban a rendeletben foglalt követelmények tekintetében való megfelelőségével kapcsolatban, a 889/2009/EK rendelet 91. cikkének (2) bekezdésével összhangban megtesz minden szükséges intézkedést, és haladéktalanul értesíti az érintett tagállamok és a szóban forgó termékek ökológiai termelés útján történő előállításában részt vevő harmadik országok ellenőrző szerveit, ellenőrző hatóságait és illetékes hatóságait, valamint a Bizottságot.
(4) Ha a Bizottság arról értesíti valamely, a 834/2007/EK rendelet 33. cikkének (2) bekezdésével összhangban elismert harmadik ország illetékes hatóságát vagy valamely, az említett rendelet 33. cikkének (3) bekezdésével összhangban elismert ellenőrző hatóságot vagy ellenőrző szervet, hogy tagállami bejelentés nyomán alapos okkal feltételezhető jogsértés vagy szabálytalanság elkövetése bizonyos ökológiai termékeknek az említett rendeletben vagy az e rendeletben foglalt követelmények tekintetében való megfelelőségével kapcsolatban, az értesített illetékes hatóság, illetve ellenőrző hatóság vagy ellenőrző szerv kivizsgálja a feltételezett szabálytalanság vagy jogsértés eredetét, majd a vizsgálat eredményeiről és a megtett intézkedésekről tájékoztatja a Bizottságot és azt a tagállamot, amelytől az eredeti bejelentés érkezett. Ezt a tájékoztatást az eredeti bizottsági értesítés megküldésének időpontjától számított 30 napon belül meg kell küldeni.
Az eredeti bejelentést küldő tagállam szükség esetén felkérheti a Bizottságot arra, hogy kérjen további információkat, amelyeket a Bizottságnak és az érintett tagállamnak kell eljuttatni. Az eredeti bejelentést küldő tagállam a válasz vagy a további információk kézhezvételét követően minden esetben szükség szerint bevezeti az új, illetve frissített adatokat a 889/2008/EK rendelet 94. cikkének (1) bekezdésében említett számítógépes rendszerbe.
(5) Az importőr, az első címzett vagy ezek ellenőrző hatósága vagy ellenőrző szerve a behozott termékekkel kapcsolatos jogsértésre vagy szabálytalanságra vonatkozó információt a 889/2008/EK rendelet 94. cikkének (1) bekezdésében említett számítógépes rendszerrel a TRACES rendszeren keresztül megküldi az érintett tagállamok illetékes hatóságainak.
IV. CÍM
KÖZÖS SZABÁLYOK
16. cikk
A kérelmek elbírálása és a jegyzékek közzététele
(1) A Bizottság a 4., 8. és 11. cikkel összhangban, a 834/2007/EK rendelet 37. cikkének (1) bekezdésében említett ökológiai termeléssel foglalkozó bizottság (a továbbiakban: a bizottság) segítségével elbírálja a beérkezett kérelmeket. E célból a bizottság különleges belső eljárási szabályokat fogad el.
A Bizottság kormányzati és civil szakértőkből álló szakértői csoportot hoz létre, amely a kérelmek elbírálásában, valamint a jegyzékek kezelésében és felülvizsgálatában segíti a Bizottság munkáját.
(2) Minden egyes beérkezett kérelemhez, és a speciális belső eljárási szabályokkal összhangban a tagállamokkal folytatott megfelelő konzultációt követően, a Bizottság két-két tagállamot jelöl ki jelentéskészítésre. A kérelmeket a Bizottság az egyes tagállamoknak az ökológiai termeléssel foglalkozó bizottságban érvényes szavazatainak számával arányosan osztja szét a tagállamok között. A jelentéskészítésre kijelölt tagállamok megvizsgálják a 4., 8. és 11. cikkben említett, kérelmekre vonatkozó dokumentációt és információt, és jelentést készítenek. A jegyzékek kezelése és felülvizsgálata keretében ugyancsak megvizsgálják az éves jelentéseket és az 5., 9. és 12. cikkben említett, a jegyzékek bejegyzéseihez kapcsolódó bármely egyéb információt.
(3) A jelentéseket készítő tagállamok által végzett vizsgálatok eredményének figyelembevételével a Bizottság a 834/2007/EK rendelet 37. cikkének (2) bekezdésével összhangban határoz a harmadik országok, ellenőrző szervek vagy ellenőrző hatóságok elismeréséről, azok jegyzékbe történő felvételéről, illetve a jegyzékek bármely módosításáról, beleértve az e szerveknek vagy hatóságoknak kódszámmal való ellátását is. A határozatokat az Európai Unió Hivatalos Lapjában közzéteszik.
(4) A Bizottság a jegyzékeket minden elérhető technikai eszköz segítségével nyilvánosan hozzáférhetővé teszi, ideértve az interneten való közzétételt is.
17. cikk
Tájékoztatás
(1) A 834/2007/EK rendelet 32. és 33. cikkében, valamint az e rendeletben említett dokumentumokat és egyéb információkat a harmadik országok illetékes hatóságai, az ellenőrző hatóságok vagy az ellenőrző szervek elektronikus úton továbbítják a Bizottság vagy a tagállamok felé. Amennyiben a Bizottság vagy a tagállamok speciális elektronikus átviteli rendszereket tesznek elérhetővé, azokat kell használni. A Bizottság és a tagállamok egymás között is e rendszeren keresztül továbbítják az érintett dokumentumokat.
(2) A 834/2007/EK rendelet 32. és 33. cikkében, valamint az e rendeletben említett dokumentumokra és egyéb információkra vonatkozó formai és tartalmi követelmények tekintetében a Bizottság szükség szerint útmutatásokat, mintákat és kérdőíveket határoz meg és tesz közzé az e cikk (1) bekezdésében említett számítógépes rendszerben. Az említett útmutatásokat, mintákat és kérdőíveket a Bizottság a tagállamok és a harmadik országok illetékes hatóságai, valamint az e rendeletnek megfelelően elismert ellenőrző hatóságok és ellenőrző szervek tájékoztatása után módosítja és frissíti.
(3) Az (1) bekezdésben meghatározott számítógépes rendszernek alkalmasnak kell lennie az e rendeletben említett kérelmek, dokumentumok és információk begyűjtésére.
(4) A 834/2007/EK rendelet 32. és 33. cikkében és e rendeletben, különösen a 4., 8. és 11. cikkben említett alátámasztó dokumentumokat a harmadik országok illetékes hatóságai, az ellenőrző hatóságok vagy ellenőrző szervek, az ellenőrzés elvégzésének, illetve az ellenőrzési tanúsítvány és az írásbeli igazolások kiadásának évétől számított legalább három évig a Bizottság és a tagállamok rendelkezésére megőrzik.
(5) Amennyiben a 834/2007/EK rendelet 32. és 33. cikkében említett dokumentumokhoz vagy eljárásokban, illetve az azok alkalmazására vonatkozó részletes szabályokban egy megfelelő felhatalmazással rendelkező személy aláírására, vagy az eljárás egy vagy több szakaszában egy személy jóváhagyására van szükség, az említett dokumentumok közlésére létrehozott számítógépes rendszernek lehetővé kell tennie valamennyi személy egyértelmű azonosítását, és megfelelő biztosítékot kell nyújtania arra vonatkozóan, hogy a dokumentumok tartalmát, beleértve az egyes eljárási szakaszokat is, a közösségi jogszabályoknak és különösen a 2004/563/EK, Euratom bizottsági határozatnak megfelelően nem lehet megváltoztatni.
V. CÍM
ÁTMENETI ÉS ZÁRÓ RENDELKEZÉSEK
18. cikk
A harmadik országok jegyzékére vonatkozó átmeneti szabályok
A harmadik országok által a 345/2008/EK rendelet 2. cikkével összhangban, a 2009. január 1-je előtt benyújtott felvétel iránti kérelmeket az e rendelet 8. cikke szerinti kérelemként kell kezelni.
Az elismert országok első jegyzékében Argentína, Ausztrália, Costa Rica, India, Izrael ( 8 ), Új-Zéland és Svájc szerepel. A jegyzék az e rendelet 7. cikke (2) bekezdésének f) pontjában említett kódszámokat nem tartalmazza. A kódszámok hozzáadására 2010. július 1-je előtt kerül sor a jegyzéknek a 17. cikk (2) bekezdésével összhangban történő frissítése révén.
19a. cikk
A nem a TRACES rendszerben kiállított ellenőrzési tanúsítványok használatára vonatkozó átmeneti szabályok
2017. október 19-ig a 13. cikk (1) bekezdésének a) pontjában említett ellenőrzési tanúsítványnak és a 14. cikk (2) bekezdésében említett kivonatai kiállítása és hitelesítése történhet a 13. cikk (3)-(7) bekezdése alapján a TRACES rendszer alkalmazása nélkül a 13a. cikk (1), (2) és (3) bekezdése szerint, az V. vagy VI. mellékletben meghatározott mintáknak és magyarázatoknak megfelelően.
20. cikk
Hatályon kívül helyezés
A 345/2008/EK rendelet és a 605/2008/EK rendelet hatályát veszti.
A hatályon kívül helyezett rendeletekre való hivatkozásokat az e rendeletre való hivatkozásként és a VII. mellékletben szereplő megfelelési táblázat szerint kell értelmezni.
21. cikk
Hatálybalépés
Ez a rendelet az Európai Unió Hivatalos Lapjában való kihirdetését követő hetedik napon lép hatályba.
Ezt a rendeletet 2009. január 1-jétől kell alkalmazni.
Ez a rendelet teljes egészében kötelező és közvetlenül alkalmazandó valamennyi tagállamban.
I. MELLÉKLET
A MEGFELELŐSÉG TEKINTETÉBEN ELISMERT ELLENŐRZŐ SZERVEK ÉS ELLENŐRZŐ HATÓSÁGOK JEGYZÉKE, VALAMINT A 3. CIKKBEN EMLÍTETT VONATKOZÓ ADATOK
II. MELLÉKLET

III. MELLÉKLET
HARMADIK ORSZÁGOK JEGYZÉKE ÉS A 7. CIKKBEN EMLÍTETT VONATKOZÓ ADATOK
Megjegyzés: A 834/2007/EK rendelet 17. cikke (1) bekezdése f) pontjának megfelelően az átállási időszak során tenyészett állatok és előállított állati termékek nem forgalmazhatók az Unióban a szóban forgó rendelet 23. és 24. cikkében említett, a termékek címkézésében és reklámozásában használt jelölésekkel. Ezeket a termékeket ezért ki kell zárni az e mellékletben felsorolt valamennyi ország tekintetében a B és D termékkategóriára vonatkozó elismerés köréből.
ARGENTÍNA
1. Termékkategóriák :
| Termékkategória | A kategória IV. melléklet szerinti meghatározása | Megkötések |
| Feldolgozatlan növényi termékek | A | |
| Élő állatok vagy feldolgozatlan állati termékek | B | — |
| Feldolgozott, élelmiszerként való felhasználásra szánt mezőgazdasági termékek (1) | D | — |
| Termesztésre szánt vegetatív szaporítóanyag és vetőmag | F | |
| (1) A bor és az élesztő nem tartozik ebbe a kategóriába. | ||
2. Származás : az A, B és F kategóriába tartozó, Argentínában előállított termékek, valamint a D kategóriába tartozó, Argentínában feldolgozott termékek, amelyek összetevőit ökológiai termeléssel Argentínában állították elő.
3. Termelési szabványok : Ley 25 127 sobre "Producción ecológica, biológica y orgánica".
4. Illetékes hatóság : Servicio Nacional de Sanidad y Calidad Agroalimentaria SENASA, www.senasa.gov.ar.
5. Ellenőrző szervek :
| Kódszám | Név | Internetcím |
| AR-BIO-001 | Food Safety SA | www.foodsafety.com.ar |
| AR-BIO-002 | Instituto Argentino para la Certificación y Promoción de Productos Agropecuarios Orgánicos SA (Argencert), | www.argencert.com |
| AR-BIO-003 | Letis SA | www.letis.org |
| AR-BIO-004 | Organización Internacional Agropecuaria (OIA), | www.oia.com.ar |
6. Tanúsítványt kibocsátó szervek : az 5. pontban szereplő szervek.
7. A jegyzékben való feltüntetés érvényességének határideje : nincs meghatározva.
AUSZTRÁLIA
1. Termékkategóriák :
| Termékkategória | A kategória IV. melléklet szerinti meghatározása | Megkötések |
| Feldolgozatlan növényi termékek | A | |
| Feldolgozott, élelmiszerként való felhasználásra szánt mezőgazdasági termékek (1) | D | alapvetően egy vagy több növényi eredetű összetevőből álló termékek |
| Termesztésre szánt vegetatív szaporítóanyag és vetőmag | F | |
| (1) A bor és az élesztő nem tartozik ebbe a kategóriába. | ||
2. Származás : az A és F kategóriába tartozó, Ausztráliában előállított termékek, valamint a D kategóriába tartozó, Ausztráliában feldolgozott termékek, amelyek összetevőit ökológiai termeléssel Ausztráliában állították elő.
3. Termelési szabványok : National standard for organic and bio-dynamic produce.
4. Illetékes hatóság :
Department of Agriculture and Water Resources,
http://www.agriculture.gov.au/
5. Ellenőrző szervek :
| Kódszám | Név | Internetcím |
| AU-BIO-001 | ACO Certification Ltd | www.aco.net.au |
| AU-BIO-003 | Bio-dynamic Research Institute (BDRI) | www.demeter.org.au |
| AU-BIO-004 | NASAA Certified Organic | www.nasaa.com.au |
| AU-BIO-005 | Organic Food Chain Pty Ltd (OFC) | www.organicfoodchain.com.au |
| AU-BIO-006 | AUS-QUAL Pty Ltd | www.ausqual.com.au |
| AU-BIO-007 | Southern Cross Certified Australia Pty Ltd | https://www.sxcertified.com.au |
6. Tanúsítványt kibocsátó szervek : az 5. pontban szereplő szervek.
7. A jegyzékben való feltüntetés érvényességének határideje : nincs meghatározva.
KANADA
1. Termékkategóriák :
| Termékkategória | A kategória IV. melléklet szerinti meghatározása | Megkötések |
| Feldolgozatlan növényi termékek | A | |
| Élő állatok vagy feldolgozatlan állati termékek | B | |
| Feldolgozott, élelmiszerként való felhasználásra szánt mezőgazdasági termékek | D | |
| Feldolgozott, takarmányként való felhasználásra szánt mezőgazdasági termékek | E | |
| Termesztésre szánt vegetatív szaporítóanyag és vetőmag | F | |
2. Származás : az A, B és F kategóriába tartozó termékek, amelyeket Kanadában állítottak elő, valamint a D és E kategóriába tartozó, Kanadában ökológiai termeléssel előállított vagy a kanadai jogszabályok szerint importált összetevők felhasználásaval készült feldolgozott termékek.
3. Termelési szabványok : Organic Products Regulation.
4. Illetékes hatóság : Canadian Food Inspection Agency (CFIA), www.inspection.gc.ca
5. Ellenőrző szervek :
| Kódszám | Név | Internetcím |
| CA-ORG-002 | British Columbia Association for Regenerative Agriculture (BCARA) | www.certifiedorganic.bc.ca |
| CA-ORG-003 | CCOF Certification Services | www.ccof.org |
| CA-ORG-004 | Centre for Systems Integration (CSI) | www.csi-ics.com |
| CA-ORG-005 | Consorzio per il Controllo dei Prodotti Biologici Società a responsabilità limitata (CCPB SRL) | www.ccpb.it |
| CA-ORG-006 | Ecocert Canada | www.ecocertcanada.com |
| CA-ORG-007 | Fraser Valley Organic Producers Association (FVOPA) | www.fvopa.ca |
| CA-ORG-009 | International Certification Services Incorporated (ICS) | www.ics-intl.com |
| CA-ORG-010 | LETIS SA | www.letis.com.ar |
| CA-ORG-013 | Organic Crop Improvement Association (OCIA) | www.ocia.org |
| CA-ORG-014 | Organic Producers Association of Manitoba Cooperative Incorporated (OPAM) | www.opam-mb.com |
| CA-ORG-015 | Pacific Agricultural Certification Society (PACS) | www.pacscertifiedorganic.ca |
| CA-ORG-016 | Pro-Cert Organic Systems Ltd (Pro-Cert) | www.ocpro.ca |
| CA-ORG-017 | Quality Assurance International Incorporated (QAI) | http://www.qai-inc.com |
| CA-ORG-018 | Quality Certification Services (QCS) | www.qcsinfo.org |
| CA-ORG-019 | Organisme de Certification Québec Vrai (OCQV) | http://www.quebecvrai.org/ |
| CA-ORG-021 | TransCanada Organic Certification Services (TCO Cert) | http://www.tcocert.ca/contacts/ |
6. Tanúsítványt kibocsátó szervek : az 5. pontban szereplő szervek.
7. A jegyzékben való feltüntetés érvényességének határideje : nincs meghatározva.
CHILE
1. Termékkategóriák:
| Termékkategória vagy termékek | A kategória IV. melléklet szerinti meghatározása | Megkötések |
| Feldolgozatlan növényi termékek | A | Csak a megállapodásban felsorolt termékek |
| Méz | Csak a megállapodásban felsorolt termékek | |
| Feldolgozott, élelmiszerként való felhasználásra szánt növényi termékek | D | Csak a megállapodásban felsorolt termékek |
| Termesztésre szánt vegetatív szaporítóanyag és vetőmag | F | Csak a megállapodásban felsorolt termékek |
2. Származás: az A és D kategóriába tartozó termékek ökológiai termeléssel előállított összetevői, amelyeket Chilében termesztettek vagy Chilébe importáltak:
- vagy az Unióból,
- vagy harmadik országból egy olyan rendszer keretében, amelyet az Unió a 834/2007/EK rendelet 33. cikkének (2) bekezdése szerint egyenértékűnek ismert el.
3. Termelési szabványok: A mezőgazdasági ökológiai termékek nemzeti tanúsítási rendszerének létrehozásáról szóló, 2006. január 17-i 20.089 törvény.
4. Illetékes hatóság: Servicio Agricola y Ganadero (SAG), Mezőgazdasági Minisztérium. http://www.sag.cl/ambitos-de-accion/certificacion-de-productos-organicos
5. Ellenőrző szervek:
| Kódszám | Név | Internetcím |
| CL-BIO-001 | Ecocert Chile S.A. | www.ecocert.cl |
| CL-BIO-005 | CERES – Certification of Environmental Standards GmbH | http://www.ceres-cert.com/ |
| CL-BIO-010 | BIO CERTIFICADORA SERVICIOS LIMITADA O BIOAUDITA | https://www.bioaudita.cl |
6. Tanúsítványt kibocsátó szervek és hatóságok: az 5. pontban szereplő szervek.
7. A jegyzékben való feltüntetés érvényességének határideje: nincs meghatározva.
COSTA RICA
1. Termékkategóriák :
| Termékkategória | A kategória IV. melléklet szerinti meghatározása | Megkötések |
| Feldolgozatlan növényi termékek | A | |
| Feldolgozott, élelmiszerként való felhasználásra szánt mezőgazdasági termékek (1) | D | Kizárólag feldolgozott növényi termékek |
| Termesztésre szánt vegetatív szaporítóanyag és vetőmag | F | |
| (1) A bor és az élesztő nem tartozik ebbe a kategóriába. | ||
2. Származás : az A és F kategóriába tartozó, Costa Ricában előállított termékek, valamint a D kategóriába tartozó, Costa Ricában feldolgozott termékek, amelyek összetevőit ökológiai termeléssel Costa Ricában állították elő.
3. Termelési szabványok : Reglamento sobre la agricultura orgánica.
4. Illetékes hatóság : Servicio Fitosanitario del Estado, Ministerio de Agricultura y Ganadería, www.sfe.go.cr
5. Ellenőrző szervek :
| Kódszám | Név | Internetcím |
| CR-BIO-002 | Kiwa BCS Costa Rica Limitada | www.kiwa.lat |
| CR-BIO-003 | Eco-LOGICA | www.eco-logica.com |
| CR-BIO-004 | Control Union Perú | www.cuperu.com |
| CR-BIO-006 | PrimusLabs.com CR S.A. | www.primusauditingops.com |
| CR-BIO-007 | Primus Auditing Operations de Costa Rica S.A | www.primusauditingops.com |
6. Tanúsítványt kibocsátó szerv : az 5. pontban szereplő szervek.
7. A jegyzékben való feltüntetés érvényességének határideje : nincs meghatározva.
INDIA
1. Termékkategóriák :
| Termékkategória | A kategória IV. melléklet szerinti meghatározása | Megkötések |
| Feldolgozatlan növényi termékek | A | |
| Termesztésre szánt vegetatív szaporítóanyag és vetőmag | F |
2. Származás : az A és F kategória termékei, amelyeket Indiában termesztettek.
3. Termelési szabványok : National Programme for Organic Production.
4. Illetékes hatóság : Agricultural and Processed Food Products Export Development Authority APEDA, http://www.apeda.gov.in/apedawebsite/index.asp.
5. Ellenőrző szervek :
| Kódszám | Név | Internetcím |
| IN-ORG-001 | Aditi Organic Certifications Pvt. Ltd | www.aditicert.net |
| IN-ORG-002 | APOF Organic Certification Agency (AOCA) | www.aoca.in |
| IN-ORG-003 | Bureau Veritas (India) Pvt. Limited | www.bureauveritas.co.in |
| IN-ORG-004 | CU Inspections India Pvt Ltd | www.controlunion.com |
| IN-ORG-005 | ECOCERT India Pvt. Ltd. | www.ecocert.in |
| IN-ORG-006 | TQ Cert Services Private Limited | www.tqcert.in |
| IN-ORG-007 | IMO Control Pvt. Ltd | www.imocontrol.in |
| IN-ORG-008 | Indian Organic Certification Agency (Indocert) | www.indocert.org |
| IN-ORG-010 | Lacon Quality Certification Pvt. Ltd | www.laconindia.com |
| IN-ORG-011 | Natural Organic Certification Agro Pvt. Ltd | www.nocaagro.com |
| IN-ORG-012 | OneCert International Private Limited | www.onecertinternational.com |
| IN-ORG-013 | SGS India Pvt. Ltd | www.sgsgroup.in |
| IN-ORG-014 | Uttarakhand State Organic Certification Agency (USOCA) | www.usoca.org |
| IN-ORG-016 | Rajasthan State Organic Certification Agency (RSOCA) | www.agriculture.rajasthan.gov.in/rssopca |
| IN-ORG-017 | Chhattisgarh Certification Society, India (CGCERT) | www.cgcert.com |
| IN-ORG-018 | Tamil Nadu Organic Certification Department (TNOCD) | www.tnocd.net |
| IN-ORG-021 | Madhya Pradesh State Organic Certification Agency (MPSOCA) | www.mpsoca.org |
| IN-ORG-023 | Faircert Certification Services Pvt Ltd | www.faircert.com |
| IN-ORG-024 | Odisha State Organic Certification Agency (OSOCA) | www.ossopca.org |
| IN-ORG-025 | Gujarat Organic Products Certification Agency (GOPCA) | www.gopca.in |
| IN-ORG-026 | Uttar Pradesh State Organic Certification Agency | www.upsoca.org |
| IN-ORG-027 | Karnataka State Organic Certification Agency | www.kssoca.org |
| IN-ORG-028 | Sikkim State Organic Certification Agency (SSOCA) | www.ssoca.in |
| IN-ORG-029 | Global Certification Society | www.glocert.org |
| IN-ORG-030 | GreenCert Biosolutions Pvt. Ltd | www.greencertindia.in |
| IN-ORG-031 | Telangana State Organic Certification Authority | www.tsoca.telangana.gov.in |
| IN-ORG-032 | Bihar State Seed and Organic Certification Agency (BSSOCA) | www.bssca.co.in |
| IN-ORG-033 | Reliable Organic Certification Organization | https://rococert.com |
| IN-ORG-034 | Bhumaatha Organic Certification Bureau (BOCB) | http://www.agricertbocb.in |
6. Tanúsítványt kibocsátó szervek : az 5. pontban szereplő szervek.
7. A jegyzékben való feltüntetés érvényességének határideje : nincs meghatározva.
IZRAEL
1. Termékkategóriák :
| Termékkategória | A kategória IV. melléklet szerinti meghatározása | Megkötések |
| Feldolgozatlan növényi termékek | A | |
| Feldolgozott, élelmiszerként való felhasználásra szánt mezőgazdasági termékek (1) | D | alapvetően egy vagy több növényi eredetű összetevőből álló termékek |
| Termesztésre szánt vegetatív szaporítóanyag és vetőmag | F | |
| (1) A bor és az élesztő nem tartozik ebbe a kategóriába. | ||
2. Származás :
az A és F kategóriába tartozó, Izraelben előállított termékek, valamint a D kategóriába tartozó, Izraelben feldolgozott termékek, amelyek összetevőit ökológiai termeléssel Izraelben állították elő vagy Izraelbe importálták:
- vagy az Unióból,
- vagy harmadik országból egy olyan rendszer keretében, amelyet a 834/2007/EK rendelet 33. cikkének (2) bekezdése szerint egyenértékűnek ismertek el.
3. Termelési szabványok : az ökológiai termékekre vonatkozó szabályokról szóló 5765-2005 számú törvény és a kapcsolódó rendeletek.
4. Illetékes hatóság : Plant Protection and Inspection Services (PPIS), www.ppis.moag.gov.il
5. Ellenőrző szervek :
| Kódszám | Név | Internetcím |
| IL-ORG-001 | Secal Israel Inspection and certification | www.skal.co.il |
| IL-ORG-002 | Agrior Ltd.-Organic Inspection & Certification | www.agrior.co.il |
| IL-ORG-003 | IQC Institute of Quality & Control | www.iqc.co.il |
| IL-ORG-004 | Plant Protection and Inspection Services (PPIS) | www.ppis.moag.gov.il |
6. Tanúsítványt kibocsátó szervek : az 5. pontban szereplő szervek.
7. A jegyzékben való feltüntetés érvényességének határideje : nincs meghatározva.
JAPÁN
1. Termékkategóriák :
| Termékkategória | A kategória IV. melléklet szerinti meghatározása | Megkötések |
| Feldolgozatlan növényi termékek | A | |
| Feldolgozott, élelmiszerként való felhasználásra szánt mezőgazdasági termékek (1) | D | alapvetően egy vagy több növényi eredetű összetevőből álló termékek |
| (1) A bor nem tartozik ebbe a kategóriába. | ||
2. Származás :
az A kategóriába tartozó, Japánban előállított termékek, valamint a D kategóriába tartozó, Japánban feldolgozott termékek, amelyek összetevőit ökológiai termeléssel Japánban állították elő vagy Japánba importálták:
- vagy az Unióból,
- vagy olyan harmadik országból, amely tekintetében Japán elismerte, hogy az ott előállított termékeket a japán jogszabályokban meghatározottakkal egyenértékű szabályok alapján állították elő és ellenőrizték.
3. Termelési szabványok : ökológiai termesztésű növényekre vonatkozó japán mezőgazdasági szabvány (a MAFF 1605. sz. értesítése, 2005. október 27.), ökológiai termeléssel előállított élelmiszerekre vonatkozó japán mezőgazdasági szabvány (a MAFF 1606. sz. értesítése, 2005. október 27.).
4. Illetékes hatóságok : Food Manufacture Affairs Division, Food Industry Affairs Bureau, Ministry of Agriculture, Forestry and Fisheries, www.maff.go.jp/j/jas/index.html és Food and Agricultural Materials Inspection Center (FAMIC), www.famic.go.jp.
5. Ellenőrző szervek :
| Kódszám | Név | Internetcím |
| JP-BIO-001 | Hyogo prefectural Organic Agriculture Society, HOAS | www.hyoyuken.org |
| JP-BIO-002 | AFAS Certification Center Co., Ltd. | www.afasseq.com |
| JP-BIO-003 | NPO Kagoshima Organic Agriculture Association | www.koaa.or.jp |
| JP-BIO-004 | Center of Japan Organic Farmers Group | www.yu-ki.or.jp |
| JP-BIO-005 | Japan Organic & Natural Foods Association | http://jona-japan.org/english/ |
| JP-BIO-006 | Ecocert Japan Limited. | www.ecocert.co.jp |
| JP-BIO-007 | Bureau Veritas Japan Co., Ltd | http://certification.bureauveritas.jp/cer-business/jas/nintei_list.html |
| JP-BIO-008 | OCIA Japan | www.ocia-jp.com |
| JP-BIO-009 | Overseas Merchandise Inspection Co., Ltd | http://www.omicnet.com/omicnet/services-en/organic-certification-en.html |
| JP-BIO-010 | Organic Farming Promotion Association | http://yusuikyo.web.fc2.com/ |
| JP-BIO-011 | ASAC Stands for Axis’ System for Auditing and Certification and Association for Sustainable Agricultural Certification | www.axis-asac.net |
| JP-BIO-012 | Environmentally Friendly Rice Network | www.epfnetwork.org/okome |
| JP-BIO-013 | Ooita Prefecture Organic Agricultural Research Center | www.d-b.ne.jp/oitayuki |
| JP-BIO-014 | AINOU | www.ainou.or.jp/ainohtm/disclosure/nintei-kouhyou.htm |
| JP-BIO-015 | SGS Japan Incorporation | www.jp.sgs.com/ja/home_jp_v2.htm |
| JP-BIO-016 | Ehime Organic Agricultural Association | http://eoaa.sakura.ne.jp/ |
| JP-BIO-017 | Center for Eco-design Certification Co. Ltd | http://www.eco-de.co.jp/list.html |
| JP-BIO-018 | Organic Certification Association | http://yuukinin.org/index.html |
| JP-BIO-020 | Hiroshima Environment and Health Association | https://www.kanhokyo.or.jp/ |
| JP-BIO-021 | ACCIS Inc. | https://www.accis.jp/ |
| JP-BIO-022 | Organic Certification Organization Co. Ltd | www.oco45.net |
| JP-BIO-023 | Rice Research Organic Food Institute | https://rrofi.jp/ |
| JP-BIO-024 | Aya town miyazaki, Japan | http://www.town.aya.miyazaki.jp/ayatown/organicfarming/index.html |
| JP-BIO-025 | Tokushima Organic Certified Association | http://www.tokukaigi.or.jp/yuuki/ |
| JP-BIO-027 | NPO Kumamoto Organic Agriculture Association | http://www.kumayuken.org/ |
| JP-BIO-028 | Hokkaido Organic Promoters Association | http://www.hosk.jp/CCP.html |
| JP-BIO-029 | Association of organic agriculture certification Kochi corporation NPO | http://www8.ocn.ne.jp/~koaa/jisseki.html |
| JP-BIO-031 | Wakayama Organic Certified Association | https://woca.jpn.org/w/ |
| JP-BIO-032 | Shimane Organic Agriculture Association | www.shimane-yuki.or.jp/index.html |
| JP-BIO-034 | International Nature Farming Research Center | http://www.infrc.or.jp/ |
| JP-BIO-035 | Organic Certification Center | www.organic-cert.or.jp |
| JP-BIO-036 | Japan Food Research Laboratories | http://www.jfrl.or.jp/jas.html |
| JP-BIO-037 | Leafearth Company | http://www.leafearth.jp/ |
| JP-BIO-038 | Akatonbo | http://www.akatonbo.or.jp/ |
| JP-BIO-038 | Japan Agricultural Standard Certification Alliance | http://jascert.or.jp/ |
| JP-BIO-039 | Japan Grain Inspection Association | http://www.kokken.or.jp/ |
| JP-BIO-040JP-BIO-040 | Okayama Agriculture Development Institute | http://www.nokaiken.or.jp |
6. Tanúsítványt kibocsátó szervek : az 5. pontban szereplő szervek.
7. A jegyzékben való feltüntetés érvényességének határideje : nincs meghatározva.
SVÁJC
1. Termékkategóriák :
| Termékkategória | A kategória IV. melléklet szerinti meghatározása | Megkötések |
| Feldolgozatlan növényi termékek | A | Az átállási időszakban előállított termékek kivételével |
| Élő állatok és feldolgozatlan állati termékek | B | — |
| Feldolgozott, élelmiszerként való felhasználásra szánt mezőgazdasági termékek | D | Az átállási időszakban előállított mezőgazdasági eredetű összetevőt tartalmazó termékek kivételével |
| Feldolgozott, takarmányként való felhasználásra szánt mezőgazdasági termékek | E | Az átállási időszakban előállított mezőgazdasági eredetű összetevőt tartalmazó termékek kivételével |
| Termesztésre szánt vegetatív szaporítóanyag és vetőmag | F | |
2. Származás :
az A és F kategóriába tartozó, Svájcban előállított termékek, valamint a D és E kategóriába tartozó, Svájcban feldolgozott termékek, amelyek összetevőit ökológiai termeléssel Svájcban állították elő vagy Svájcba importálták:
- vagy az Unióból,
- vagy olyan harmadik országból, amely tekintetében Svájc elismerte, hogy az ott előállított termékeket a svájci jogszabályokban meghatározottakkal egyenértékű szabályok alapján állították elő és ellenőrizték.
3. Termelési szabványok : az ökológiai termelésre és az ökológiai termeléssel előállított növényi termékek és élelmiszerek címkézésére vonatkozó rendelet.
4. Illetékes hatóság : Federal Office for Agriculture FOAG, Federal Office for Agriculture FOAG, http://www.blw.admin.ch/themen/00013/00085/00092/index.html?lang=en.
5. Ellenőrző szervek :
| Kódszám | Név | Internetcím |
| CH-BIO-004 | Ecocert IMOswiss AG | http://www.ecocert-imo.ch |
| CH-BIO-006 | bio.inspecta AG | www.bio-inspecta.ch |
| CH-BIO-038 | ProCert AG | https://www.procert.ch/ |
| CH-BIO-086 | Bio Test Agro (BTA) | www.bio-test-agro.ch |
6. Tanúsítványt kibocsátó szervek : az 5. pontban szereplő szervek.
7. A jegyzékben való feltüntetés érvényességének határideje : nincs meghatározva.
TUNÉZIA
1. Termékkategóriák :
| Termékkategória | A kategória IV. melléklet szerinti meghatározása | Megkötések |
| Feldolgozatlan növényi termékek | A | |
| Feldolgozott, élelmiszerként való felhasználásra szánt mezőgazdasági termékek (1) | D | alapvetően egy vagy több növényi eredetű összetevőből álló termékek |
| Termesztésre szánt vegetatív szaporítóanyag és vetőmag | F | |
| (1) A bor és az élesztő nem tartozik ebbe a kategóriába. | ||
2. Származás : az A és F kategóriába tartozó, Tunéziában előállított termékek, valamint a D kategóriába tartozó, Tunéziában feldolgozott termékek, amelyek összetevőit ökológiai termeléssel Tunéziában állították elő.
3. Termelési szabványok : az ökológiai termelésről szóló, 1999. április 5-i 99-30. számú törvény; az ökológiai növénytermesztésre vonatkozó szabványelőírások jóváhagyásáról szóló, 2001. február 28-i mezőgazdasági miniszteri rendelet.
4. Illetékes hatóság : Ministère de l'Agriculture, des Ressources Hydrauliques et de la Pêche, www.agriculture.tn és www.onagri.tn.
5. Ellenőrző szervek :
| TN-BIO-001 | Ecocert SA | www.ecocert.com |
| TN-BIO-007 | Institut national de la normalisation et de la propriété industrielle (INNORPI) | www.innorpi.tn |
| TN-BIO-008 | CCPB Srl | www.ccpb.it |
| TN-BIO-009 | CERES GmbH | www.ceres-cert.com |
| TN-BIO-010 | Kiwa BCS Öko-Garantie GmbH | www.kiwabcs.com |
6. Tanúsítványt kibocsátó szervek : az 5. pontban szereplő szervek.
7. A jegyzékben való feltüntetés érvényességének határideje : nincs meghatározva.
AMERIKAI EGYESÜLT ÁLLAMOK
1. Termékkategóriák :
| Termékkategória | A kategória IV. melléklet szerinti meghatározása | Megkötések |
| Feldolgozatlan növényi termékek | A | — |
| Élő állatok vagy feldolgozatlan állati termékek | B | |
| Feldolgozott, élelmiszerként való felhasználásra szánt mezőgazdasági termékek (1) | D | — |
| Feldolgozott, takarmányként való felhasználásra szánt mezőgazdasági termékek | E | |
| Termesztésre szánt vegetatív szaporítóanyag és vetőmag | F | |
| (1) 2012. augusztus 1-jétől a bor is ebbe a kategóriába tartozik. | ||
2. Származás :
az A, B és F kategória termékei és a D és E kategóriába tartozó termékek ökológiai termeléssel előállított összetevői, amelyeket:
- az Egyesült Államokban termeltek, vagy
- az Egyesült Államokba importáltak és az Egyesült Államokban, az ottani jogszabályoknak megfelelően dolgoztak fel vagy csomagoltak.
3. Termelési szabványok : Organic Foods Production Act of 1990 (7 U.S.C. 6501 et seq.), National Organic Program (7 CFR 205).
4. Illetékes hatóság : United States Department of Agriculture (USDA), Agricultural Marketing Service (AMS), www.usda.gov.
5. Ellenőrző szervek :
| Kódszám | Név | Internetcím |
| US-ORG-001 | Where Food Comes From Organic | www.wfcforganic.com |
| US-ORG-002 | Agricultural Services Certified Organic | www.ascorganic.com/ |
| US-ORG-003 | Baystate Organic Certifiers | www.baystateorganic.org |
| US-ORG-004 | Kiwa BCS Öko-Garantie GmbH | www.bcs-oeko.com |
| US-ORG-005 | BioAgriCert | http://www.bioagricert.org/english |
| US-ORG-006 | CCOF Certification Services | www.ccof.org |
| US-ORG-007 | Colorado Department of Agriculture | www.colorado.gov |
| US-ORG-008 | Control Union Certifications | www.skalint.com |
| US-ORG-009 | Department of Plant Industry – Clemson University | www.clemson.edu/organic |
| US-ORG-010 | Ecocert S.A. | www.ecocert.com |
| US-ORG-011 | Georgia Crop Improvement Association, Inc. | www.certifiedseed.org |
| US-ORG-013 | Global Organic Alliance, Inc. | www.goa-online.org |
| US-ORG-015 | Idaho State Department of Agriculture | www.agri.idaho.gov/Categories/PlantsInsects/Organic/indexOrganicHome.php |
| US-ORG-016 | Ecocert ICO, LLC | www.ecocertico.com |
| US-ORG-017 | International Certification Services, Inc. | www.ics-intl.com |
| US-ORG-018 | Iowa Department of Agriculture and Land Stewardship | https://www.iowaagriculture.gov/AgDiversification/organicCertification.asp |
| US-ORG-019 | Kentucky Department of Agriculture | www.kyagr.com/marketing/plantmktg/organic/index.htm |
| US-ORG-020 | LACON GmbH | www.lacon-institut.com |
| US-ORG-022 | Marin Organic Certified Agriculture | https://www.marincounty.org/depts/ag/moca |
| US-ORG-023 | Maryland Department of Agriculture | http://mda.maryland.gov/foodfeedquality/Pages/certified_md_organic_farms.aspx |
| US-ORG-024 | Mayacert S.A. | www.mayacert.com |
| US-ORG-025 | Midwest Organic Services Association, Inc. | www.mosaorganic.org |
| US-ORG-026 | Minnesota Crop Improvement Association | www.mncia.org |
| US-ORG-027 | MOFGA Certification Services, LLC | www.mofga.org/ |
| US-ORG-028 | Montana Department of Agriculture | http://agr.mt.gov/agr/Producer/Organic/Info/index.html |
| US-ORG-029 | Monterey County Certified Organic | https://www.co.monterey.ca.us/government/departments-a-h/agricultural-commissioner/agricultural-resource-programs/agricultural-product-quality-and-marketing/monterey-county-certifi#ag |
| US-ORG-030 | Natural Food Certifiers | www.nfccertification.com |
| US-ORG-031 | Nature’s International Certification Services | www.naturesinternational.com/ |
| US-ORG-033 | New Hampshire Department of Agriculture, Division of Regulatory Services | www.agriculture.nh.gov |
| US-ORG-034 | New Jersey Department of Agriculture | www.nj.gov/agriculture/divisions/md/prog/jerseyorganic.html |
| US-ORG-035 | New Mexico Department of Agriculture, Organic Program | www.nmda.nmsu.edu/marketing/organic-program |
| US-ORG-036 | NOFA–New York Certified Organic, LLC | http://www.nofany.org |
| US-ORG-037 | Ohio Ecological Food and Farm Association | www.oeffa.org |
| US-ORG-038 | Americert International (OIA North America, LLC) | http://www.americertorganic.com/home |
| US-ORG-039 | Oklahoma Department of Agriculture, Food and Forestry | www.oda.state.ok.us |
| US-ORG-040 | OneCert | www.onecert.com |
| US-ORG-041 | Oregon Department of Agriculture | www.oregon.gov/ODA/CID |
| US-ORG-042 | Oregon Tilth Certified Organic | www.tilth.org |
| US-ORG-043 | Organic Certifiers, Inc. | http://www.organiccertifiers.com |
| US-ORG-044 | Organic Crop Improvement Association | www.ocia.org |
| US-ORG-046 | Organizacion Internacional Agropecuraria | www.oia.com.ar |
| US-ORG-047 | Pennsylvania Certified Organic | www.paorganic.org |
| US-ORG-048 | Primus Auditing Operations | http://www.primusauditingops.com |
| US-ORG-049 | Pro-Cert Organic Systems, Ltd | www.pro-cert.org |
| US-ORG-050 | Quality Assurance International | www.qai-inc.com |
| US-ORG-051 | Quality Certification Services | www.QCSinfo.org |
| US-ORG-052 | Rhode Island Department of Environmental Management | www.dem.ri.gov/programs/bnatres/agricult/orgcert.htm |
| US-ORG-053 | SCS Global Services, Inc. | www.SCSglobalservices.com |
| US-ORG-055 | Texas Department of Agriculture | http://www.texasagriculture.gov/regulatoryprograms/organics.aspx |
| US-ORG-056 | Utah Department of Agriculture | http://ag.utah.gov/divisions/plant/organic/index.html |
| US-ORG-057 | Vermont Organic Farmers, LLC | http://www.nofavt.org |
| US-ORG-058 | Washington State Department of Agriculture | www.agr.wa.gov/FoodAnimal/Organic |
| US-ORG-059 | Yolo County Department of Agriculture | https://www.yolocounty.org/general-government/general-government-departments/agriculture-cooperative-extension/agriculture-and-weights-measures/yolo-certified-organic-agriculture |
| US-ORG-62 | CERES | http://www.ceres-cert.com/ |
| US-ORG-063 | Eco-Logica S.A | http://www.eco-logica.com/ |
| US-ORG-64 | Food Safety S.A. | http://www.foodsafety.com.ar/ |
| US-ORG-65 | IBD Certifications | http://www.ibd.com.br/ |
| US-ORG-66 | Istituto per la Certificazione Etica e Ambientale (ICEA) | http://www.icea.info/ |
| US-ORG-067 | OnMark Certification Services | http://onmarkcertification.com/ |
| US-ORG-68 | Perry Johnson Registrar Food Safety, Inc. | http://www.pjrfsi.com/ |
6. Tanúsítványt kibocsátó szervek : az 5. pontban szereplő szervek.
7. A jegyzékben való feltüntetés érvényességének határideje : nincs meghatározva.
ÚJ-ZÉLAND
1. Termékkategóriák :
| Termékkategória | A kategória IV. melléklet szerinti meghatározása | Megkötések |
| Feldolgozatlan növényi termékek | A | |
| Élő állatok vagy feldolgozatlan állati termékek | B | — |
| Feldolgozott, élelmiszerként való felhasználásra szánt mezőgazdasági termékek (1) | D | — |
| Termesztésre szánt vegetatív szaporítóanyag és vetőmag | F | |
| (1) Az élesztő nem tartozik ebbe a kategóriába. | ||
2. Származás :
az A, B és F kategóriába tartozó, Új-Zélandban előállított termékek, valamint a D kategóriába tartozó, Új-Zélandban feldolgozott termékek, amelyek összetevőit ökológiai termeléssel Új-Zélandban állították elő vagy Új-Zélandba importálták:
- vagy az Unióból,
- vagy harmadik országból egy olyan rendszer keretében, amelyet a 834/2007/EK rendelet 33. cikkének (2) bekezdése szerint egyenértékűnek ismertek el,
- vagy egy olyan harmadik országból, amelynek termelési és ellenőrzési előírásait - a MAF által megállapított rendelkezéseknek megfelelően ezen ország illetékes hatósága által benyújtott garanciák és adatok alapján - a MAF ökológiai termékek hatósági minőségbiztosítására vonatkozó programjával ("Official Organic Assurance Programme") egyenértékűnek ismerték el, és feltéve, hogy csak az Új-Zélandon előállított, a D kategóriába tartozó - maximum 5 % mezőgazdasági eredetű terméket tartalmazó - termékekbe történő bedolgozásra szánt, ökológiai termeléssel előállított összetevők kerülnek behozatalra.
3. Termelési szabványok : MAF Official Organic Assurance Programme Technical Rules for Organic Production.
4. Illetékes hatóság :
Elsődleges Iparágak Minisztériuma (MPI)
http://www.mpi.govt.nz/exporting/food/organics/
5. Ellenőrző szervek :
| NZ-BIO-001 | Elsődleges Iparágak Minisztériuma (MPI) | http://www.mpi.govt.nz/exporting/food/organics/ |
| NZ-BIO-002 | AsureQuality Limited | https://www.asurequality.com |
| NZ-BIO-003 | BioGro New Zealand Limited | https://www.biogro.co.nz |
6. Tanúsítványt kibocsátó szerv : Elsődleges Iparágak Minisztériuma (MPI)
7. A jegyzékben való feltüntetés érvényességének határideje : nincs meghatározva.
KOREAI KÖZTÁRSASÁG
1. Termékkategóriák
:
| Termékkategória | A kategória IV. melléklet szerinti meghatározása | Megkötések |
| Feldolgozott, élelmiszerként való felhasználásra szánt mezőgazdasági termékek | D |
2. Származás
:
a D kategóriába tartozó, a Korai Köztársaságban feldolgozott termékek, amelyek összetevőit ökológiai termeléssel a Korai Köztársaságban állították elő vagy a Koreai Köztársaságba importálták:
- vagy az Unióból,
- vagy olyan harmadik országból, amely tekintetében a Koreai Köztársaság elismerte, hogy az ott előállított termékeket a Koreai Köztársaság jogszabályaiban meghatározottakkal egyenértékű szabályok alapján állították elő és ellenőrizték.
3. Termelési szabványok : a környezetbarát mezőgazdaság és halászat előmozdításáról és az ökológiai élelmiszerek kezeléséről és támogatásáról szóló törvény.
4. Illetékes hatóság : Ministry of Agriculture, Food and Rural Affairs, www.enviagro.go.kr/portal/en/main.do
5. Ellenőrző szervek
:
| Kódszám | Elnevezés | Internetcím |
| KR-ORG-002 | Doalnara Organic Certificated Korea | www.doalnara.or.kr |
| KR-ORG-004 | Global Organic Agriculturalist Association | www.goaa.co.kr |
| KR-ORG-005 | OCK | http://www.greenock.co.kr/ |
| KR-ORG-006 | KAFCC | http://eco.konkuk.ac.kr |
| KR-ORG-007 | Korea Environment-Friendly Organic Certification Center | www.a-cert.co.kr |
| KR-ORG-008 | Konkuk Ecocert Certification Service | www.ecocert.co.kr |
| KR-ORG-009 | Woorinong Certification | https://blog.naver.com/woorinongin/70107436715 |
| KR-ORG-010 | ACO(Australian Certified Organic) | www.aco.net.au |
| KR-ORG-011 | Kiwa BCS Öko-Garantie GmbH | www.bcs-oeko.com |
| KR-ORG-012 | BCS Korea | www.bcskorea.com |
| KR-ORG-013 | Hansol Food, Agriculture, Fisher-Forest Certification Center | www.hansolnonglim.com |
| KR-ORG-014 | The Center for Environment Friendly Agricultural Products Certification | www.hgreent.or.kr |
| KR-ORG-015 | ECO-Leaders Certification Co.,Ltd. | www.ecoleaders.kr |
| KR-ORG-017 | Jeonnam bioindustry foundation | www.jbf.kr |
| KR-ORG-019 | Neo environmentally-friendly Certification Center | https://neoefcc.modoo.at/ |
| KR-ORG-020 | Green Environmentally-Friendly certification center | http://cafe.naver.com/greenorganic6279 |
| KR-ORG-021 | ISC Agriculture development research institute | www.isc-cert.com |
| KR-ORG-022 | Greenstar Agrifood Certification Center | [Kép #1] |
| KR-ORG-023 | Control Union Korea | www.controlunion.co.kr |
| KR-ORG-024 | Industry-Academic Cooperation Foundation, SCNU | http://siacf.scnu.ac.kr/web/siacf/home |
| KR-ORG-026 | Agricultural Products Quality Service | http://apqs.kr |
| KR-ORG-027 | University Industry Liaison office of CNU | http://sanhak.jnu.ac.kr/eng/ |
| KR-ORG-029 | Eco Agriculture Institute Inc. | http://blog.daum.net/ifea2011 |
| KR-ORG-030 | Korea Crops Research Institute (co.ltd) | https://blog.naver.com/kor034 |
| KR-ORG-031 | Korea organic certification | http://blog.daum.net/koafc2019 |
| KR-ORG-032 | Jayeondeul agri-food certification institute | www.jaci.kr |
| KR-ORG-033 | Institute of Organic food Evaluation | www.ioe42.com |
| KR-ORG-034 | EverGreen Nongouhwi | http://blog.naver.com/evergreen8374 |
| KR-ORG-035 | ONNURI ORGANIC Co., Ltd. | https://blog.naver.com/onr77830 |
| KR-ORG-036 | Hankyoung Certification Center Co., Ltd. | https://blog.naver.com/hk61369 |
| KR-ORG-037 | Ctforum. LTD | http://blog.daum.net/ctforum |
Kép #1
6. Tanúsítványt kibocsátó szervek és hatóságok : a 5. pontban szereplő szervek.
7. A jegyzékben való feltüntetés érvényességének határideje : nincs meghatározva.
IV. MELLÉKLET
AZ EGYENÉRTÉKŰSÉG TEKINTETÉBEN ELISMERT ELLENŐRZŐ SZERVEK ÉS ELLENŐRZŐ HATÓSÁGOK JEGYZÉKE, VALAMINT A 10. CIKKBEN EMLÍTETT VONATKOZÓ ADATOK
E melléklet alkalmazásában a termékkategóriákat a következő kódok jelölik:
A : Feldolgozatlan növényi termékek
B : Élő állatok vagy feldolgozatlan állati termékek
C : Feldolgozatlan akvakultúra-termékek és algák
D : Feldolgozott, élelmiszerként való felhasználásra szánt mezőgazdasági termékek ( 9 )
E : Feldolgozott, takarmányként való felhasználásra szánt mezőgazdasági termékek (9)
F : Termesztésre szánt vegetatív szaporítóanyag és vetőmag
Eltérő rendelkezés hiányában az egyes ellenőrző szervekre vagy ellenőrző hatóságokra vonatkozó ismertetés 2. pontjában megadott internetcímen érhető el az a 10. cikk (2) bekezdésének e) pontjában említett internetes oldal, amelyen megtalálható az ellenőrzési rendszer hatálya alá tartozó gazdasági szereplők jegyzéke, valamint egy olyan kapcsolattartó pont, amelyen keresztül azonnal elérhetők az említett gazdasági szereplők tanúsítási státusára, az érintett termékkategóriákra, valamint a felfüggesztett és tanúsításuktól megfosztott gazdasági szereplőkre és termékekre vonatkozó információk.
"A CERT European Organization for Certification S.A."
1. Cím: 2 Tilou street, 54638 Thessaloniki, Görögország
2. Internetcím: www.a-cert.org
3. Érintett kódszámok, harmadik országok és termékkategóriák:
| Kódszám | Harmadik ország | Termékkategória | |||||||
| A | B | C | D | E | F | ||||
| AE-BIO-171 | Egyesült Arab Emírségek | x | — | — | x | — | — | ||
| AL-BIO-171 | Albánia | x | — | — | x | — | — | ||
| AM-BIO-171 | Örményország | x | — | — | x | — | — | ||
| AZ-BIO-171 | Azerbajdzsán | x | — | — | x | — | — | ||
| BT-BIO-171 | Bhután | x | — | — | x | — | — | ||
| BY-BIO-171 | Belarusz | x | — | — | x | — | — | ||
| CL-BIO-171 | Chile | x | — | — | x | — | — | ||
| CN-BIO-171 | Kína | x | — | — | x | — | — | ||
| DO-BIO-171 | Dominikai Köztársaság | x | — | — | x | — | — | ||
| EC-BIO-171 | Ecuador | x | — | — | x | — | — | ||
| EG-BIO-171 | Egyiptom | x | — | — | x | — | — | ||
| ET-BIO-171 | Etiópia | x | — | — | x | — | — | ||
| GD-BIO-171 | Grenada | x | — | — | x | — | — | ||
| GE-BIO-171 | Grúzia | x | — | — | x | — | — | ||
| GH-BIO-171 | Ghána | x | — | — | x | — | — | ||
| ID-BIO-171 | Indonézia | x | — | — | x | — | — | ||
| IR-BIO-171 | Irán | x | — | — | x | — | — | ||
| JM-BIO-171 | Jamaica | x | — | — | x | — | — | ||
| JO-BIO-171 | Jordánia | x | — | — | x | — | — | ||
| KE-BIO-171 | Kenya | x | — | — | x | — | — | ||
| KW-BIO-171 | Kuvait | x | — | — | x | — | — | ||
| KZ-BIO-171 | Kazahsztán | x | — | — | x | — | — | ||
| LB-BIO-171 | Libanon | x | — | — | x | — | — | ||
| MA-BIO-171 | Marokkó | x | — | — | x | — | — | ||
| MD-BIO-171 | Moldova | x | — | — | x | — | — | ||
| MK-BIO-171 | Macedónia Volt Jugoszláv Köztársaság | x | — | — | x | — | — | ||
| OM-BIO-171 | Omán | x | — | — | x | — | — | ||
| PE-BIO-171 | Peru | x | — | — | x | — | — | ||
| PG-BIO-171 | Pápua Új-Guinea | x | — | — | x | — | — | ||
| PH-BIO-171 | Fülöp-szigetek | x | — | — | x | — | — | ||
| PK-BIO-171 | Pakisztán | x | — | — | x | — | — | ||
| RS-BIO-171 | Szerbia | x | — | — | x | — | — | ||
| RU-BIO-171 | Oroszország | x | — | — | x | — | — | ||
| RW-BIO-171 | Ruanda | x | — | — | x | — | — | ||
| SA-BIO-171 | Szaúd-Arábia | x | — | — | x | — | — | ||
| SD-BIO-171 | Szudán | x | — | — | x | — | — | ||
| TH-BIO-171 | Thaiföld | x | — | — | x | — | — | ||
| TR-BIO-171 | Törökország | x | — | — | x | — | — | ||
| TW-BIO-171 | Tajvan | x | — | — | x | — | — | ||
| TZ-BIO-171 | Tanzánia | x | — | — | x | — | — | ||
| UA-BIO-171 | Ukrajna | x | — | — | x | — | — | ||
| UG-BIO-171 | Uganda | x | — | — | x | — | — | ||
| UZ-BIO-171 | Üzbegisztán | x | — | — | x | — | — | ||
| VN-BIO-171 | Vietnám | x | — | — | x | — | — | ||
| XK-BIO-171 | Koszovó (1) | x | — | — | x | — | — | ||
| ZA-BIO-171 | Dél-Afrika | x | — | — | x | — | — | ||
| (1) Ez a megnevezés nem érinti a jogállással kapcsolatos álláspontokat, továbbá összhangban van az 1244 (1999) sz. ENSZ BT-határozattal és a Nemzetközi Bíróságnak a koszovói függetlenségi nyilatkozatról szóló véleményével. | |||||||||
4. Kivételek: az ökológiai termelésre való átállás időszakából származó termékek és a III. mellékletben szereplő termékek.
5. A jegyzékben való feltüntetés érvényességének vége: 2021. december 31.
AfriCert Limited
1. Cím: Plaza 2000 1st Floor, East Wing - Mombasa Road, Nairobi, Kenya
2. Internetcím: www.africertlimited.co.ke
3. Érintett kódszámok, harmadik országok és termékkategóriák:
| Kódszám | Harmadik ország | Termékkategória | |||||
| A | B | C | D | E | F | ||
| BI-BIO-184 | Burundi | x | x | – | – | – | – |
| CD-BIO-184 | Kongói Demokratikus Köztársaság | x | x | – | – | – | – |
| GH-BIO-184 | Ghána | x | x | – | – | – | – |
| KE-BIO-184 | Kenya | x | x | – | – | – | – |
| RW-BIO-184 | Ruanda | x | x | – | – | – | – |
| TZ-BIO-184 | Tanzánia | x | x | – | – | – | – |
| UG-BIO-184 | Uganda | x | x | – | – | – | – |
4. Kivételek: az ökológiai termelésre való átállás időszakából származó termékek.
5. A jegyzékben való feltüntetés érvényességének vége: 2021. december 31.
"Agreco R.F. Göderz GmbH"
1. Cím: Mündener Straße 19, 37218 Witzenhausen, Németország
2. Internetcím: http://agrecogmbh.de
3. Érintett kódszámok, harmadik országok és termékkategóriák:
| Kódszám | Harmadik ország | Termékkategória | |||||
| A | B | C | D | E | F | ||
| AZ-BIO-151 | Azerbajdzsán | x | x | — | x | — | — |
| BA-BIO-151 | Bosznia-Hercegovina | x | x | — | x | — | — |
| BF-BIO-151 | Burkina Faso | x | x | — | x | — | — |
| BO-BIO-151 | Bolívia | x | x | — | x | — | — |
| CM-BIO-151 | Kamerun | x | x | — | x | — | — |
| CO-BIO-151 | Kolumbia | x | x | — | x | — | — |
| CU-BIO-151 | Kuba | x | x | — | x | — | — |
| CV-BIO-151 | Zöld-foki-szigetek | x | x | — | x | — | — |
| DO-BIO-151 | Dominikai Köztársaság | x | x | — | x | — | — |
| EC-BIO-151 | Ecuador | x | x | — | x | — | — |
| EG-BIO-151 | Egyiptom | x | x | — | x | — | — |
| ET-BIO-151 | Etiópia | x | x | — | x | — | — |
| FJ-BIO-151 | Fidzsi | x | x | — | x | — | — |
| GE-BIO-151 | Grúzia | x | x | — | x | — | — |
| GH-BIO-151 | Ghána | x | x | — | x | — | — |
| GT-BIO-151 | Guatemala | x | x | — | x | — | — |
| HN-BIO-151 | Honduras | x | x | — | x | — | — |
| ID-BIO-151 | Indonézia | x | x | — | x | — | — |
| IR-BIO-151 | Irán | x | x | — | x | — | — |
| KE-BIO-151 | Kenya | x | x | — | x | — | — |
| KG-BIO-151 | Kirgizisztán | x | x | — | x | — | — |
| KH-BIO-151 | Kambodzsa | x | x | — | x | — | — |
| KZ-BIO-151 | Kazahsztán | x | x | — | x | — | — |
| LK-BIO-151 | Srí Lanka | x | x | — | x | — | — |
| MA-BIO-151 | Marokkó | x | x | — | x | — | — |
| MD-BIO-151 | Moldova | x | x | — | x | — | — |
| ME-BIO-151 | Montenegró | x | x | — | x | — | — |
| MG-BIO-151 | Madagaszkár | x | x | — | x | — | — |
| MK-BIO-151 | Macedónia Volt Jugoszláv Köztársaság | x | x | — | x | — | — |
| ML-BIO-151 | Mali | x | x | — | x | — | — |
| MX-BIO-151 | Mexikó | x | x | — | x | — | — |
| NG-BIO-151 | Nigéria | x | x | — | x | — | — |
| NI-BIO-151 | Nicaragua | x | x | — | x | — | — |
| NP-BIO-151 | Nepál | x | x | — | x | — | — |
| PE-BIO-151 | Peru | x | x | — | x | — | — |
| PG-BIO-151 | Pápua Új-Guinea | x | x | — | x | — | — |
| PH-BIO-151 | Fülöp-szigetek | x | x | — | x | — | — |
| PY-BIO-151 | Paraguay | x | x | — | x | — | — |
| RS-BIO-151 | Szerbia | x | x | — | x | — | — |
| RU-BIO-151 | Oroszország | x | x | — | x | — | — |
| SB-BIO-151 | Salamon-szigetek | x | x | — | x | — | — |
| SN-BIO-151 | Szenegál | x | x | — | x | — | — |
| SR-BIO-151 | Suriname | x | x | — | x | — | — |
| SV-BIO-151 | Salvador | x | x | — | x | — | — |
| TG-BIO-151 | Togó | x | x | — | x | — | — |
| TH-BIO-151 | Thaiföld | x | x | — | x | — | — |
| TM-BIO-151 | Türkmenisztán | x | x | — | x | — | — |
| TO-BIO-151 | Tonga | x | x | — | x | — | — |
| TV-BIO-151 | Tuvalu | x | x | — | x | — | — |
| TZ-BIO-151 | Tanzánia | x | x | — | x | — | — |
| UA-BIO-151 | Ukrajna | x | x | — | x | — | — |
| UG-BIO-151 | Uganda | x | x | — | x | — | — |
| UY-BIO-151 | Uruguay | x | x | — | x | — | — |
| UZ-BIO-151 | Üzbegisztán | x | x | — | x | — | — |
| VE-BIO-151 | Venezuela | x | x | — | x | — | — |
| VN-BIO-151 | Vietnám | x | x | — | x | — | — |
| WS-BIO-151 | Szamoa | x | x | — | x | — | — |
| ZA-BIO-151 | Dél-Afrika | x | x | — | x | — | — |
4. Kivételek: az ökológiai termelésre való átállás időszakából származó termékek és a bor.
5. A jegyzékben való feltüntetés érvényességének vége: 2021. december 31.
"Agricert - Certificação de Produtos Alimentares LDA"
1. Cím: Rua Alfredo Mirante, 1, R/c Esq., 7350-154 Elvas, Portugália
2. Internetcím: www.agricert.pt
3. Érintett kódszámok, harmadik országok és termékkategóriák:
| Kódszám | Harmadik ország | Termékkategória | |||||
| A | B | C | D | E | F | ||
| AO-BIO-172 | Angola | x | — | — | x | — | — |
| AZ-BIO-172 | Azerbajdzsán | x | – | – | x | – | – |
| BR-BIO-172BR-BIO-172 | Brazília | x | – | – | x | – | – |
| CM-BIO-172CM-BIO-172 | Kamerun | x | – | – | x | – | – |
| CN-BIO-172 | Kína | x | – | – | x | – | – |
| CV-BIO-172 | Zöld-foki-szigetek | x | – | – | x | – | – |
| EG-BIO-172 | Egyiptom | x | — | — | x | — | — |
| GE-BIO-172 | Grúzia | x | – | – | x | – | – |
| GH-BIO-172 | Ghána | x | – | – | x | – | – |
| GW-BIO-172 | Bissau-Guinea | x | — | — | x | — | — |
| KH-BIO-172 | Kambodzsa | x | – | – | x | – | – |
| KZ-BIO-172 | Kazahsztán | x | – | – | x | – | – |
| MA-BIO-172 | Marokkó | x | – | – | x | – | – |
| MX-BIO-172 | Mexikó | x | – | – | x | – | – |
| MZ-BIO-172 | Mozambik | x | — | — | x | — | — |
| PA-BIO-172 | Panama | x | – | – | x | – | – |
| PY-BIO-172 | Paraguay | x | – | – | x | – | – |
| SN-BIO-172 | Szenegál | x | – | – | x | – | – |
| ST-BIO-172 | São Tomé és Príncipe | x | — | — | x | — | — |
| TL-BIO-172 | Kelet-Timor | x | – | – | x | – | – |
| TR-BIO-172 | Törökország | x | – | – | x | – | – |
| VN-BIO-172 | Vietnám | x | – | – | x | – | – |
4. Kivételek: az ökológiai termelésre való átállás időszakából származó termékek és a bor.
5. A jegyzékben való feltüntetés érvényességének vége: 2021. december 31.
"Albinspekt"
1. cím: Rr. Kavajes, Nd.132, Hy.9, Kati 8, Ap.43 (Perballe pallatit me shigjeta), Tirana, Albánia
2. Internetcím: http://www.albinspekt.com
3. Érintett kódszámok, harmadik országok és termékkategóriák:
| Kódszám | Harmadik ország | Termékkategória | |||||
| A | B | C | D | E | F | ||
| AL-BIO-139 | Albánia | x | x | — | x | — | — |
| AM-BIO-139 | Örményország | x | x | — | x | — | — |
| BA-BIO-139 | Bosznia-Hercegovina | x | x | — | x | — | — |
| IR-BIO-139 | Irán | — | x | — | — | — | — |
| KZ-BIO-139 | Kazahsztán | — | x | — | — | — | — |
| MD-BIO-139 | Moldova | — | x | — | — | — | — |
| ME-BIO-139 | Montenegró | x | x | — | x | — | — |
| MK-BIO-139 | Macedónia Volt Jugoszláv Köztársaság | x | x | — | x | — | — |
| RS-BIO-139 | Szerbia | x | x | — | x | — | — |
| TR-BIO-139 | Törökország | — | x | — | — | — | — |
| UA-BIO-139 | Ukrajna | — | x | — | — | — | — |
| XK-BIO-139 | Koszovó (1) | x | x | — | x | — | — |
| (1) Ez a megnevezés nem érinti a jogállással kapcsolatos álláspontokat, továbbá összhangban van az 1244 (1999) ENSZ BT-határozattal és a Nemzetközi Bíróságnak a koszovói függetlenségi nyilatkozatról szóló véleményével. | |||||||
4. Kivételek: az ökológiai termelésre való átállás időszakából származó termékek és a bor.
5. A jegyzékben való feltüntetés érvényességének vége: 2021. december 31.
"Australian Certified Organic"
1. Cím: PO Box 810 - 18 Eton St, Nundah, QLD 4012, Ausztrália
2. Internetcím: http://www.aco.net.au
3. Érintett kódszámok, harmadik országok és termékkategóriák:
| Kódszám | Harmadik ország | Termékkategória | |||||
| A | B | C | D | E | F | ||
| AU-BIO-107 | Ausztrália | — | x | — | x | — | — |
| CK-BIO-107 | Cook-szigetek | x | — | — | x | — | — |
| CN-BIO-107 | Kína | x | x | — | x | — | — |
| FJ-BIO-107 | Fidzsi | x | — | — | x | — | — |
| FK-BIO-107 | Falkland-szigetek | — | x | — | — | — | — |
| HK-BIO-107 | Hongkong | x | — | — | x | — | — |
| ID-BIO-107 | Indonézia | x | — | — | x | — | — |
| MG-BIO-107 | Madagaszkár | x | — | — | x | — | — |
| MM-BIO-107 | Mianmar/Burma | x | — | — | x | — | — |
| MY-BIO-107 | Malajzia | x | — | — | x | — | — |
| PG-BIO-107 | Pápua Új-Guinea | x | — | — | x | — | — |
| SG-BIO-107 | Szingapúr | x | — | — | x | — | — |
| TH-BIO-107 | Thaiföld | x | — | — | x | — | — |
| TO-BIO-107 | Tonga | x | — | — | x | — | — |
| TW-BIO-107 | Tajvan | x | — | — | x | — | — |
| VU-BIO-107 | Vanuatu | x | x | — | x | — | — |
4. Kivételek: az ökológiai termelésre való átállás időszakából származó termékek és a III. mellékletben szereplő termékek.
5. A jegyzékben való feltüntetés érvényességének vége: 2021. december 31.
"Balkan Biocert Macedonia DOOEL Skopje"
1. Cím: 2/9, Frederik Sopen Str., 1000 Skopje, Macedónia Volt Jugoszláv Köztársaság
2. Internetcím: http://www.balkanbiocert.mk
3. Érintett kódszámok, harmadik országok és termékkategóriák:
| Kódszám | Harmadik ország | Termékkategória | |||||
| A | B | C | D | E | F | ||
| MK-BIO-157 | Macedónia Volt Jugoszláv Köztársaság | x | x | — | x | — | — |
4. Kivételek: az ökológiai termelésre való átállás időszakából származó termékek és a bor.
5. A jegyzékben való feltüntetés érvényességének vége: 2021. december 31.
"BAȘAK Ekolojik Ürünler Kontrol ve Sertifikasyon Hizmetleri Tic. Ltd."
1. cím: Çinarli Mahallesi Șehit Polis Fethi Sekin Cad. No:3/1006 Konak/İZMİR, Törökország
2. Internetcím: http://basakekolojik.com.tr
3. Érintett kódszámok, harmadik országok és termékkategóriák:
| Kódszám | Harmadik ország | Termékkategória | |||||||
| A | B | C | D | E | F | ||||
| KG-BIO-175 | Kirgizisztán | x | — | — | x | — | — | ||
| TU-BIO-175 | Törökország | x | — | — | x | — | — | ||
4. Kivételek: az ökológiai termelésre való átállás időszakából származó termékek és a bor.
5. A jegyzékben való feltüntetés érvényességének vége: 2021. december 31.
"Beijing Continental Hengtong Certification Co., Ltd"
1. Cím: Room 315, No. 18 Jiaomen, Majiaopu West Rd, Beijing, 100068
2. Internetcím: www.bjchtc.com
3. Érintett kódszámok, harmadik országok és termékkategóriák:
| kódszám | harmadik ország | termékkategória | |||||
| A | B | C | D | E | F | ||
| CN-BIO-182 | Kína | x | — | — | x | — | — |
4. Kivételek: az ökológiai termelésre való átállás időszakából származó termékek és a bor
5. A jegyzékben való feltüntetés érvényességének vége: 2021. december 31.
"Bioagricert S.r.l."
1. Cím: Via dei Macabraccia 8, Casalecchio di Reno, 40033 Bologna, Olaszország
2. Internetcím: http://www.bioagricert.org
3. Érintett kódszámok, harmadik országok és termékkategóriák:
| Kódszám | Harmadik ország | Termékkategória | |||||
| A | B | C | D | E | F | ||
| AF-BIO-132 | Afganisztán | x | – | – | x | – | – |
| AL-BIO-132 | Albánia | x | x | – | x | x | – |
| AZ-BIO-132 | Azerbajdzsán | x | – | – | x | – | – |
| BD-BIO-132 | Banglades | x | x | – | x | – | – |
| BO-BIO-132 | Bolívia | x | x | – | x | – | – |
| BR-BIO-132 | Brazília | x | x | – | x | – | – |
| CA-BIO-132 | Kamerun | x | – | – | x | x | |
| CN-BIO-132 | Kína | x | x | – | x | x | – |
| EC-BIO-132 | Ecuador | x | x | – | x | – | – |
| ET-BIO-132 | Etiópia | x | – | – | x | – | – |
| FJ-BIO-132 | Fidzsi | x | x | – | x | – | – |
| GE-BIO-132 | Grúzia | x | – | – | x | – | – |
| ID-BIO-132 | Indonézia | – | x | – | x | – | – |
| IN-BIO-132 | India | – | x | – | x | – | – |
| IR-BIO-132 | Irán | x | – | – | x | – | – |
| KG-BIO-132 | Kirgizisztán | x | – | – | x | – | – |
| KH-BIO-132 | Kambodzsa | x | x | – | x | – | – |
| KR-BIO-132 | Koreai Köztársaság | x | x | – | – | – | – |
| KZ-BIO-132 | Kazahsztán | x | x | – | x | x | – |
| LA-BIO-132 | Laosz | x | x | – | x | x | – |
| LK-BIO-132 | Srí Lanka | x | x | – | x | – | – |
| MA-BIO-132 | Marokkó | x | x | – | x | – | – |
| MD-BIO-132 | Moldova | x | – | – | x | – | – |
| MM-BIO-132 | Mianmar/Burma | x | x | – | x | – | – |
| MX-BIO-132 | Mexikó | x | x | – | x | – | – |
| MY-BIO-132 | Malajzia | x | x | – | x | x | – |
| NP-BIO-132 | Nepál | x | x | – | x | – | – |
| PF-BIO-132 | Francia Polinézia | x | x | – | x | – | – |
| PH-BIO-132 | Fülöp-szigetek | x | x | – | x | – | – |
| PY-BIO-132 | Paraguay | x | x | – | x | x | – |
| RS-BIO-132 | Szerbia | x | x | – | x | – | – |
| RU-BIO-132 | Oroszország | x | – | – | x | – | – |
| SG-BIO-132 | Szingapúr | x | x | – | x | x | – |
| SN-BIO-132 | Szenegál | x | x | – | x | – | – |
| TG-BIO-132 | Togo | x | x | – | x | – | – |
| TH-BIO-132 | Thaiföld | x | x | – | x | x | – |
| TR-BIO-132 | Törökország | x | x | – | x | x | – |
| UA-BIO-132 | Ukrajna | x | x | – | x | – | – |
| UY-BIO-132 | Uruguay | x | x | – | x | x | – |
| VN-BIO-132 | Vietnám | x | x | – | x | – | – |
4. Kivételek: az ökológiai termelésre való átállás időszakából származó termékek és a bor.
5. A jegyzékben való feltüntetés érvényességének vége: 2021. december 31.
"BIOCert Indonesia"
1. Cím: Jl. Perdana Raya Budi Agung Ruko A1 Cimanggu Residence, 16165 Bogor, Indonézia
2. Internetcím: http://www.biocert.co.id
3. Érintett kódszámok, harmadik országok és termékkategóriák:
| Kódszám | Harmadik ország | Termékkategória | |||||
| A | B | C | D | E | F | ||
| ID-BIO-176 | Indonézia | x | — | — | x | — | — |
4. Kivételek: az ökológiai termelésre való átállás időszakából származó termékek és a bor.
5. A jegyzékben való feltüntetés érvényességének vége: 2021. december 31.
"Biocert International Pvt Ltd"
1. Cím: 701 Pukhraj Corporate, Opposite Navlakha Bus Stop, Indore, 452001, India
2. Internetcím: http://www.biocertinternational.com
3. Érintett kódszámok, harmadik országok és termékkategóriák:
| Kódszám | Harmadik ország | Termékkategória | |||||||
| A | B | C | D | E | F | ||||
| AE-BIO-177 | Egyesült Arab Emírségek | x | — | — | x | — | — | ||
| AF-BIO-177 | Afganisztán | x | — | — | x | — | — | ||
| BD-BIO-177 | Banglades | x | — | — | x | — | — | ||
| BJ-BIO-177 | Benin | x | — | — | x | x | — | ||
| BT-BIO-177 | Bhután | x | — | — | x | — | — | ||
| EG-BIO-177 | Egyiptom | x | — | — | x | — | — | ||
| ET-BIO-177 | Etiópia | x | — | — | x | x | — | ||
| GE-BIO-177 | Grúzia | x | — | — | x | x | — | ||
| IN-BIO-177 | India | — | — | — | x | x | — | ||
| LK-BIO-177 | Srí Lanka | x | — | — | x | x | — | ||
| MM-BIO-177 | Mianmar/Burma | x | — | — | x | — | — | ||
| MU-BIO-177 | Mauritius | x | — | — | x | — | — | ||
| MY-BIO-177 | Malajzia | x | — | — | x | — | — | ||
| MZ-BIO-177 | Mozambik | x | — | — | x | x | — | ||
| NG-BIO-177 | Nigéria | x | — | — | x | x | — | ||
| NP-BIO-177 | Nepál | x | — | — | x | — | — | ||
| OM-BIO-177 | Omán | x | — | — | x | — | — | ||
| PH-BIO-177 | Fülöp-szigetek | x | — | — | x | — | — | ||
| PK-BIO-177 | Pakisztán | x | — | — | x | — | — | ||
| QA-BIO-177 | Katar | x | — | — | x | x | — | ||
| RU-BIO-177 | Oroszország | x | — | — | x | x | — | ||
| SD-BIO-177 | Szudán | x | — | — | x | x | — | ||
| TG-BIO-177 | Togo | x | — | — | x | x | — | ||
| TH-BIO-177 | Thaiföld | x | — | — | x | — | — | ||
| TZ-BIO-177 | Tanzánia | x | — | — | x | — | — | ||
| UA-BIO-177 | Ukrajna | x | — | — | x | x | — | ||
| UG-BIO-177 | Uganda | x | — | — | x | x | — | ||
| VN-BIO-177 | Vietnám | x | — | — | x | — | — | ||
4. Kivételek: az ökológiai termelésre való átállás időszakából származó termékek.
5. A jegyzékben való feltüntetés érvényességének vége: 2021. december 31.
"Biodynamic Association Certification"
1. Cím: Painswick Inn, Gloucester Street, Stroud, GL5 1QG, Egyesült Királyság
2. Internetcím: http://bdcertification.org.uk/
3. Érintett kódszámok, harmadik országok és termékkategóriák:
| Kódszám | Harmadik ország | Termékkategória | |||||
| A | B | C | D | E | F | ||
| GB-BIO-185 | Egyesült Királyság (*1) | x | x | – | x | – | x |
| (*1) A Nagy-Britannia és Észak-Írország Egyesült Királyságának az Európai Unióból és az Európai Atomenergia-közösségből történő kilépéséről szóló megállapodással és különösen az Írországról/Észak-Írországról szóló jegyzőkönyv 5. cikkének az említett jegyzőkönyv 2. mellékletével összefüggésben értelmezett (4) bekezdésével összhangban e melléklet alkalmazásában az Egyesült Királyságra való hivatkozásokat úgy kell értelmezni, hogy azok nem foglalják magukban Észak-Írországot. | |||||||
4. Kivételek: az ökológiai termelésre való átállás időszakából származó termékek.
5. A jegyzékben való feltüntetés érvényességének vége: 2021. december 31.
"BioGro New Zealand Limited"
1. cím: Level 1, 233-237 Lambton Quay, The Old Bank Arcade, Te Aro, Wellington 6011, Új-Zéland
2. Internetcím: http://www.biogro.co.nz
3. Érintett kódszámok, harmadik országok és termékkategóriák:
| Kódszám | Harmadik ország | Termékkategória | |||||
| A | B | C | D | E | F | ||
| FJ-BIO-130 | Fidzsi | x | — | — | x | — | — |
| MY-BIO-130 | Malajzia | — | — | — | x | — | — |
| NU-BIO-130 | Niue | x | — | — | x | — | — |
| VU-BIO-130 | Vanuatu | x | — | — | x | — | — |
| WS-BIO-130 | Szamoa | x | — | — | x | — | — |
4. Kivételek: az ökológiai termelésre való átállás időszakából származó termékek és a bor.
5. A jegyzékben való feltüntetés érvényességének vége: 2021. december 31.
"Bio.inspecta AG"
1. Cím: Ackerstrasse, 5070 Frick, Svájc
2. Internetcím: http://www.bio-inspecta.ch
3. Érintett kódszámok, harmadik országok és termékkategóriák:
| Kódszám | Harmadik ország | Termékkategória | |||||
| A | B | C | D | E | F | ||
| AE-BIO-161 | Egyesült Arab Emírségek | x | — | — | x | — | — |
| AF-BIO-161 | Afganisztán | x | — | — | x | — | — |
| AL-BIO-161 | Albánia | x | x | — | x | x | x |
| AM-BIO-161 | Örményország | x | x | — | x | x | — |
| AZ-BIO-161 | Azerbajdzsán | x | — | x | x | — | |
| BA-BIO-161 | Bosznia-Hercegovina | x | x | — | x | x | x |
| BF-BIO-161 | Burkina Faso | x | — | — | — | — | — |
| BJ-BIO-161 | Benin | x | — | — | — | — | — |
| BR-BIO-161 | Brazília | x | — | — | x | — | — |
| CI-BIO-161 | Elefántcsontpart | x | — | — | x | — | — |
| CN-BIO-161 | Kína | x | — | — | x | — | — |
| CU-BIO-161 | Kuba | x | — | — | x | — | — |
| DO-BIO-161 | Dominikai Köztársaság | x | — | — | x | — | — |
| DZ-BIO-161 | Algéria | x | x | — | x | — | — |
| ET-BIO-161 | Etiópia | x | — | — | x | — | — |
| GE-BIO-161 | Grúzia | x | x | — | x | x | x |
| GH-BIO-161 | Ghána | x | — | — | x | — | — |
| ID-BIO-161 | Indonézia | x | — | — | x | — | — |
| IR-BIO-161 | Irán | x | x | — | x | x | x |
| KE-BIO-161 | Kenya | x | — | — | x | — | — |
| KG-BIO-161 | Kirgizisztán | x | x | — | x | — | — |
| KH-BIO-161 | Kambodzsa | x | — | — | x | — | — |
| KR-BIO-161 | Koreai Köztársaság | x | — | — | — | — | — |
| KZ-BIO-161 | Kazahsztán | x | x | — | x | x | x |
| LB-BIO-161 | Libanon | x | x | — | x | x | — |
| MA-BIO-161 | Marokkó | x | — | — | x | — | — |
| MD-BIO-161 | Moldova | x | x | — | x | x | x |
| ME-BIO-161 | Montenegró | x | x | — | x | x | x |
| MK-BIO-161 | Észak-Macedónia | x | x | — | x | x | x |
| NP-BIO-161 | Nepál | x | — | — | x | — | — |
| PH-BIO-161 | Fülöp-szigetek | x | — | — | x | — | — |
| RS-BIO-161 | Szerbia | x | x | — | x | x | x |
| RU-BIO-161 | Oroszország | x | x | — | x | x | x |
| SN-BIO-161 | Szenegál | x | — | — | x | — | — |
| TD-BIO-161 | Csád | x | — | — | x | — | — |
| TJ-BIO-161 | Tádzsikisztán | x | x | — | x | x | x |
| TR-BIO-161 | Törökország | x | — | — | x | x | x |
| TZ-BIO-161 | Tanzánia | x | x | — | x | x | — |
| UA-BIO-161 | Ukrajna | x | x | — | x | x | x |
| UZ-BIO-161 | Üzbegisztán | x | x | — | x | x | x |
| VN-BIO-161 | Vietnám | x | x | — | x | x | x |
| XK-BIO-161 | Koszovó (1) | x | x | — | x | x | x |
| ZA-BIO-161 | Dél-Afrika | x | — | — | x | — | — |
| (1) Ez a megnevezés nem érinti a jogállással kapcsolatos álláspontokat, továbbá összhangban van az 1244 (1999) ENSZ BT-határozattal és a Nemzetközi Bíróságnak a koszovói függetlenségi nyilatkozatról szóló véleményével. | |||||||
4. Kivételek: az ökológiai termelésre való átállás időszakából származó termékek és a bor.
5. A jegyzékben való feltüntetés érvényességének vége: 2021. december 31.
"Bio Latina Certificadora"
1. Cím: Jr. Domingo Millán 852, Jesús Maria, Lima 11, Lima, Peru
2. Internetcím: http://www.biolatina.com
3. Érintett kódszámok, harmadik országok és termékkategóriák:
| Kódszám | Harmadik ország | Termékkategória | |||||
| A | B | C | D | E | F | ||
| BO-BIO-118 | Bolívia | x | x | — | x | — | — |
| CO-BIO-118 | Kolumbia | x | — | — | x | — | — |
| GT-BIO-118 | Guatemala | x | — | — | x | — | — |
| HN-BIO-118 | Honduras | x | — | — | x | — | — |
| MX-BIO-118 | Mexikó | x | — | — | x | — | — |
| NI-BIO-118 | Nicaragua | x | x | — | x | — | — |
| PA-BIO-118 | Panama | x | — | — | x | — | — |
| PE-BIO-118 | Peru | x | x | — | x | — | — |
| SV-BIO-118 | Salvador | x | — | — | x | — | — |
| VE-BIO-118 | Venezuela | x | — | — | x | — | — |
4. Kivételek: az ökológiai termelésre való átállás időszakából származó termékek és a bor.
5. A jegyzékben való feltüntetés érvényességének vége: 2021. december 31.
"Bureau Veritas Certification France SAS"
1. cím: Le Triangle de l'Arche - 9, cours du Triangle, 92937 Paris la Défense cedex, Franciaország
2. Internetcím: https://filiereagro.bureauveritas.fr/
3. Érintett kódszámok, harmadik országok és termékkategóriák:
| Kódszám | Harmadik ország | Termékkategória | |||||
| A | B | C | D | E | F | ||
| MA-BIO-165 | Marokkó | x | — | — | x | — | — |
| MC-BIO-165 | Monaco | x | — | — | x | — | — |
| MG-BIO-165 | Madagaszkár | x | — | x | x | — | — |
| MU-BIO-165 | Mauritius | x | — | — | x | — | — |
| NI-BIO-165 | Nicaragua | x | — | x | x | — | — |
4. Kivételek: az ökológiai termelésre való átállás időszakából származó termékek.
5. A jegyzékben való feltüntetés érvényességének vége: 2021. december 31.
"Caucascert Ltd"
1. Cím: 2, Marshal Gelovani Street, 5th flour, Suite 410, Tbilisi 0159, Grúzia
2. Internetcím: http://www.caucascert.ge
3. Érintett kódszámok, harmadik országok és termékkategóriák:
| Kódszám | Harmadik ország | Termékkategória | |||||
| A | B | C | D | E | F | ||
| GE-BIO-117 | Grúzia | x | x | — | x | — | x |
| TR-BIO-117 | Törökország | x | – | – | – | – | – |
4. Kivételek: az ökológiai termelésre való átállás időszakából származó termékek.
5. A jegyzékben való feltüntetés érvényességének vége: 2021. december 31.
"CCOF Certification Services"
1. Cím: 2155 Delaware Avenue, Suite 150, Santa Cruz, CA 95060, USA
2. Internetcím: http://www.ccof.org
3. Érintett kódszámok, harmadik országok és termékkategóriák:
| Kódszám | Harmadik ország | Termékkategória | |||||
| A | B | C | D | E | F | ||
| MX-BIO-105 | Mexikó | x | — | — | x | — | — |
4. Kivételek: az ökológiai termelésre való átállás időszakából származó termékek és a bor.
5. A jegyzékben való feltüntetés érvényességének vége: 2021. december 31.
"CCPB Srl"
1. Cím: Viale Masini 36, 40126 Bologna, Olaszország
2. Internetcím: http://www.ccpb.it
3. Érintett kódszámok, harmadik országok és termékkategóriák:
| Kódszám | Harmadik ország | Termékkategória | |||||||
| A | B | C | D | E | F | ||||
| AE-BIO-102 | Egyesült Arab Emírségek | x | x | — | x | x | x | ||
| AF-BIO-102 | Afganisztán | x | — | — | x | — | — | ||
| AL-BIO-102 | Albánia | x | x | — | x | x | x | ||
| AM-BIO-102 | Örményország | x | — | — | x | — | — | ||
| AZ-BIO-102 | Azerbajdzsán | x | x | — | x | x | — | ||
| BF-BIO-102 | Burkina Faso | x | — | x | x | — | — | ||
| BJ-BIO-102 | Benin | x | — | — | — | — | — | ||
| BY-BIO-102 | Belarusz | x | — | — | x | x | — | ||
| CI-BIO-102 | Elefántcsontpart | x | — | x | x | — | — | ||
| CM-BIO-102 | Kamerun | x | — | x | x | — | — | ||
| CN-BIO-102 | Kína | x | x | — | x | x | x | ||
| DZ-BIO-102 | Algéria | x | x | — | x | x | x | ||
| EG-BIO-102 | Egyiptom | x | x | — | x | x | x | ||
| ET-BIO-102 | Etiópia | x | — | — | x | — | — | ||
| GE-BIO-102 | Grúzia | x | x | — | x | x | x | ||
| GH-BIO-102 | Ghána | x | — | — | x | — | — | ||
| HK-BIO-102 | Hongkong | — | — | — | x | x | — | ||
| IQ-BIO-102 | Irak | x | x | — | x | x | x | ||
| IR-BIO-102 | Irán | x | x | — | x | x | x | ||
| JO-BIO-102 | Jordánia | x | x | — | x | x | x | ||
| KG-BIO-102 | Kirgizisztán | x | x | — | x | x | — | ||
| KM-BIO-102 | Comore-szigetek | x | — | x | x | — | — | ||
| KZ-BIO-102 | Kazahsztán | x | — | — | x | x | — | ||
| LB-BIO-102 | Libanon | x | x | — | x | x | x | ||
| MA-BIO-102 | Marokkó | x | x | x | x | x | x | ||
| MD-BIO-102 | Moldova | x | — | — | x | x | — | ||
| MG-BIO-102 | Madagaszkár | x | — | x | x | — | — | ||
| ML-BIO-102 | Mali | x | x | — | x | x | x | ||
| MZ-BIO-102 | Mozambik | — | — | x | x | — | — | ||
| NG-BIO-102 | Nigéria | x | — | — | x | — | — | ||
| PH-BIO-102 | Fülöp-szigetek | x | x | — | x | x | x | ||
| QA-BIO-102 | Katar | x | x | — | x | — | — | ||
| RS-BIO-102 | Szerbia | x | — | — | x | x | — | ||
| RU-BIO-102 | Oroszország | x | — | — | x | x | — | ||
| SA-BIO-102 | Szaúd-Arábia | x | x | — | x | x | x | ||
| SC-BIO-102 | Seychelle-szigetek | — | — | — | x | x | — | ||
| SN-BIO-102 | Szenegál | x | — | — | x | — | — | ||
| SY-BIO-102 | Szíria | x | x | — | x | x | x | ||
| TG-BIO-102 | Togo | x | — | — | — | — | — | ||
| TH-BIO-102 | Thaiföld | x | — | — | x | x | — | ||
| TJ-BIO-102 | Tádzsikisztán | x | — | — | x | x | — | ||
| TM-BIO-102 | Türkmenisztán | x | — | — | x | x | — | ||
| TN-BIO-102 | Tunézia | — | x | x | x | x | — | ||
| TR-BIO-102 | Törökország | x | x | — | x | x | x | ||
| TZ-BIO-102 | Tanzánia | — | — | x | x | — | — | ||
| UA-BIO-102 | Ukrajna | x | x | — | x | x | — | ||
| UG-BIO-102 | Uganda | x | — | — | — | — | — | ||
| UZ-BIO-102 | Üzbegisztán | x | — | — | x | — | — | ||
| VN-BIO-102 | Vietnam | — | — | — | x | — | — | ||
| ZA-BIO-102 | Dél-Afrika | x | x | — | x | x | x | ||
4. Kivételek: az ökológiai termelésre való átállás időszakából származó termékek és a III. mellékletben szereplő termékek.
5. A jegyzékben való feltüntetés érvényességének vége: 2021. december 31.
"CERES Certification of Environmental Standards GmbH"
1. Cím: Vorderhaslach 1, 91230 Happurg, Németország
2. Internetcím: http://www.ceres-cert.com/
3. Érintett kódszámok, harmadik országok és termékkategóriák:
| Kódszám | Harmadik ország | Termékkategória | |||||||
| A | B | C | D | E | F | ||||
| AE-BIO-140 | Egyesült Arab Emírségek | x | — | — | x | — | — | ||
| AL-BIO-140 | Albánia | x | x | — | x | — | — | ||
| AM-BIO-140 | Örményország | x | x | — | x | — | — | ||
| AZ-BIO-140 | Azerbajdzsán | x | — | — | x | — | — | ||
| BD-BIO-140 | Banglades | x | — | — | x | — | — | ||
| BF-BIO-140 | Burkina Faso | x | — | — | x | — | — | ||
| BI-BIO-140 | Burundi | x | — | — | x | — | — | ||
| BJ-BIO-140 | Benin | x | — | — | x | — | — | ||
| BO-BIO-140 | Bolívia | x | x | — | x | — | — | ||
| BR-BIO-140 | Brazília | x | x | — | x | — | — | ||
| BT-BIO-140 | Bhután | x | — | — | x | — | — | ||
| BY-BIO-140 | Belarusz | x | x | — | x | — | — | ||
| CB-BIO-140 | Kuba | x | x | — | x | — | — | ||
| CD-BIO-140 | Kongói Demokratikus Köztársaság | x | — | — | x | — | — | ||
| CG-BIO-140 | Kongó (Brazzaville) | x | — | — | x | — | — | ||
| CL-BIO-140 | Chile | x | x | x | x | — | — | ||
| CM-BIO-140 | Kamerun | x | x | — | x | — | — | ||
| CN-BIO-140 | Kína | x | x | x | x | — | x | ||
| CO-BIO-140 | Kolumbia | x | x | — | x | — | — | ||
| DO-BIO-140 | Dominikai Köztársaság | x | x | — | x | — | — | ||
| DZ-BIO-140 | Algéria | x | — | — | x | — | — | ||
| EC-BIO-140 | Ecuador | x | x | — | x | — | — | ||
| EG-BIO-140 | Egyiptom | x | x | — | x | — | — | ||
| ET-BIO-140 | Etiópia | x | x | — | x | — | — | ||
| GD-BIO-140 | Grenada | x | x | — | x | — | — | ||
| GH-BIO-140 | Ghána | x | — | — | x | — | — | ||
| GN-BIO-140 | Guinea | x | — | — | x | — | — | ||
| GM-BIO-140 | Gambia | x | — | — | x | — | — | ||
| GT-BIO-140 | Guatemala | x | x | — | x | — | — | ||
| HN-BIO-140 | Honduras | x | x | — | x | — | — | ||
| ID-BIO-140 | Indonézia | x | x | — | x | — | — | ||
| IR-BIO-140 | Irán | x | — | — | x | — | — | ||
| JM-BIO-140 | Jamaika | x | x | — | x | — | — | ||
| KE-BIO-140 | Kenya | x | x | — | x | — | — | ||
| KG-BIO-140 | Kirgizisztán | x | — | — | x | — | — | ||
| KH-BIO-140 | Kambodzsa | x | — | — | x | — | — | ||
| KZ-BIO-140 | Kazahsztán | x | x | — | x | — | x | ||
| LA-BIO-140 | Laosz | x | — | — | x | — | — | ||
| LC-BIO-140 | Saint Lucia | x | x | — | x | — | — | ||
| MA-BIO-140 | Marokkó | x | x | — | x | — | — | ||
| MD-BIO-140 | Moldova | x | x | — | x | — | x | ||
| ME-BIO-140 | Montenegró | x | — | — | x | — | — | ||
| MG-BIO-140 | Madagaszkár | x | — | — | x | — | — | ||
| MK-BIO-140 | Macedónia Volt Jugoszláv Köztársaság | x | x | — | x | — | x | ||
| ML-BIO-140 | Mali | x | — | — | x | — | — | ||
| MM-BIO-140 | Mianmar/Burma | x | x | — | x | — | — | ||
| MW-BIO-140 | Malawi | x | — | — | x | — | — | ||
| MX-BIO-140 | Mexikó | x | x | — | x | — | — | ||
| MY-BIO-140 | Malajzia | x | — | — | x | — | — | ||
| MZ-BIO-140 | Mozambik | x | — | — | x | — | — | ||
| NA-BIO-140 | Namíbia | x | — | — | x | — | — | ||
| NE-BIO-140 | Niger | x | — | — | x | — | — | ||
| NG-BIO-140 | Nigéria | x | x | — | x | — | — | ||
| NI-BIO-140 | Nicaragua | x | x | — | x | — | — | ||
| NP-BIO-140 | Nepál | x | — | — | x | — | — | ||
| PA-BIO-140 | Panama | x | — | — | x | — | — | ||
| PE-BIO-140 | Peru | x | x | — | x | — | — | ||
| PG-BIO-140 | Pápua Új-Guinea | x | x | — | x | — | — | ||
| PH-BIO-140 | Fülöp-szigetek | x | x | — | x | — | — | ||
| PK-BIO-140 | Pakisztán | x | — | — | x | — | — | ||
| PS-BIO-140 | Megszállt palesztin területek | x | — | — | x | — | — | ||
| PY-BIO-140 | Paraguay | x | x | — | x | — | — | ||
| RS-BIO-140 | Szerbia | x | x | — | x | — | x | ||
| RU-BIO-140 | Oroszország | x | x | — | x | — | — | ||
| RW-BIO-140 | Ruanda | x | x | — | x | — | — | ||
| SA-BIO-140 | Szaúd-Arábia | x | x | — | x | — | — | ||
| SD-BIO-140 | Szudán | x | x | — | x | — | — | ||
| SG-BIO-140 | Szingapúr | x | x | — | x | — | — | ||
| SL-BIO-140 | Sierra Leone | x | — | — | x | — | — | ||
| SN-BIO-140 | Szenegál | x | — | — | x | — | — | ||
| SO-BIO-140 | Szomália | x | — | — | x | — | — | ||
| SV-BIO-140 | Salvador | x | x | — | x | — | — | ||
| TD-BIO-140 | Csád | x | — | — | x | — | — | ||
| TG-BIO-140 | Togó | x | — | — | x | — | — | ||
| TH-BIO-140 | Thaiföld | x | x | — | x | — | — | ||
| TJ-BIO-140 | Tádzsikisztán | x | — | — | x | — | — | ||
| TL-BIO-140 | Kelet-Timor | x | — | — | x | — | — | ||
| TR-BIO-140 | Törökország | x | x | — | x | — | — | ||
| TW-BIO-140 | Tajvan | x | x | x | x | — | — | ||
| TZ-BIO-140 | Tanzánia | x | x | — | x | — | — | ||
| UA-BIO-140 | Ukrajna | x | x | — | x | — | — | ||
| UG-BIO-140 | Uganda | x | x | — | x | — | — | ||
| US-BIO-140 | Egyesült Államok | — | — | x | — | — | — | ||
| UY-BIO-140 | Uruguay | x | x | — | x | — | — | ||
| UZ-BIO-140 | Üzbegisztán | x | x | — | x | — | — | ||
| VE-BIO-140 | Venezuela | x | — | — | x | — | — | ||
| VN-BIO-140 | Vietnám | x | x | — | x | — | — | ||
| WS- BIO-140 | Szamoa | x | — | — | x | — | — | ||
| XK-BIO-140 | Koszovó (*1) | x | x | — | x | — | — | ||
| ZA-BIO-140 | Dél-Afrika | x | x | — | x | — | x | ||
| ZW-BIO-140 | Zimbabwe | x | — | — | x | — | — | ||
| (*1) Ez a megnevezés nem érinti a jogállással kapcsolatos álláspontokat, továbbá összhangban van az 1244 (1999) sz. ENSZ BT-határozattal és a Nemzetközi Bíróságnak a koszovói függetlenségi nyilatkozatról szóló véleményével. | |||||||||
4. Kivételek: az ökológiai termelésre való átállás időszakából származó termékek és a III. mellékletben szereplő termékek.
5. A jegyzékben való feltüntetés érvényességének vége: 2021. december 31.
Certificadora Biotropico S.A
1. Cím: Casa 5C, Callejon El Mirador, Via Principal, Paraje, Cali, 760032, Kolumbia
2. Internetcím: www.biotropico.com
3. Érintett kódszámok, harmadik országok és termékkategóriák:
| Kódszám | Harmadik ország | Termékkategória | |||||
| A | B | C | D | E | F | ||
| CO-BIO-186 | Kolumbia | x | – | – | x | – | – |
4. Kivételek: az ökológiai termelésre való átállás időszakából származó termékek.
5. A jegyzékben való feltüntetés érvényességének vége: 2021. december 31.
"Certificadora Mexicana de productos y procesos ecológicos S.C."
1. Cím: Calle 16 de septiembre No 204, Ejido Guadalupe Victoria, Oaxaca, Mexico, C.P. 68026
2. Internetcím: http://www.certimexsc.com
3. Érintett kódszámok, harmadik országok és termékkategóriák:
| Kódszám | Harmadik ország | Termékkategória | |||||
| A | B | C | D | E | F | ||
| CO-BIO-104 | Kolumbia | x | — | — | x | — | — |
| DO-BIO-104 | Dominikai Köztársaság | x | — | — | — | — | — |
| GT-BIO-104 | Guatemala | x | — | — | — | — | — |
| MX-BIO-104 | Mexikó | x | x | — | x | — | — |
| SV-BIO-104 | Salvador | x | — | — | — | — | — |
4. Kivételek: az ökológiai termelésre való átállás időszakából származó termékek és a bor.
5. A jegyzékben való feltüntetés érvényességének vége: 2021. december 31.
"Certisys"
1. Cím: Avenue de l'Escrime/Schermlaan 85, 1150 Bruxelles/Brüsszel, Belgium
2. Internetcím: http://www.certisys.eu
3. Érintett kódszámok, harmadik országok és termékkategóriák:
| Kódszám | Harmadik ország | Termékkategória | |||||
| A | B | C | D | E | F | ||
| BF-BIO-128 | Burkina Faso | x | — | — | x | — | — |
| BI-BIO-128 | Burundi | x | — | — | x | — | — |
| BJ-BIO-128 | Benin | x | — | — | x | — | — |
| CD-BIO-128 | Kongói Demokratikus Köztársaság | x | — | — | x | — | — |
| CI-BIO-128 | Elefántcsontpart | x | — | — | x | — | — |
| CM-BIO-128 | Kamerun | x | — | — | x | — | — |
| GH-BIO-128 | Ghána | x | — | — | x | — | — |
| ML-BIO-128 | Mali | x | — | — | x | — | — |
| RW-BIO-128 | Ruanda | x | — | — | x | — | — |
| SN-BIO-128 | Szenegál | x | — | — | x | — | — |
| TG-BIO-128 | Togó | x | — | — | x | — | — |
| TZ-BIO-128 | Tanzánia | x | — | — | x | — | — |
| UG-BIO-128 | Uganda | x | — | — | x | — | — |
4. Kivételek: az ökológiai termelésre való átállás időszakából származó termékek és a bor.
5. A jegyzékben való feltüntetés érvényességének vége: 2021. december 31.
"Company of Organic Agriculture in Palestine (*)"
1. Cím: Alsafa building- first floor Al-Masaeif, Ramallah, Palesztina (*)
2. Internetcím: http://coap.org.ps
3. Érintett kódszámok, harmadik országok és termékkategóriák:
| Kódszám | Harmadik ország | Termékkategória | |||||
| A | B | C | D | E | F | ||
| PS-BIO-163 | Megszállt palesztin területek | x | — | — | x | — | — |
| (*) Ez a megnevezés nem értelmezhető a palesztin állam elismeréseként és nem érinti az egyes tagállamok e kérdésre vonatkozó álláspontjait. | |||||||
4. Kivételek: az ökológiai termelésre való átállás időszakából származó termékek és a bor.
5. A jegyzékben való feltüntetés érvényességének vége: 2021. december 31.
"Control Union Certifications"
1. Cím: Meeuwenlaan 4-6, 8011 BZ Zwolle, Hollandia
2. Internetcím: http://certification.controlunion.com
3. Érintett kódszámok, harmadik országok és termékkategóriák:
| Kódszám | Harmadik ország | Termékkategória | |||||||
| A | B | C | D | E | F | ||||
| AF-BIO-149 | Afganisztán | x | x | x | x | x | x | ||
| AL-BIO-149 | Albánia | x | x | x | x | x | x | ||
| AM-BIO-149 | Örményország | x | x | x | x | x | x | ||
| AO-BIO-149 | Angola | x | x | x | x | x | x | ||
| AU-BIO-149 | Ausztrália | — | x | x | x | x | — | ||
| AZ-BIO-149 | Azerbajdzsán | x | x | x | x | x | x | ||
| BA-BIO-149 | Bosznia-Hercegovina | x | – | – | x | – | – | ||
| BD-BIO-149 | Banglades | — | x | x | x | x | x | ||
| BF-BIO-149 | Burkina Faso | x | x | x | x | x | x | ||
| BI-BIO-149 | Burundi | x | x | x | x | x | x | ||
| BJ-BIO-149 | Benin | x | — | — | x | — | x | ||
| BM-BIO-149 | Bermuda | x | x | x | x | x | x | ||
| BN-BIO-149 | Brunei | x | x | x | x | x | x | ||
| BO-BIO-149 | Bolívia | x | x | — | x | — | — | ||
| BR-BIO-149 | Brazília | x | x | x | x | x | x | ||
| BT-BIO-149 | Bhután | x | x | x | x | x | x | ||
| BW-BIO-149 | Botswana | x | — | — | x | — | x | ||
| BY-BIO-149 | Belarusz | x | x | x | x | x | x | ||
| CA-BIO-149 | Kanada | — | — | x | — | — | — | ||
| CD-BIO-149 | Kongói Demokratikus Köztársaság | x | x | x | x | x | x | ||
| CH-BIO-149 | Svájc | — | — | x | — | — | — | ||
| CI-BIO-149 | Elefántcsontpart | x | x | x | x | x | x | ||
| CK-BIO-149 | Cook-szigetek | x | x | x | x | x | x | ||
| CL-BIO-149 | Chile | x | x | x | x | – | x | ||
| CM-BIO-149 | Kamerun | x | — | — | x | — | x | ||
| CN-BIO-149 | Kína | x | x | x | x | x | x | ||
| CO-BIO-149 | Kolumbia | x | x | x | x | x | x | ||
| CR-BIO-149 | Costa Rica | — | x | x | — | x | — | ||
| CU-BIO-149 | Kuba | x | — | — | x | — | x | ||
| CV-BIO-149 | Zöld-foki-szigetek | x | — | — | x | — | — | ||
| CW-BIO-149 | Curaçao | x | — | — | x | — | x | ||
| DJ-BIO-149 | Dzsibuti | x | x | x | x | x | x | ||
| DO-BIO-149 | Dominikai Köztársaság | x | x | x | x | x | x | ||
| DZ-BIO-149 | Algéria | x | — | x | x | — | — | ||
| EC-BIO-149 | Ecuador | x | x | x | x | x | x | ||
| EG-BIO-149 | Egyiptom | x | x | x | x | x | x | ||
| ER-BIO-149 | Eritrea | x | x | x | x | x | x | ||
| ET-BIO-149 | Etiópia | x | x | x | x | x | x | ||
| FJ-BIO-149 | Fidzsi | x | x | x | x | x | x | ||
| GD-BIO-149 | Grenada | x | x | x | x | x | x | ||
| GE-BIO-149 | Grúzia | x | x | x | x | x | x | ||
| GH-BIO-149 | Ghána | x | x | x | x | x | x | ||
| GM-BIO-149 | Gambia | x | x | — | x | — | — | ||
| GN-BIO-149 | Guinea | x | x | x | x | x | x | ||
| GY-BIO-149 | Guyana | x | x | x | x | x | x | ||
| GT-BIO-149 | Guatemala | x | x | — | x | — | — | ||
| HK-BIO-149 | Hongkong | x | x | x | x | x | x | ||
| HN-BIO-149 | Honduras | x | x | x | x | x | x | ||
| HT-BIO-149 | Haiti | x | — | — | x | — | x | ||
| ID-BIO-149 | Indonézia | x | x | x | x | x | x | ||
| IL-BIO-149 | Izrael (1) | — | x | x | — | x | — | ||
| IN-BIO-149 | India | — | x | x | x | x | — | ||
| IQ-BIO-149 | Irak | x | x | x | x | — | x | ||
| IR-BIO-149 | Irán | x | x | x | x | x | x | ||
| JO-BIO-149 | Jordánia | x | x | x | x | x | x | ||
| JP-BIO-149 | Japán | — | x | x | — | x | — | ||
| KE-BIO-149 | Kenya | x | — | — | x | — | x | ||
| KG-BIO-149 | Kirgizisztán | x | x | x | x | x | x | ||
| KH-BIO-149 | Kambodzsa | x | x | x | x | x | x | ||
| KR-BIO-149 | Koreai Köztársaság | x | x | x | — | x | x | ||
| KW-BIO-149 | Kuvait | x | x | x | x | x | x | ||
| LA-BIO-149 | Laosz | x | x | x | x | x | x | ||
| LB-BIO-149 | Libanon | x | x | x | x | x | x | ||
| LK-BIO-149 | Srí Lanka | x | x | x | x | x | x | ||
| LR-BIO-149 | Libéria | x | x | x | x | x | x | ||
| LS-BIO-149 | Lesotho | x | — | — | x | — | x | ||
| MA-BIO-149 | Marokkó | x | — | — | x | — | x | ||
| MG-BIO-149 | Madagaszkár | x | x | x | x | x | x | ||
| MK-BIO-149 | Macedónia Volt Jugoszláv Köztársaság | x | x | x | x | x | x | ||
| ML-BIO-149 | Mali | x | x | x | x | x | x | ||
| MM-BIO-149 | Mianmar/Burma | x | x | x | x | x | x | ||
| MN-BIO-149 | Mongólia | x | — | — | x | — | x | ||
| MU-BIO-149 | Mauritius | x | x | x | x | x | x | ||
| MV-BIO-149 | Maldív-szigetek | x | — | x | x | — | — | ||
| MW-BIO-149 | Malawi | x | — | — | x | — | x | ||
| MX-BIO-149 | Mexikó | x | x | x | x | x | x | ||
| MY-BIO-149 | Malajzia | x | x | x | x | x | x | ||
| MZ-BIO-149 | Mozambik | x | x | x | x | x | x | ||
| NA-BIO-149 | Namíbia | x | — | — | x | — | x | ||
| NE-BIO-149 | Niger | x | x | x | x | x | x | ||
| NG-BIO-149 | Nigéria | x | x | x | x | x | x | ||
| NI-BIO-149 | Nicaragua | x | x | — | x | — | — | ||
| NP-BIO-149 | Nepál | x | x | x | x | x | x | ||
| NZ-BIO-149 | Új-Zéland | — | — | x | — | x | — | ||
| PA-BIO-149 | Panama | x | x | x | x | x | x | ||
| PE-BIO-149 | Peru | x | x | x | x | x | x | ||
| PF-BIO-149 | Francia Polinézia | x | x | x | x | x | x | ||
| PG-BIO-149 | Pápua Új-Guinea | x | x | x | x | x | x | ||
| PH-BIO-149 | Fülöp-szigetek | x | x | x | x | x | x | ||
| PK-BIO-149 | Pakisztán | x | x | x | x | x | x | ||
| PS-BIO-149 | Megszállt palesztin területek | x | x | x | x | x | x | ||
| PY-BIO-149 | Paraguay | x | x | x | x | x | x | ||
| QA-BIO-149 | Katar | x | – | – | x | – | – | ||
| RS-BIO-149 | Szerbia | x | x | x | x | x | x | ||
| RW-BIO-149 | Ruanda | x | x | x | x | x | x | ||
| SC-BIO-149 | Seychelle-szigetek | x | x | x | x | x | x | ||
| SD-BIO-149 | Szudán | x | x | — | x | — | — | ||
| SG-BIO-149 | Szingapúr | x | x | x | x | x | x | ||
| SL-BIO-149 | Sierra Leone | x | x | x | x | x | x | ||
| SN-BIO-149 | Szenegál | x | — | — | x | — | x | ||
| SO-BIO-149 | Szomália | x | x | x | x | x | x | ||
| SR-BIO-149 | Suriname | x | — | — | x | — | x | ||
| SS-BIO-149 | Dél-Szudán | x | x | x | x | x | x | ||
| ST-BIO-149 | São Tomé és Príncipe | x | x | x | x | x | x | ||
| SV-BIO-149 | Salvador | x | x | — | x | — | — | ||
| SY-BIO-149 | Szíria | x | x | x | x | x | x | ||
| SZ-BIO-149 | Szváziföld | x | — | — | x | — | x | ||
| TD-BIO-149 | Csád | x | x | x | x | x | x | ||
| TG-BIO-149 | Togó | x | — | — | x | — | x | ||
| TH-BIO-149 | Thaiföld | x | x | x | x | x | x | ||
| TJ-BIO-149 | Tádzsikisztán | x | x | x | x | x | x | ||
| TL-BIO-149 | Kelet-Timor | x | x | x | x | x | x | ||
| TM-BIO-149 | Türkmenisztán | x | x | x | x | x | x | ||
| TN-BIO-149 | Tunézia | — | x | — | — | — | — | ||
| TO-BIO-149 | Tonga | — | x | — | — | — | — | ||
| TV-BIO-149 | Tuvalu | — | — | — | — | — | x | ||
| TW-BIO-149 | Tajvan | x | — | — | x | — | x | ||
| TZ-BIO-149 | Tanzánia | x | x | x | x | x | x | ||
| UA-BIO-149 | Ukrajna | x | x | x | x | x | x | ||
| UG-BIO-149 | Uganda | x | x | x | x | x | x | ||
| US-BIO-149 | Amerikai Egyesült Államok | — | — | x | — | — | — | ||
| UY-BIO-149 | Uruguay | x | x | x | x | x | x | ||
| UZ-BIO-149 | Üzbegisztán | x | x | x | x | x | x | ||
| VE-BIO-149 | Venezuela | x | x | x | x | x | x | ||
| VN-BIO-149 | Vietnám | x | x | x | x | x | x | ||
| XK-BIO-149 | Koszovó (2) | x | x | x | x | x | x | ||
| ZA-BIO-149 | Dél-Afrika | x | x | x | x | x | x | ||
| ZM-BIO-149 | Zambia | x | x | x | x | x | x | ||
| ZW-BIO-149 | Zimbabwe | x | — | — | x | — | x | ||
| (1) Az Izrael által 1967 júniusa óta elfoglalt területekről származó termékek nem rendlkezhetnek ökológiai tanúsítással. (2) Ez a megnevezés nem érinti a jogállással kapcsolatos álláspontokat, továbbá összhangban van az 1244 (1999) ENSZ BT-határozattal és a Nemzetközi Bíróságnak a koszovói függetlenségi nyilatkozatról szóló véleményével. | |||||||||
4. Kivételek: az ökológiai termelésre való átállás időszakából származó termékek és a III. mellékletben szereplő termékek.
5. A jegyzékben való feltüntetés érvényességének vége: 2021. december 31.
"DQS Polska sp. z o.o."
1. Cím: ul. Domaniewska 45, 02-672 Varsó, Lengyelország
2. Honlap: www.dqs.pl
3. Érintett kódszámok, harmadik országok és termékkategóriák:
| kódszám | harmadik ország | termékkategória | |||||
| A | B | C | D | E | F | ||
| BA-BIO-181 | Bosznia-Hercegovina | x | x | — | x | — | — |
| BR-BIO-181 | Brazília | x | x | – | x | – | – |
| BY-BIO-181 | Belarusz | x | x | – | x | – | – |
| CN-BIO-181 | Kína | x | x | — | x | — | — |
| ID-BIO-181 | Indonézia | x | x | – | x | – | – |
| KZ-BIO-181 | Kazahsztán | x | x | – | x | – | – |
| LB-BIO-181 | Libanon | x | x | – | x | – | – |
| MG-BIO-181 | Madagaszkár | x | x | — | x | — | — |
| MX-BIO-181 | Mexikó | x | x | – | x | – | – |
| MY-BIO-181 | Malajzia | x | x | – | x | – | – |
| NG-BIO-181 | Nigéria | x | x | – | x | – | – |
| PH-BIO-181 | Fülöp-szigetek | x | x | – | x | – | – |
| PK-BIO-181 | Pakisztán | x | x | – | x | – | – |
| RS-BIO-181 | Szerbia | x | x | – | x | – | – |
| RU-BIO-181 | Oroszország | x | x | – | x | – | – |
| TR-BIO-181 | Törökország | x | x | – | x | – | – |
| TW-BIO-181 | Tajvan | x | x | – | x | – | – |
| UA-BIO-181 | Ukrajna | x | x | – | x | – | – |
| UZ-BIO-181 | Üzbegisztán | x | x | – | x | – | – |
| VN-BIO-181 | Vietnám | x | x | – | x | – | – |
| ZA-BIO-181 | Dél-Afrika | x | x | – | x | – | – |
4. Kivételek: az ökológiai termelésre való átállás időszakából származó termékek és a bor
5. A jegyzékben való feltüntetés érvényességének vége: 2021. december 31.
"Ecocert SA"
1. Cím: BP 47, 32600 L'Isle-Jourdain, Franciaország
2. Internetcím: http://www.ecocert.com
3. Érintett kódszámok, harmadik országok és termékkategóriák:
| Kódszám | Harmadik ország | Termékkategória | |||||
| A | B | C | D | E | F | ||
| AD-BIO-154 | Andorra | x | — | — | x | — | — |
| AE-BIO-154 | Egyesült Arab Emírségek | x | x | — | x | x | — |
| AF-BIO-154 | Afganisztán | x | x | — | x | — | — |
| AL-BIO-154 | Albánia | x | — | — | x | — | — |
| AM-BIO-154 | Örményország | x | x | — | x | — | — |
| AR-BIO-154 | Argentína | — | — | — | x | x | — |
| AZ-BIO-154 | Azerbajdzsán | x | — | — | x | — | — |
| BA-BIO-154 | Bosznia-Hercegovina | x | — | — | x | x | x |
| BD-BIO-154 | Banglades | x | — | x | x | x | — |
| BF-BIO-154 | Burkina Faso | x | x | — | x | x | x |
| BH-BIO-154 | Bahrein | — | — | — | x | — | — |
| BI-BIO-154 | Burundi | x | — | — | x | — | — |
| BJ-BIO-154 | Benin | x | x | — | x | — | — |
| BR-BIO-154 | Brazília | x | x | — | x | x | x |
| BS-BIO-154 | Bahama-szigetek | x | — | — | x | — | — |
| BW-BIO-154 | Botswana | x | — | — | x | — | — |
| BY-BIO-154 | Belarusz | x | — | — | x | — | — |
| BZ-BIO-154 | Belize | x | — | — | x | — | — |
| CD-BIO-154 | Kongói Demokratikus Köztársaság | x | — | — | x | — | — |
| CF-BIO-154 | Közép-afrikai Köztársaság | x | — | — | x | — | — |
| CG-BIO-154 | Kongó | x | — | — | x | — | — |
| CI-BIO-154 | Elefántcsontpart | x | x | — | x | — | — |
| CL-BIO-154 | Chile | x | x | – | x | x | x |
| CM-BIO-154 | Kamerun | x | x | — | x | — | — |
| CN-BIO-154 | Kína | x | x | — | x | x | x |
| CO-BIO-154 | Kolumbia | x | x | — | x | x | x |
| CU-BIO-154 | Kuba | x | x | — | x | x | — |
| CV-BIO-154 | Zöld-foki-szigetek | x | — | — | x | — | — |
| DM-BIO-154 | Dominika | x | — | — | — | — | — |
| DO-BIO-154 | Dominikai Köztársaság | x | — | — | x | — | — |
| DZ-BIO-154 | Algéria | x | — | — | x | — | — |
| EC-BIO-154 | Ecuador | x | x | — | x | x | — |
| EG-BIO-154 | Egyiptom | x | x | — | x | — | — |
| ET-BIO-154 | Etiópia | x | x | — | x | — | — |
| FJ-BIO-154 | Fidzsi | x | — | — | x | — | — |
| GE-BIO-154 | Grúzia | x | — | — | x | x | — |
| GH-BIO-154 | Ghána | x | — | — | x | — | — |
| GM-BIO-154 | Gambia | x | — | — | x | — | — |
| GN-BIO-154 | Guinea | x | — | — | x | — | — |
| GQ-BIO-154 | Egyenlítői-Guinea | x | — | — | x | — | — |
| GT-BIO-154 | Guatemala | x | — | — | x | — | — |
| GW-BIO-154 | Bissau-Guinea | x | — | — | x | — | — |
| GY-BIO-154 | Guyana | x | — | — | x | — | — |
| HK-BIO-154 | Hongkong | x | — | — | x | — | — |
| HN-BIO-154 | Honduras | x | — | — | x | — | — |
| HT-BIO-154 | Haiti | x | x | — | x | — | — |
| ID-BIO-154 | Indonézia | x | x | — | x | — | — |
| IN-BIO-154 | India | — | — | — | x | x | — |
| IR-BIO-154 | Irán | x | — | — | x | — | — |
| JO-BIO-154 | Jordánia | x | — | — | x | — | — |
| JP-BIO-154 | Japán | — | x | — | x | — | x |
| KE-BIO-154 | Kenya | x | x | — | x | x | x |
| KG-BIO-154 | Kirgizisztán | x | x | — | x | x | — |
| KH-BIO-154 | Kambodzsa | x | — | — | x | — | — |
| KM-BIO-154 | Comore-szigetek | x | — | — | x | — | — |
| KR-BIO-154 | Koreai Köztársaság | x | — | — | — | — | — |
| KW-BIO-154 | Kuvait | x | x | — | x | — | — |
| KZ-BIO-154 | Kazahsztán | x | — | — | x | x | — |
| LA-BIO-154 | Laosz | x | — | — | x | — | — |
| LB-BIO-154 | Libanon | x | — | — | x | — | — |
| LI-BIO-154 | Liechtenstein | x | — | — | — | — | — |
| LK-BIO-154 | Srí Lanka | x | — | — | x | x | — |
| LR-BIO-154 | Libéria | x | — | — | x | — | — |
| LS-BIO-154 | Lesotho | x | — | — | x | — | — |
| MA-BIO-154 | Marokkó | x | x | — | x | x | x |
| MC-BIO-154 | Monaco | x | x | — | x | x | — |
| MD-BIO-154 | Moldova | x | x | — | x | — | x |
| ME-BIO-154 | Montenegró | x | — | — | x | — | — |
| MG-BIO-154 | Madagaszkár | x | x | — | x | x | x |
| MK-BIO-154 | Macedónia Volt Jugoszláv Köztársaság | x | — | — | x | — | x |
| ML-BIO-154 | Mali | x | — | — | x | — | — |
| MM-BIO-154 | Mianmar/Burma | x | — | — | x | — | — |
| MN-BIO-154 | Mongólia | x | — | — | x | — | — |
| MR-BIO-154 | Mauritánia | x | — | — | x | — | — |
| MU-BIO-154 | Mauritius | x | — | — | x | — | — |
| MW-BIO-154 | Malawi | x | x | — | x | — | — |
| MX-BIO-154 | Mexikó | x | x | — | x | x | x |
| MY-BIO-154 | Malajzia | x | x | — | x | — | — |
| MZ-BIO-154 | Mozambik | x | x | — | x | x | — |
| NA-BIO-154 | Namíbia | x | x | — | x | x | — |
| NC-BIO-154 | Új-Kaledónia | x | — | — | x | — | — |
| NE-BIO-154 | Niger | x | — | — | x | — | — |
| NG-BIO-154 | Nigéria | x | — | — | x | — | — |
| NI-BIO-154 | Nicaragua | x | — | — | x | — | — |
| NP-BIO-154 | Nepál | x | — | — | x | — | — |
| OM-BIO-154 | Omán | x | — | — | x | — | — |
| PA-BIO-154 | Panama | x | — | — | x | — | — |
| PE-BIO-154 | Peru | x | x | — | x | x | x |
| PF-BIO-154 | Francia Polinézia | x | — | — | x | — | — |
| PH-BIO-154 | Fülöp-szigetek | x | x | — | x | x | x |
| PK-BIO-154 | Pakisztán | x | — | — | x | — | x |
| PS-BIO-154 | Megszállt palesztin területek | x | — | — | x | — | — |
| PY-BIO-154 | Paraguay | x | x | — | x | x | x |
| RS-BIO-154 | Szerbia | x | x | — | x | x | x |
| RU-BIO-154 | Oroszország | – | – | – | x | x | – |
| RW-BIO-154 | Ruanda | x | — | — | x | — | — |
| SA-BIO-154 | Szaúd-Arábia | x | — | — | x | x | x |
| SC-BIO-154 | Seychelle-szigetek | x | — | — | x | — | — |
| SD-BIO-154 | Szudán | x | — | — | x | — | — |
| SG-BIO-154 | Szingapúr | x | — | — | x | — | — |
| SL-BIO-154 | Sierra Leone | x | x | — | x | — | — |
| SN-BIO-154 | Szenegál | x | — | — | x | — | — |
| SO-BIO-154 | Szomália | x | — | — | x | — | — |
| SR-BIO-154 | Suriname | x | — | — | x | — | — |
| ST-BIO-154 | São Tomé és Príncipe | x | — | — | x | — | — |
| SV-BIO-154 | Salvador | x | — | — | x | — | — |
| SY-BIO-154 | Szíria | x | — | — | x | x | — |
| SZ-BIO-154 | Szváziföld | x | — | — | x | — | — |
| TD-BIO-154 | Csád | x | — | — | x | — | — |
| TG-BIO-154 | Togó | x | — | — | x | x | — |
| TH-BIO-154 | Thaiföld | x | x | — | x | x | x |
| TJ-BIO-154 | Tádzsikisztán | x | — | — | x | — | — |
| TL-BIO-154 | Kelet-Timor | x | — | — | x | — | — |
| TM-BIO-154 | Türkmenisztán | x | — | — | x | x | — |
| TN-BIO-154 | Tunézia | — | x | — | x | — | — |
| TR-BIO-154 | Törökország | x | x | — | x | x | x |
| TW-BIO-154 | Tajvan | x | — | — | x | — | — |
| TZ-BIO-154 | Tanzánia | x | x | — | x | — | — |
| UA-BIO-154 | Ukrajna | x | x | — | x | x | — |
| UG-BIO-154 | Uganda | x | x | — | x | x | — |
| UY-BIO-154 | Uruguay | x | x | — | x | x | x |
| UZ-BIO-154 | Üzbegisztán | x | — | — | x | x | — |
| VE-BIO-154 | Venezuela | x | — | — | x | — | — |
| VN-BIO-154 | Vietnám | x | x | — | x | — | — |
| VU-BIO-154 | Vanuatu | x | — | — | x | — | x |
| WS-BIO-154 | Szamoa | x | — | — | x | — | — |
| XK-BIO-154 | Koszovó | — | — | — | x | — | — |
| ZA-BIO-154 | Dél-Afrika | x | x | — | x | x | x |
| ZM-BIO-154 | Zambia | x | x | — | x | x | — |
| ZW-BIO-154 | Zimbabwe | x | x | — | x | x | x |
4. Kivételek: az ökológiai termelésre való átállás időszakából származó termékek és a III. mellékletben szereplő termékek.
5. A jegyzékben való feltüntetés érvényességének vége: 2021. december 31.
"Ecoglobe"
1. Cím: 80 Aram Street, 0002 Yerevan, Örményország
2. Internetcím: http://www.ecoglobe.com
3. Érintett kódszámok, harmadik országok és termékkategóriák:
| Kódszám | Harmadik ország | Termékkategória | |||||||
| A | B | C | D | E | F | ||||
| AM-BIO-112 | Örményország | x | x | — | x | — | — | ||
| BY-BIO-112 | Belarusz | x | x | — | x | — | — | ||
| IR-BIO-112 | Irán | x | x | — | x | — | — | ||
| KG-BIO-112 | Kirgizisztán | x | x | — | x | — | — | ||
| KZ-BIO-112 | Kazahsztán | x | x | — | x | — | — | ||
| RU-BIO-112 | Oroszország | x | x | — | x | — | — | ||
| TJ-BIO-112 | Tádzsikisztán | x | x | — | x | — | — | ||
| TM-BIO-112 | Türkmenisztán | x | x | — | x | — | — | ||
| UA-BIO-112 | Ukrajna | x | x | — | x | — | — | ||
| UZ-BIO-112 | Üzbegisztán | x | x | — | x | — | — | ||
4. Kivételek: az ökológiai termelésre való átállás időszakából származó termékek.
5. A jegyzékben való feltüntetés érvényességének vége: 2021. december 31.
"Ecogruppo Italia"
1. Cím: Via Pietro Mascagni 79, 95129 Catania, Olaszország
2. Internetcím: http://www.ecogruppoitalia.it
3. Érintett kódszámok, harmadik országok és termékkategóriák:
| Kódszám | Harmadik ország | Termékkategória | |||||
| A | B | C | D | E | F | ||
| AM-BIO-187 | Örményország | x | x | – | – | – | – |
| AZ-BIO-187 | Azerbajdzsán | x | – | – | – | – | – |
| BA-BIO-187 | Bosznia-Hercegovina | x | x | – | – | – | – |
| KZ-BIO-187 | Kazahsztán | x | – | – | – | – | – |
| ME-BIO-187 | Montenegró | x | x | – | x | – | – |
| MK-BIO-187 | Észak-Macedónia | x | – | – | x | – | – |
| RS-BIO-187 | Szerbia | x | x | – | x | – | – |
| TR-BIO-187 | Törökország | x | x | – | x | x | – |
4. Kivételek: az ökológiai termelésre való átállás időszakából származó termékek.
5. A jegyzékben való feltüntetés érvényességének vége: 2021. december 31.
"Ecovivendi d.o.o. Belgrád"
1. Cím: Voje Veljkovica no.5, Belgrade 11000
2. Internetcím: www.ecovivendi.rs
3. Érintett kódszámok, harmadik országok és termékkategóriák:
| kódszám | harmadik ország | termékkategória | |||||
| A | B | C | D | E | F | ||
| RS-BIO-183 | Szerbia | x | — | — | x | — | — |
4. Kivételek: az ökológiai termelésre való átállás időszakából származó termékek és a bor
5. A jegyzékben való feltüntetés érvényességének vége: 2021. december 31.
"Ekoagros"
1. Cím: K. Donelaičio g. 33, 44240 Kaunas, Litvánia
2. Internetcím: http://www.ekoagros.lt
3. Érintett kódszámok, harmadik országok és termékkategóriák:
| Kódszám | Harmadik ország | Termékkategória | |||||||
| A | B | C | D | E | F | ||||
| BY-BIO-170 | Belarusz | x | x | — | x | — | x | ||
| KZ-BIO-170 | Kazahsztán | x | x | — | x | — | x | ||
| RU-BIO-170 | Oroszország | x | x | — | x | — | x | ||
| TJ-BIO-170 | Tádzsikisztán | x | x | — | x | — | x | ||
4. Kivételek: az ökológiai termelésre való átállás időszakából származó termékek és a bor.
5. A jegyzékben való feltüntetés érvényességének vége: 2021. december 31.
"ETKO Ekolojik Tarim Kontrol Org Ltd Sti"
1. Cím: 160 Nr 13 Daire 3. Izmir 35100, Törökország
2. Internetcím: www.etko.com.tr
3. Érintett kódszámok, harmadik országok és termékkategóriák:
| Kódszám | Harmadik ország | Termékkategória | |||||
| A | B | C | D | E | F | ||
| TR-BIO-109 | Törökország | x | – | – | x | – | – |
4. Kivételek: az ökológiai termelésre való átállás időszakából származó termékek.
5. A jegyzékben való feltüntetés érvényességének vége: 2021. december 31.
"FairCert Certification Services Pvt Ltd"
1. Cím: C 122, GAURIDHAM COLONY, 451001-KHARGONE, India
2. Honlap: www.faircert.com
3. Érintett kódszámok, harmadik országok és termékkategóriák:
| kódszám | harmadik ország | termékkategória | |||||
| A | B | C | D | E | F | ||
| BT-BIO-180 | Bhután | x | x | — | x | x | — |
| IN-BIO-180 | India | — | x | — | x | x | — |
| NP-BIO-180 | Nepál | x | x | — | x | x | — |
4. Kivételek: az ökológiai termelésre való átállás időszakából származó termékek és a bor
5. A jegyzékben való feltüntetés érvényességének vége: 2021. december 31.
"Florida Certified Organic Growers and Consumers, Inc. (FOG), DBA as Quality Certification Services (QCS)"
1. cím: 5700 SW 34th st, suite 349, Gainesville, FL 32608, USA
2. Internetcím: http://www.qcsinfo.org
3. Érintett kódszámok, harmadik országok és termékkategóriák:
| Kódszám | Harmadik ország | Termékkategória | |||||||
| A | B | C | D | E | F | ||||
| AE-BIO- 144 | Egyesült Arab Emírségek | x | – | – | x | x | – | ||
| BO-BIO-144 | Bolívia | x | — | — | x | — | — | ||
| BS-BIO-144 | Bahama-szigetek | x | — | — | x | — | x | ||
| CL-BIO-144 | Chile | x | — | x | x | x | — | ||
| CO-BIO-144 | Kolumbia | x | — | — | x | — | — | ||
| CN-BIO-144 | Kína | x | — | x | x | — | x | ||
| CR-BIO-144 | Costa Rica | x | – | – | x | x | – | ||
| DO-BIO-144 | Dominikai Köztársaság | x | — | x | x | — | x | ||
| EC-BIO-144 | Ecuador | x | — | x | x | x | x | ||
| GT-BIO-144 | Guatemala | x | — | — | x | — | — | ||
| HN-BIO-144 | Honduras | x | — | x | x | x | — | ||
| ID-BIO-144 | Indonézia | x | — | x | x | — | — | ||
| JM-BIO-144 | Jamaica | x | — | — | x | — | — | ||
| LA-BIO-144 | Laosz | x | — | — | x | — | — | ||
| MX-BIO-144 | Mexikó | x | — | — | x | — | x | ||
| MY-BIO-144 | Malajzia | x | — | — | x | — | x | ||
| NI-BIO-144 | Nicaragua | x | — | x | x | — | x | ||
| PE-BIO-144 | Peru | x | — | — | x | — | x | ||
| PH-BIO-144 | Fülöp-szigetek | x | — | x | x | — | x | ||
| SV-BIO-144 | Salvador | x | — | x | x | — | x | ||
| TR-BIO-144 | Törökország | x | – | – | x | x | x | ||
| TW-BIO-144 | Tajvan | x | — | x | x | — | x | ||
| US-BIO-144 | Egyesült Államok | — | — | x | x | — | — | ||
| VN-BIO-144 | Vietnam | x | — | — | x | — | — | ||
| ZA-BIO-144 | Dél-Afrika | x | — | — | x | — | x | ||
4. Kivételek: az ökológiai termelésre való átállás időszakából származó termékek, a bor és a III. mellékletben szereplő termékek.
5. A jegyzékben való feltüntetés érvényességének vége: 2021. december 31.
"IBD Certificaçőes Ltda."
1. Cím: Rua Amando de Barros 2275, Centro, CEP: 18.602.150, Botucatu SP, Brazília
2. Internetcím: http://www.ibd.com.br
3. Érintett kódszámok, harmadik országok és termékkategóriák:
| Kódszám | Harmadik ország | Termékkategória | |||||||
| A | B | C | D | E | F | ||||
| BO-BIO-122 | Bolívia | x | — | — | x | — | — | ||
| BR-BIO-122 | Brazília | x | x | — | x | x | — | ||
| CN-BIO-122 | Kína | x | — | — | x | x | — | ||
| CO-BIO-122 | Kolumbia | x | — | — | x | — | — | ||
| EC-BIO-122 | Ecuador | x | — | — | x | — | — | ||
| MN-BIO-122 | Mongólia | x | — | — | — | x | — | ||
| MX-BIO-122 | Mexikó | — | x | — | x | — | — | ||
| PE-BIO-122 | Peru | x | — | — | x | — | — | ||
| PY-BIO-122 | Paraguay | x | — | — | x | — | — | ||
| RU-BIO-122 | Oroszország | x | — | — | x | x | — | ||
4. Kivételek: az ökológiai termelésre való átállás időszakából származó termékek és a bor.
5. A jegyzékben való feltüntetés érvényességének vége: 2021. december 31.
"IMOcert Latinoamérica Ltda."
1. Cím: Calle Pasoskanki 2134, Cochabamba, Bolívia
2. Internetcím: http://www.imocert.bio
3. Érintett kódszámok, harmadik országok és termékkategóriák:
| Kódszám | Harmadik ország | Termékkategória | |||||||
| A | B | C | D | E | F | ||||
| AR-BIO-123 | Argentína | — | — | — | x | — | — | ||
| BO-BIO-123 | Bolívia | x | x | — | x | — | — | ||
| BR-BIO-123 | Brazília | x | x | — | x | — | — | ||
| BZ-BIO-123 | Belize | x | x | — | x | — | — | ||
| CL-BIO-123 | Chile | x | x | — | x | — | — | ||
| CO-BIO-123 | Kolumbia | x | x | — | x | — | — | ||
| CR-BIO-123 | Costa Rica | — | x | — | x | — | — | ||
| CU-BIO-123 | Kuba | x | x | — | x | — | — | ||
| DO-BIO-123 | Dominikai Köztársaság | x | x | — | x | — | — | ||
| EC-BIO-123 | Ecuador | x | x | — | x | — | — | ||
| GT-BIO-123 | Guatemala | x | x | — | x | — | — | ||
| GY-BIO-123 | Guyana | x | x | — | x | — | — | ||
| HN-BIO-123 | Honduras | x | x | — | x | — | — | ||
| HT-BIO-123 | Haiti | x | x | — | x | — | — | ||
| MX-BIO-123 | Mexikó | x | x | — | x | — | — | ||
| NI-BIO-123 | Nicaragua | x | x | — | x | — | — | ||
| PA-BIO-123 | Panama | x | x | — | x | — | — | ||
| PE-BIO-123 | Peru | x | x | — | x | — | — | ||
| PY-BIO-123 | Paraguay | x | x | — | x | — | — | ||
| SR-BIO-123 | Suriname | x | — | — | x | — | — | ||
| SV-BIO-123 | Salvador | x | x | — | x | — | — | ||
| TT-BIO-123 | Trinidad és Tobago | x | — | — | x | — | — | ||
| UY-BIO-123 | Uruguay | x | x | — | x | — | — | ||
| VE-BIO-123 | Venezuela | x | x | — | x | — | — | ||
4. Kivételek: az ökológiai termelésre való átállás időszakából származó termékek és a III. mellékletben szereplő termékek.
5. A jegyzékben való feltüntetés érvényességének vége: 2021. december 31.
"IMO Control Private Limited"
1. Cím: No 3627, 1st Floor, 7th Cross, 13th "G" Main, H.A.L. 2nd Stage, Bangalore 560008, India
2. Internetcím: www.imocontrol.in
3. Érintett kódszámok, harmadik országok és termékkategóriák:
| Kódszám | Harmadik ország | Termékkategória | |||||
| A | B | C | D | E | F | ||
| AF-BIO-147 | Afganisztán | x | — | — | x | — | — |
| BD-BIO-147 | Banglades | x | — | — | x | — | — |
| BT-BIO-147 | Bhután | x | — | — | x | — | — |
| ID-BIO-147 | Indonézia | x | — | — | x | — | — |
| IN-BIO-147 | India | — | — | — | x | — | — |
| IR-BIO-147 | Irán | x | — | — | x | — | — |
| LA-BIO-147 | Laosz | x | — | — | x | — | — |
| LK-BIO-147 | Srí Lanka | x | — | — | x | — | — |
| MV-BIO-147 | Maldív-szigetek | x | — | — | x | — | — |
| MY-BIO-147 | Malajzia | x | — | — | x | — | — |
| NP-BIO-147 | Nepál | x | — | — | x | — | — |
| PG-BIO-147 | Pápua Új-Guinea | x | — | — | x | — | — |
| PH-BIO-147 | Fülöp-szigetek | x | — | — | x | — | — |
| PK-BIO-147 | Pakisztán | x | — | — | x | — | — |
| TH-BIO-147 | Thaiföld | x | — | — | x | — | — |
| VN-BIO-147 | Vietnám | x | — | — | x | — | — |
4. Kivételek: az ökológiai termelésre való átállás időszakából származó termékek és a bor.
5. A jegyzékben való feltüntetés érvényességének vége: 2021. december 31.
"Indocert"
1. Cím: Thottumugham post, Aluva, Ernakulam, Kerala, India
2. Internetcím: http://www.indocert.org
3. Érintett kódszámok, harmadik országok és termékkategóriák:
| Kódszám | Harmadik ország | Termékkategória | |||||
| A | B | C | D | E | F | ||
| IN-BIO-148 | India | — | — | — | x | x | — |
| KH-BIO-148 | Kambodzsa | x | — | — | — | — | — |
| LK-BIO-148 | Srí Lanka | x | — | — | — | — | — |
4. Kivételek: az ökológiai termelésre való átállás időszakából származó termékek és a bor.
5. A jegyzékben való feltüntetés érvényességének vége: 2021. december 31.
"Istituto Certificazione Etica e Ambientale"
1. Cím: Via Giovanni Brugnoli, 15, 40122 Bologna, Olaszország
2. Internetcím: http://www.icea.info
3. Érintett kódszámok, harmadik országok és termékkategóriák:
| Kódszám | Harmadik ország | Termékkategória | |||||
| A | B | C | D | E | F | ||
| AE-BIO-115 | Egyesült Arab Emírségek | x | x | — | x | — | — |
| AL-BIO-115 | Albánia | x | — | — | x | — | — |
| AM-BIO-115 | Örményország | — | x | — | x | — | — |
| CI-BIO-115 | Elefántcsontpart | x | — | — | x | — | — |
| EC-BIO-115 | Ecuador | x | — | — | x | — | — |
| ET-BIO-115 | Etiópia | x | — | — | — | — | — |
| IR-BIO-115 | Irán | x | — | — | x | — | — |
| JP-BIO-115 | Japán | — | — | — | x | — | — |
| KZ-BIO-115 | Kazahsztán | x | — | — | — | — | — |
| LB-BIO-115 | Libanon | — | — | — | x | — | — |
| LK-BIO-115 | Srí Lanka | x | — | — | x | — | — |
| MD-BIO-115 | Moldova | x | — | — | x | — | — |
| MG-BIO-115 | Madagaszkár | x | — | — | x | — | — |
| MX-BIO-115 | Mexikó | x | x | — | x | — | — |
| MY-BIO-115 | Malajzia | — | — | — | x | — | — |
| RU-BIO-115 | Oroszország | x | x | — | x | — | — |
| SN-BIO-115 | Szenegál | x | — | — | x | — | — |
| SY-BIO-115 | Szíria | x | — | — | x | — | — |
| TH-BIO-115 | Thaiföld | — | — | — | x | — | — |
| TR-BIO-115 | Törökország | x | — | — | x | — | — |
| UA-BIO-115 | Ukrajna | x | — | — | x | — | — |
| UY-BIO-115 | Uruguay | x | — | — | x | — | — |
| UZ-BIO-115 | Üzbegisztán | x | — | — | x | — | — |
| VN-BIO-115 | Vietnám | — | — | — | x | — | — |
4. Kivételek: az ökológiai termelésre való átállás időszakából származó termékek, a bor és a III. mellékletben szereplő termékek.
5. A jegyzékben való feltüntetés érvényességének vége: 2021. december 31.
"Japan Organic and Natural Foods Association"
1. Cím: Takegashi Bldg. 3rd Fl., 3-5-3 Kyobashi, Chuo-ku, Tokyo, Japán
2. Internetcím: http://jona-japan.org
3. Érintett kódszámok, harmadik országok és termékkategóriák:
| Kódszám | Harmadik ország | Termékkategória | |||||
| A | B | C | D | E | F | ||
| CN-BIO-145 | Kína | x | — | — | x | — | — |
| JP-BIO-145 | Japán | — | — | x | x | — | — |
| TW-BIO-145 | Tajvan | x | — | — | x | — | — |
4. Kivételek: az ökológiai termelésre való átállás időszakából származó termékek, a bor és a III. mellékletben szereplő termékek.
5. A jegyzékben való feltüntetés érvényességének vége: 2021. december 31.
"Kiwa BCS Öko-Garantie GmbH"
1. Cím: Marientorgraben 3-5, 90402 Nürnberg, Németország
2. Internetcím: www.kiwabcs-oeko.com
3. Érintett kódszámok, harmadik országok és termékkategóriák:
| Kódszám | Harmadik ország | Termékkategória | |||||
| A | B | C | D | E | F | ||
| AE-BIO-141 | Egyesült Arab Emírségek | x | x | — | x | x | — |
| AL-BIO-141 | Albánia | x | — | — | x | — | — |
| AM-BIO-141 | Örményország | x | x | — | x | — | — |
| AO-BIO-141 | Angola | x | — | — | x | — | — |
| AZ-BIO-141 | Azerbajdzsán | x | — | — | x | — | — |
| BD-BIO-141 | Banglades | x | — | x | x | x | x |
| BJ-BIO-141 | Benin | x | — | — | x | — | — |
| BO-BIO-141 | Bolívia | x | — | — | x | — | — |
| BR-BIO-141 | Brazília | x | x | — | x | x | — |
| BT-BIO-141 | Bhután | x | — | — | x | — | x |
| BW-BIO-141 | Botswana | x | — | — | x | — | — |
| BY-BIO-141 | Belarusz | x | — | — | x | x | — |
| CI-BIO-141 | Elefántcsontpart | x | — | — | x | x | — |
| CL-BIO-141 | Chile | x | x | x | x | — | x |
| CN-BIO-141 | Kína | x | x | x | x | x | x |
| CO-BIO-141 | Kolumbia | x | x | — | x | — | x |
| CR-BIO-141 | Costa Rica | — | — | x | — | — | — |
| CU-BIO-141 | Kuba | x | x | — | x | — | — |
| DO-BIO-141 | Dominikai Köztársaság | x | — | — | x | — | x |
| DZ-BIO-141 | Algéria | x | — | — | x | — | — |
| EC-BIO-141 | Ecuador | x | x | x | x | x | x |
| EG-BIO-141 | Egyiptom | x | — | — | x | — | — |
| ET-BIO-141 | Etiópia | x | x | — | x | x | — |
| FJ-BIO-141 | Fidzsi | x | — | — | x | — | x |
| GE-BIO-141 | Grúzia | x | x | — | x | x | — |
| GH-BIO-141 | Ghána | x | — | — | x | — | — |
| GM-BIO-141 | Gambia | x | — | — | x | — | — |
| GT-BIO-141 | Guatemala | x | x | x | x | x | x |
| GW-BIO-141 | Bissau-Guinea | x | — | — | x | — | x |
| HK-BIO-141 | Hongkong | x | — | x | x | — | — |
| HN-BIO-141 | Honduras | x | — | — | x | x | x |
| HT-BIO-141 | Haiti | x | — | — | x | — | — |
| ID-BIO-141 | Indonézia | x | — | x | x | — | — |
| IN-BIO-141 | India | — | — | — | x | — | — |
| IR-BIO-141 | Irán | x | x | — | x | — | — |
| JP-BIO-141 | Japán | — | — | — | x | — | — |
| KE-BIO-141 | Kenya | x | x | — | x | x | — |
| KG-BIO-141 | Kirgizisztán | x | x | — | x | x | — |
| KH-BIO-141 | Kambodzsa | x | — | — | x | — | — |
| KR-BIO-141 | Koreai Köztársaság | x | — | x | — | x | — |
| KZ-BIO-141 | Kazahsztán | x | — | — | x | x | — |
| LA-BIO-141 | Laosz | x | x | — | x | — | — |
| LK-BIO-141 | Srí Lanka | x | — | x | x | — | — |
| LR-BIO-141 | Libéria | x | — | — | x | — | — |
| LS-BIO-141 | Lesotho | x | — | — | x | — | — |
| MA-BIO-141 | Marokkó | x | — | — | x | — | — |
| MD-BIO-141 | Moldova | x | — | — | x | — | — |
| ME-BIO-141 | Montenegró | x | — | — | x | — | — |
| MK-BIO-141 | Macedónia Volt Jugoszláv Köztársaság | x | — | — | x | — | — |
| MZ-BIO-141 | Mianmar/Burma | x | x | x | x | — | — |
| MD-BIO-141 | Mongólia | x | x | — | x | x | — |
| MW-BIO-141 | Malawi | x | — | — | x | — | — |
| MX-BIO-141 | Mexikó | x | x | — | x | x | — |
| MY-BIO-141 | Malajzia | x | — | — | x | — | — |
| MA-BIO-141 | Mozambik | x | — | — | x | — | — |
| NA-BIO-141 | Namíbia | x | — | — | x | — | — |
| NI-BIO-141 | Nicaragua | x | x | — | x | x | — |
| NP-BIO-141 | Nepál | x | — | — | x | — | x |
| OM-BIO-141 | Omán | x | — | — | x | x | — |
| PA-BIO-141 | Panama | x | — | — | x | — | — |
| PE-BIO-141 | Peru | x | x | — | x | x | x |
| PF-BIO-141 | Francia Polinézia | x | — | — | x | — | — |
| PG-BIO-141 | Pápua Új-Guinea | x | — | — | x | — | x |
| PH-BIO-141 | Fülöp-szigetek | x | — | x | x | — | — |
| PK-BIO-141 | Pakisztán | x | — | — | x | — | — |
| PY-BIO-141 | Paraguay | x | x | — | x | x | x |
| RS-BIO-141 | Szerbia | x | — | — | x | — | x |
| RU-BIO-141 | Oroszország | x | x | — | x | x | — |
| SA-BIO-141 | Szaúd-Arábia | x | x | — | x | x | — |
| SC-BIO-141 | Seychelle-szigetek | x | — | — | x | — | — |
| SD-BIO-141 | Szudán | x | — | — | x | — | — |
| SG-BIO-141 | Szingapúr | x | — | — | x | — | x |
| SN-BIO-141 | Szenegál | x | — | — | x | — | — |
| SV-BIO-141 | Salvador | x | x | — | x | x | — |
| SZ-BIO-141 | Szváziföld | x | — | — | x | — | — |
| TD-BIO-141 | Csád | x | — | — | x | — | — |
| TH-BIO-141 | Thaiföld | x | x | x | x | x | — |
| TJ-BIO-141 | Tádzsikisztán | x | x | — | x | — | — |
| TM-BIO-141 | Türkmenisztán | x | — | — | x | — | — |
| TR-BIO-141 | Törökország | x | x | — | x | x | x |
| TW-BIO-141 | Tajvan | x | — | x | x | — | — |
| TZ-BIO-141 | Tanzánia | x | — | — | x | — | — |
| UA-BIO-141 | Ukrajna | x | — | — | x | x | — |
| UG-BIO-141 | Uganda | x | — | — | x | — | — |
| US-BIO-141 | Egyesült Államok | — | — | x | — | — | — |
| UY-BIO-141 | Uruguay | x | x | — | x | x | — |
| UZ-BIO-141 | Üzbegisztán | x | x | — | x | — | — |
| VE-BIO-141 | Venezuela | x | — | — | x | — | — |
| VN-BIO-141 | Vietnám | x | x | x | x | — | — |
| XK-BIO-141 | Koszovó (1) | x | — | — | x | x | — |
| ZA-BIO-141 | Dél-Afrika | x | x | — | x | x | x |
| ZM-BIO-141 | Zambia | x | x | — | x | — | — |
| (1) Ez a megnevezés nem érinti a jogállással kapcsolatos álláspontokat, továbbá összhangban van az 1244 (1999) ENSZ BT-határozattal és a Nemzetközi Bíróságnak a koszovói függetlenségi nyilatkozatról szóló véleményével. | |||||||
4. Kivételek: az ökológiai termelésre való átállás időszakából származó termékek és a III. mellékletben szereplő termékek.
5. A jegyzékben való feltüntetés érvényességének vége: 2021. december 31.
"Kiwa Sativa"
1. Cím: Rua Robalo Gouveia, 1, 1A, 1900-392, Lisbon, Portugália
2. Internetcím: http://www.sativa.pt
3. Érintett kódszámok, harmadik országok és termékkategóriák:
| Kódszám | Harmadik ország | Termékkategória | |||||
| A | B | C | D | E | F | ||
| GW-BIO-188 | Bissau-Guinea | x | – | – | x | – | – |
4. Kivételek: az ökológiai termelésre való átállás időszakából származó termékek.
5. A jegyzékben való feltüntetés érvényességének vége: 2021. december 31.
"LACON GmbH"
1. Cím: Moltkestrasse 4, 77654 Offenburg, Németország
2. Internetcím: http://www.lacon-institut.com
3. Érintett kódszámok, harmadik országok és termékkategóriák:
| Kódszám | Harmadik ország | Termékkategória | |||||
| A | B | C | D | E | F | ||
| AE-BIO-134 | Egyesült Arab Emírségek | x | — | — | x | — | — |
| AZ-BIO-134 | Azerbajdzsán | x | — | — | x | — | — |
| BA-BIO-134 | Bosznia-Hercegovina | x | x | — | x | — | — |
| BD-BIO-134 | Banglades | x | — | — | x | — | — |
| BF-BIO-134 | Burkina Faso | x | x | — | x | — | — |
| BR-BIO-134 | Brazília | x | x | — | x | — | — |
| BT-BIO-134 | Bhután | x | — | — | x | — | — |
| CL-BIO-134 | Chile | x | x | — | x | — | — |
| CU-BIO-134 | Kuba | x | x | x | — | — | |
| DO-BIO-134 | Dominikai Köztársaság | x | — | — | x | — | — |
| ET-BIO-134 | Etiópia | x | x | — | x | — | — |
| GH-BIO-134 | Ghána | x | — | — | x | — | — |
| ID-BIO-134 | Indonézia | x | — | — | x | — | — |
| IN-BIO-134 | India | — | x | — | x | — | — |
| KE-BIO-134 | Kenya | x | — | — | x | — | — |
| KZ-BIO-134 | Kazahsztán | x | — | — | — | — | — |
| LK-BIO-134 | Srí Lanka | x | — | — | x | — | — |
| MA-BIO-134 | Marokkó | x | x | — | x | — | — |
| MG-BIO-134 | Madagaszkár | x | x | — | x | — | — |
| MK-BIO-134 | Macedónia Volt Jugoszláv Köztársaság | x | x | — | x | — | — |
| ML-BIO-134 | Mali | x | — | — | x | — | — |
| MU-BIO-134 | Mauritius | x | — | — | x | — | — |
| MX-BIO-134 | Mexikó | x | x | — | — | — | — |
| NA-BIO-134 | Namíbia | x | — | — | x | — | — |
| NG-BIO-134 | Nigéria | x | — | — | x | — | — |
| NP-BIO-134 | Nepál | x | — | — | x | — | — |
| RS-BIO-134 | Szerbia | x | x | — | x | — | — |
| RU-BIO-134 | Oroszország | x | — | — | — | — | — |
| SN-BIO-134 | Szenegál | x | x | — | x | — | — |
| SZ-BIO-134 | Szváziföld | x | — | — | x | — | — |
| TG-BIO-134 | Togó | x | — | — | x | — | — |
| TR-BIO-134 | Törökország | x | — | — | x | — | — |
| TZ-BIO-134 | Tanzánia | x | x | — | x | — | — |
| UA-BIO-134 | Ukrajna | x | — | — | — | — | — |
| UG-BIO-134 | Uganda | x | — | — | x | — | — |
| ZA-BIO-134 | Dél-Afrika | x | — | — | x | — | — |
| ZW-BIO-134 | Zimbabwe | x | — | — | x | — | — |
4. Kivételek: az ökológiai termelésre való átállás időszakából származó termékek és a III. mellékletben szereplő termékek.
5. A jegyzékben való feltüntetés érvényességének vége: 2021. december 31.
"Letis S.A."
1. Cím: Urquiza 1285 planta alta, Rosario, Santa Fe, Argentina
2. Internetcím: http://www.letis.org
3. Érintett kódszámok, harmadik országok és termékkategóriák:
| Kódszám | Harmadik ország | Termékkategória | |||||||
| A | B | C | D | E | F | ||||
| AE-BIO-135 | Egyesült Arab Emírségek | x | — | — | x | — | — | ||
| AF-BIO-135 | Afganisztán | x | — | x | — | — | |||
| AR-BIO-135 | Argentína | — | — | x | x | — | — | ||
| AZ-BIO-135 | Azerbajdzsán | x | — | — | x | — | — | ||
| BO-BIO-135 | Bolívia | x | — | — | x | — | — | ||
| BR-BIO-135 | Brazília | x | — | x | x | — | — | ||
| BY-BIO-135 | Belarusz | x | — | — | x | — | — | ||
| BZ-BIO-135 | Belize | x | — | x | x | — | — | ||
| CI-BIO-135 | Elefántcsontpart | x | — | — | x | — | — | ||
| CO-BIO-135 | Kolumbia | x | — | x | x | — | — | ||
| CR-BIO-135 | Costa Rica | — | — | x | — | — | — | ||
| DO-BIO-135 | Dominikai Köztársaság | x | — | x | x | — | — | ||
| EC-BIO-135 | Ecuador | x | — | — | x | — | — | ||
| EG-BIO-135 | Egyiptom | x | — | — | x | — | — | ||
| ET-BIO-135 | Etiópia | x | — | x | — | — | |||
| GT-BIO-135 | Guatemala | x | — | x | x | — | — | ||
| HN-BIO-135 | Honduras | x | — | x | x | — | — | ||
| IR-BIO-135 | Irán | x | — | x | — | — | |||
| KG-BIO-135 | Kirgizisztán | x | — | — | x | — | — | ||
| KY-BIO-135 | Kajmán-szigetek | x | — | — | x | — | — | ||
| KZ-BIO-135 | Kazahsztán | x | — | x | — | — | |||
| MA-BIO-135 | Marokkó | x | — | — | x | — | — | ||
| MD-BIO-135 | Moldova | x | — | x | — | — | |||
| MX-BIO-135 | Mexikó | x | — | — | — | — | — | ||
| PA-BIO-135 | Panama | x | — | x | x | — | — | ||
| PE-BIO-135 | Peru | x | — | x | — | — | — | ||
| PK-BIO-135 | Pakisztán | x | — | x | — | — | |||
| PY-BIO-135 | Paraguay | x | — | — | x | — | — | ||
| RU-BIO-135 | Oroszország | x | — | x | — | — | |||
| SV-BIO-135 | Salvador | x | — | x | x | — | — | ||
| TJ-BIO-135 | Tádzsikisztán | x | — | x | — | — | |||
| TM-BIO-135 | Türkmenisztán | x | — | — | x | — | — | ||
| TR-BIO-135 | Törökország | x | — | x | — | — | |||
| UA-BIO-135 | Ukrajna | x | — | x | — | — | |||
| UY-BIO-135 | Uruguay | x | — | — | — | — | — | ||
| VN-BIO-135 | Üzbegisztán | x | — | — | — | — | — | ||
4. Kivételek: az ökológiai termelésre való átállás időszakából származó termékek és a III. mellékletben szereplő termékek.
5. A jegyzékben való feltüntetés érvényességének vége: 2021. december 31.
"Mayacert"
1. Cím: 18 calle 7-25 zona 11, Colonia Mariscal, 01011 Guatemala City, Guatemala
2. Internetcím: http://www.mayacert.com
3. Érintett kódszámok, harmadik országok és termékkategóriák:
| Kódszám | Harmadik ország | Termékkategória | |||||||
| A | B | C | D | E | F | ||||
| BZ-BIO-169 | Belize | x | — | — | x | — | — | ||
| CO-BIO-169 | Kolumbia | x | — | — | x | — | — | ||
| DO-BIO-169 | Dominikai Köztársaság | x | — | — | x | — | — | ||
| GT-BIO-169 | Guatemala | x | x | — | x | — | — | ||
| HN-BIO-169 | Honduras | x | x | — | x | — | — | ||
| LK-BIO-169 | Srí Lanka | x | — | — | x | — | — | ||
| MX-BIO-169 | Mexikó | x | x | — | x | — | — | ||
| NI-BIO-169 | Nicaragua | x | x | — | x | — | — | ||
| PA-BIO-169 | Panama | x | — | — | x | — | — | ||
| PE-BIO-169 | Peru | x | — | — | x | — | — | ||
| SV-BIO-169 | Salvador | x | — | — | x | — | — | ||
4. Kivételek: az ökológiai termelésre való átállás időszakából származó termékek és a bor.
5. A jegyzékben való feltüntetés érvényességének vége: 2021. december 31.
"NASAA Certified Organic Pty Ltd"
1. Cím: Unit 7/3 Mount Barker Road, Stirling SA 5152, Ausztrália
2. Internetcím: www.nasaacertifiedorganic.com.au
3. Érintett kódszámok, harmadik országok és termékkategóriák:
| Kódszám | Harmadik ország | Termékkategória | |||||
| A | B | C | D | E | F | ||
| AU-BIO-119 | Ausztrália | – | x | – | x | – | – |
| CN-BIO-119 | Kína | x | x | – | x | – | – |
| ID-BIO-119 | Indonézia | x | x | – | x | – | – |
| LK-BIO-119 | Srí Lanka | x | x | – | x | – | – |
| MY-BIO-119 | Malajzia | x | x | – | x | – | – |
| NP-BIO-119 | Nepál | x | x | – | x | – | – |
| PG-BIO-119 | Pápua Új-Guinea | x | x | – | x | – | – |
| SB-BIO-119 | Salamon-szigetek | x | x | – | x | – | – |
| SG-BIO-119 | Szingapúr | x | x | – | x | – | – |
| TL-BIO-119 | Kelet-Timor | x | x | – | x | – | – |
| TO-BIO-119 | Tonga | x | x | – | x | – | – |
| WS-BIO-119 | Szamoa | x | x | – | x | – | – |
4. Kivételek: az ökológiai termelésre való átállás időszakából származó termékek és a III. mellékletben szereplő termékek.
5. A jegyzékben való feltüntetés érvényességének vége: 2021. december 31.
"OneCert International PVT Ltd."
1. Cím: H-08, Mansarovar Industrial Area, Mansarovar, Jaipur-302020, Rajasthan, India
2. Internetcím: http://www.onecert.com
3. Érintett kódszámok, harmadik országok és termékkategóriák:
| Kódszám | Harmadik ország | Termékkategória | |||||||
| A | B | C | D | E | F | ||||
| AE-BIO-152 | Egyesült Arab Emírségek | x | — | — | x | — | — | ||
| BD-BIO-152 | Banglades | x | — | — | x | — | — | ||
| BJ-BIO-152 | Benin | x | — | — | x | — | — | ||
| CN-BIO-152 | Kína | x | — | — | x | — | — | ||
| EG-BIO-152 | Egyiptom | x | — | — | x | — | — | ||
| ET-BIO-152 | Etiópia | x | — | — | x | x | — | ||
| GH-BIO-152 | Ghána | x | — | — | x | — | — | ||
| ID-BIO-152 | Indonézia | x | — | — | x | — | — | ||
| IN-BIO-152 | India | — | — | — | x | x | — | ||
| JO-BIO-152 | Jordánia | x | — | — | x | — | — | ||
| KH-BIO-152 | Kambodzsa | x | — | — | x | — | — | ||
| LA-BIO-152 | Laosz | x | — | — | x | — | — | ||
| LK-BIO-152 | Srí Lanka | x | — | — | x | — | — | ||
| MM-BIO-152 | Mianmar/Burma | x | — | — | x | — | — | ||
| MY-BIO-152 | Malajzia | x | — | — | x | — | — | ||
| MZ-BIO-152 | Mozambik | x | — | — | x | x | — | ||
| NG-BIO-152 | Nigéria | x | — | — | x | — | — | ||
| NP-BIO-152 | Nepál | x | — | — | x | — | — | ||
| OM-BIO-152 | Omán | x | — | — | x | — | — | ||
| PH-BIO-152 | Fülöp-szigetek | x | — | — | x | — | — | ||
| QA-BIO-152 | Katar | x | — | — | x | — | — | ||
| RU-BIO-152 | Oroszország | x | — | — | x | — | — | ||
| SA-BIO-152 | Szaúd-Arábia | x | — | — | x | — | — | ||
| SG-BIO-152 | Szingapúr | — | — | — | x | — | — | ||
| TG-BIO-152 | Togó | x | — | — | x | — | — | ||
| TH-BIO-152 | Thaiföld | x | — | — | x | — | — | ||
| TZ-BIO-152 | Tanzánia | x | — | — | x | x | — | ||
| UG-BIO-152 | Uganda | x | — | — | x | x | — | ||
| VN-BIO-152 | Vietnám | x | — | — | x | — | — | ||
| WS-BIO-152 | Szamoa | x | — | — | x | — | — | ||
4. Kivételek: az ökológiai termelésre való átállás időszakából származó termékek és a bor.
5. A jegyzékben való feltüntetés érvényességének vége: 2021. december 31.
"Oregon Tilth"
1. Cím: 2525 SE 3rd Street, Corvallis, OR 97333, USA
2. Internetcím: http://tilth.org
3. Érintett kódszámok, harmadik országok és termékkategóriák:
| Kódszám | Harmadik ország | Termékkategória | |||||
| A | B | C | D | E | F | ||
| BO-BIO-116 | Bolívia | x | — | — | — | — | — |
| CL-BIO-116 | Chile | x | — | — | x | — | — |
| HN-BIO-116 | Honduras | — | — | — | x | — | — |
| MX-BIO-116 | Mexikó | x | — | — | x | x | — |
| PA-BIO-116 | Panama | x | — | — | x | — | — |
4. Kivételek: az ökológiai termelésre való átállás időszakából származó termékek és a III. mellékletben szereplő termékek.
5. A jegyzékben való feltüntetés érvényességének vége: 2021. december 31.
"Organic Agriculture Certification Thailand (ACT)"
1. Cím: 102 Moo 2, Soi Ngamwongwan 23, Ngamwongwan Road, Muang District, Nonthaburi 11000, Thaiföld
2. Internetcím: http://www.actorganic-cert.or.th
3. Érintett kódszámok, harmadik országok és termékkategóriák:
| Kódszám | Harmadik ország | Termékkategória | |||||
| A | B | C | D | E | F | ||
| ID-BIO-121 | Indonézia | x | — | — | x | — | — |
| LA-BIO-121 | Laosz | x | — | — | x | — | — |
| MY-BIO-121 | Malajzia | x | – | – | x | – | – |
| NP-BIO-121 | Nepál | x | – | – | x | – | – |
| TH-BIO-121 | Thaiföld | x | — | — | x | — | — |
| VN-BIO-121 | Vietnám | x | — | — | x | — | — |
4. Kivételek: az ökológiai termelésre való átállás időszakából származó termékek és a bor.
5. A jegyzékben való feltüntetés érvényességének vége: 2021. december 31.
"Organic Control System"
1. Cím: Trg cara Jovana Nenada 15, 24000 Subotica, Szerbia
2. Internetcím: www.organica.rs
3. Érintett kódszámok, harmadik országok és termékkategóriák:
| Kódszám | Harmadik ország | Termékkategória | |||||||
| A | B | C | D | E | F | ||||
| BA-BIO-162 | Bosznia-Hercegovina | x | — | — | x | — | — | ||
| ME-BIO-162 | Montenegró | x | — | — | x | — | — | ||
| MK-BIO-162 | Macedónia Volt Jugoszláv Köztársaság | x | — | — | x | — | — | ||
| RS-BIO-162 | Szerbia | x | — | — | x | — | — | ||
4. Kivételek: az ökológiai termelésre való átállás időszakából származó termékek és a bor.
5. A jegyzékben való feltüntetés érvényességének vége: 2021. december 31.
"Organic crop improvement association"
1. Cím: 1340 North Cotner Boulevard, Lincoln, NE 68505-1838, USA
2. Internetcím: http://www.ocia.org
3. Érintett kódszámok, harmadik országok és termékkategóriák:
| Kódszám | Harmadik ország | Termékkategória | |||||
| A | B | C | D | E | F | ||
| GT-BIO-120 | Guatemala | x | x | — | x | — | — |
| JP-BIO-120 | Japán | — | x | — | x | — | — |
| MX-BIO-120 | Mexikó | x | x | — | x | — | — |
| NI-BIO-120 | Nicaragua | x | x | — | x | — | — |
| PE-BIO-120 | Peru | x | x | — | x | — | — |
| SV-BIO-120 | Salvador | x | x | — | x | — | — |
4. Kivételek: az ökológiai termelésre való átállás időszakából származó termékek, a bor és a III. mellékletben szereplő termékek.
5. A jegyzékben való feltüntetés érvényességének vége: 2021. december 31.
"Organic Farmers & Growers C. I. C"
1. Cím: Old Estate Yard, Shrewsbury Road, Albrighton, Shrewsbury, Shropshire, SY4 3AG, Egyesült Királyság
2. Internetcím: http://ofgorganic.org/
3. Érintett kódszámok, harmadik országok és termékkategóriák:
| Kódszám | Harmadik ország | Termékkategória | |||||
| A | B | C | D | E | F | ||
| GB-BIO-189 | Egyesült Királyság (*1) | x | x | – | x | x | x |
| (*1) A Nagy-Britannia és Észak-Írország Egyesült Királyságának az Európai Unióból és az Európai Atomenergia-közösségből történő kilépéséről szóló megállapodással és különösen az Írországról/Észak-Írországról szóló jegyzőkönyv 5. cikkének az említett jegyzőkönyv 2. mellékletével összefüggésben értelmezett (4) bekezdésével összhangban e melléklet alkalmazásában az Egyesült Királyságra való hivatkozásokat úgy kell értelmezni, hogy azok nem foglalják magukban Észak-Írországot. | |||||||
4. Kivételek: az ökológiai termelésre való átállás időszakából származó termékek, méhészet.
5. A jegyzékben való feltüntetés érvényességének vége: 2021. december 31.
"Organic Farmers & Growers (Scotland) Ltd"
1. Cím: Old Estate Yard, Shrewsbury Road, Albrighton, Shrewsbury, Shropshire, SY4 3AG, Egyesült Királyság
2. Internetcím: https://ofgorganic.org/about/scotland
3. Érintett kódszámok, harmadik országok és termékkategóriák:
| Kódszám | Harmadik ország | Termékkategória | |||||
| A | B | C | D | E | F | ||
| GB-BIO-190 | Egyesült Királyság (*1) | x | x | – | x | x | x |
| (*1) A Nagy-Britannia és Észak-Írország Egyesült Királyságának az Európai Unióból és az Európai Atomenergia-közösségből történő kilépéséről szóló megállapodással és különösen az Írországról/Észak-Írországról szóló jegyzőkönyv 5. cikkének az említett jegyzőkönyv 2. mellékletével összefüggésben értelmezett (4) bekezdésével összhangban e melléklet alkalmazásában az Egyesült Királyságra való hivatkozásokat úgy kell értelmezni, hogy azok nem foglalják magukban Észak-Írországot. | |||||||
4. Kivételek: az ökológiai termelésre való átállás időszakából származó termékek, méhészet.
5. A jegyzékben való feltüntetés érvényességének vége: 2021. december 31.
"Organic Food Development and Certification Center of China (OFDC)"
1. Cím: 8# Jiangwangmiao Street, Nanjing, 210042, Kína
2. Internetcím: http://www.ofdc.org.cn
3. Érintett kódszámok, harmadik országok és termékkategóriák:
| Kódszám | Harmadik ország | Termékkategória | |||||
| A | B | C | D | E | F | ||
| CN-BIO-191 | Kína | x | – | – | x | – | – |
4. Kivételek: az ökológiai termelésre való átállás időszakából származó termékek.
5. A jegyzékben való feltüntetés érvényességének vége: 2021. december 31.
"Organic Food Federation"
1. Cím: 31 Turbine Way, Swaffham, PE37 7XD, Egyesült Királyság
2. Internetcím: http://www.orgfoodfed.com
3. Érintett kódszámok, harmadik országok és termékkategóriák:
| Kódszám | Harmadik ország | Termékkategória | |||||
| A | B | C | D | E | F | ||
| GB-BIO-192 | Egyesült Királyság (*1) | x | x | – | x | x | x |
| (*1) A Nagy-Britannia és Észak-Írország Egyesült Királyságának az Európai Unióból és az Európai Atomenergia-közösségből történő kilépéséről szóló megállapodással és különösen az Írországról/Észak-Írországról szóló jegyzőkönyv 5. cikkének az említett jegyzőkönyv 2. mellékletével összefüggésben értelmezett (4) bekezdésével összhangban e melléklet alkalmazásában az Egyesült Királyságra való hivatkozásokat úgy kell értelmezni, hogy azok nem foglalják magukban Észak-Írországot. | |||||||
4. Kivételek: az ökológiai termelésre való átállás időszakából származó termékek.
5. A jegyzékben való feltüntetés érvényességének vége: 2021. december 31.
"Organic Standard"
1. Cím: 38-B Velyka Vasylkivska St, office 20, Kyiv city, 01004 Ukrajna
2. Internetcím: http://www.organicstandard.com.ua
3. Érintett kódszámok, harmadik országok és termékkategóriák:
| Kódszám | Harmadik ország | Termékkategória | |||||
| A | B | C | D | E | F | ||
| AM-BIO-108 | Örményország | x | — | — | x | — | — |
| AZ-BIO-108 | Azerbajdzsán | x | — | — | x | — | — |
| BY-BIO-108 | Belarusz | x | x | x | x | x | x |
| GE-BIO-108 | Grúzia | x | x | — | x | — | — |
| KG-BIO-108 | Kirgizisztán | x | x | — | x | — | — |
| KZ-BIO-108 | Kazahsztán | x | x | — | x | x | — |
| MD-BIO-108 | Moldova | x | x | — | x | — | — |
| RU-BIO-108 | Oroszország | x | x | — | x | x | — |
| TJ-BIO-108 | Tádzsikisztán | x | — | — | x | — | — |
| UA-BIO-108 | Ukrajna | x | x | x | x | x | x |
| UZ-BIO-108 | Üzbegisztán | x | — | — | x | — | — |
4. Kivételek: az ökológiai termelésre való átállás időszakából származó termékek.
5. A jegyzékben való feltüntetés érvényességének vége: 2021. december 31.
"Organización Internacional Agropecuaria"
1. Cím: Av. Santa Fe 830, B1641ABN, Acassuso, Buenos Aires, Argentína
2. Internetcím: http://www.oia.com.ar
3. Érintett kódszámok, harmadik országok és termékkategóriák:
| Kódszám | Harmadik ország | Termékkategória | |||||
| A | B | C | D | E | F | ||
| AR-BIO-110 | Argentína | — | — | x | x | x | — |
| BO-BIO-110 | Bolívia | x | — | — | x | — | — |
| BR-BIO-110 | Brazília | x | — | x | x | — | — |
| CL-BIO-110 | Chile | x | — | x | x | x | — |
| CO-BIO-110 | Kolumbia | x | — | — | x | — | — |
| EC-BIO-110 | Ecuador | x | — | — | x | — | — |
| MX-BIO-110 | Mexikó | x | — | — | x | — | — |
| PA-BIO-110 | Panama | x | — | — | x | — | — |
| PE-BIO-110 | Peru | x | — | — | x | — | — |
| PY-BIO-110 | Paraguay | x | — | — | x | — | — |
| RU-BIO-110 | Oroszország | x | – | – | x | x | – |
| TR-BIO-110 | Törökország | x | – | – | x | – | – |
| UA-BIO-110 | Ukrajna | x | – | – | x | – | – |
| UY-BIO-110 | Uruguay | x | x | x | x | x | — |
4. Kivételek: az ökológiai termelésre való átállás időszakából származó termékek és a III. mellékletben szereplő termékek.
5. A jegyzékben való feltüntetés érvényességének vége: 2021. december 31.
"Organska Kontrola"
1. cím: Kranjčevićeva 15, 71 000 Sarajevo, Bosznia-Hercegovina
2. Internetcím: http://www.organskakontrola.ba
3. Érintett kódszámok, harmadik országok és termékkategóriák:
| Kódszám | Harmadik ország | Termékkategória | |||||
| A | B | C | D | E | F | ||
| BA-BIO-101 | Bosznia-Hercegovina | x | x | — | x | — | — |
| ME-BIO-101 | Montenegró | x | x | — | x | — | — |
| RS-BIO-101 | Szerbia | x | x | — | x | — | — |
| XK-BIO-101 | Koszovó (*1) | x | x | — | x | — | — |
| (*1) Ez a megnevezés nem érinti a jogállással kapcsolatos álláspontokat, továbbá összhangban van az 1244 (1999) sz. ENSZ BT-határozattal és a Nemzetközi Bíróságnak a koszovói függetlenségi nyilatkozatról szóló véleményével. | |||||||
4. Kivételek: az ökológiai termelésre való átállás időszakából származó termékek és a bor.
5. A jegyzékben való feltüntetés érvényességének vége: 2021. december 31.
"ORSER"
1. Cím: Prof. Dr. Ahmet Taner Kislali Mah.2842 Sok.No: 4, 06810 Cayyolu, Cankaya-Ankara, TÖRÖKORSZÁG
2. Internetcím: http://orser.com.tr
3. Érintett kódszámok, harmadik országok és termékkategóriák:
| Kódszám | Harmadik ország | Termékkategória | |||||||
| A | B | C | D | E | F | ||||
| AZ-BIO-166 | Azerbajdzsán | x | x | — | x | x | — | ||
| BA-BIO-166 | Bosznia-Hercegovina | x | x | — | x | x | — | ||
| GE-BIO-166 | Grúzia | x | x | — | x | x | — | ||
| IR-BIO-166 | Irán | x | x | — | x | x | — | ||
| KG-BIO-166 | Kirgizisztán | x | x | — | x | x | — | ||
| KZ-BIO-166 | Kazahsztán | x | x | — | x | x | — | ||
| TR-BIO-166 | Törökország | x | x | — | x | x | — | ||
4. Kivételek: az ökológiai termelésre való átállás időszakából származó termékek.
5. A jegyzékben való feltüntetés érvényességének vége: 2021. december 31.
"Q-check"
1. Cím: 9-17 Erithrou Stavrou str., Larissa, Görögország
2. Internetcím: http://www.qcheck-cert.gr
3. Érintett kódszámok, harmadik országok és termékkategóriák:
| Kódszám | Harmadik ország | Termékkategória | |||||
| A | B | C | D | E | F | ||
| AL-BIO-179 | Albánia | x | — | — | x | — | — |
| AE-BIO-179 | Egyesült Arab Emírségek | x | — | — | x | — | — |
| EG-BIO-179 | Egyiptom | x | — | — | x | — | — |
| JO-BIO-179 | Jordánia | x | — | — | x | — | — |
| XK-BIO-179 | Koszovó (*1) | x | – | – | x | – | – |
| LB-BIO-179 | Libanon | x | — | — | x | — | — |
| PE-BIO-179 | Peru | x | — | — | x | — | — |
| TR-BIO-179 | Törökország | x | — | — | x | — | — |
| SA-BIO-179 | Szaúd-Arábia | x | — | — | x | — | — |
| RS-BIO-179 | Szerbia | x | — | — | x | — | — |
| (*1) Ez a megnevezés nem érinti a jogállással kapcsolatos álláspontokat, továbbá összhangban van az 1244 (1999) sz. ENSZ BT-határozattal és a Nemzetközi Bíróságnak a koszovói függetlenségi nyilatkozatról szóló véleményével. | |||||||
4. Kivételek: az ökológiai termelésre való átállás időszakából származó termékek.
5. A jegyzékben való feltüntetés érvényességének vége: 2021. december 31.
"Quality Assurance International"
1. cím: 4370 La Jolla Village Drive, Suite 300, San Diego, CA 92122, USA
2. Internetcím: http://www.qai-inc.com
3. Érintett kódszámok, harmadik országok és termékkategóriák:
| Kódszám | Harmadik ország | Termékkategória | |||||
| A | B | C | D | E | F | ||
| MX-BIO-113 | Mexikó | x | — | — | x | — | — |
4. Kivételek: az ökológiai termelésre való átállás időszakából származó termékek és a bor.
5. A jegyzékben való feltüntetés érvényességének vége: 2021. december 31.
"Quality Welsh Food Certification Ltd"
1. Cím: North Road, Aberystwyth, SY23 2HE, Egyesült Királyság
2. Internetcím: www.qwfc.co.uk
3. Érintett kódszámok, harmadik országok és termékkategóriák:
| Kódszám | Harmadik ország | Termékkategória | |||||
| A | B | C | D | E | F | ||
| GB-BIO-193 | Egyesült Királyság (*1) | – | – | – | x | – | – |
| (*1) A Nagy-Britannia és Észak-Írország Egyesült Királyságának az Európai Unióból és az Európai Atomenergia-közösségből történő kilépéséről szóló megállapodással és különösen az Írországról/Észak-Írországról szóló jegyzőkönyv 5. cikkének az említett jegyzőkönyv 2. mellékletével összefüggésben értelmezett (4) bekezdésével összhangban e melléklet alkalmazásában az Egyesült Királyságra való hivatkozásokat úgy kell értelmezni, hogy azok nem foglalják magukban Észak-Írországot. | |||||||
4. Kivételek: az ökológiai termelésre való átállás időszakából származó termékek.
5. A jegyzékben való feltüntetés érvényességének vége: 2021. december 31.
"Servicio de Certificación CAAE S.L.U."
1. cím: Avenida Diego Martínez Barrio n° 10 3rd floor module 12, 41013 Sevilla, Spain
2. Internetcím: http://www.caae.es
3. Érintett kódszámok, harmadik országok és termékkategóriák:
| Kódszám | Harmadik ország | Termékkategória | |||||
| A | B | C | D | E | F | ||
| BO-BIO-178 | Bolívia | x | — | — | x | — | — |
| CO-BIO-178 | Kolumbia | x | — | — | x | — | — |
| DO-BIO-178 | Dominikai Köztársaság | x | — | — | x | — | — |
| EC-BIO-178 | Ecuador | x | — | — | x | — | — |
| GT-BIO-178 | Guatemala | x | — | — | x | — | — |
| HN-BIO-178 | Honduras | x | — | — | x | — | — |
| MA-BIO-178 | Marokkó | x | — | — | x | — | — |
| MX-BIO-178 | Mexikó | x | — | — | x | — | — |
| NI-BIO-178 | Nicaragua | x | — | — | x | — | — |
| PA-BIO-178 | Panama | x | — | — | x | — | — |
| PE-BIO-178 | Peru | x | — | — | x | — | — |
| TR-BIO-178 | Törökország | x | — | — | x | — | — |
| SV-BIO-178 | El Salvador | x | — | — | x | — | — |
4. Kivételek: az ökológiai termelésre való átállás időszakából származó termékek.
5. A jegyzékben való feltüntetés érvényességének vége: 2021. december 31.
"Soil Association Certification Limited"
1. Cím: Spear House 51 Victoria Street, Bristol BS1 6AD, United Kingdom
2. Internetcím: http://www.soilassociation.org/certification
3. Érintett kódszámok, harmadik országok és termékkategóriák:
| Kódszám | Harmadik ország | Termékkategória | |||||
| A | B | C | D | E | F | ||
| BS-BIO-142 | Bahama-szigetek | x | — | — | x | — | — |
| BZ-BIO-142 | Belize | x | — | — | x | — | — |
| CM-BIO-142 | Kamerun | – | – | – | x | – | – |
| CO-BIO-142 | Kolumbia | — | — | — | x | — | — |
| DZ-BIO-142 | Algéria | x | — | — | x | — | — |
| GB-BIO-142 | Egyesült Királyság (*1) | x | x | x | x | x | x |
| GH-BIO-142 | Ghána | x | — | — | x | — | — |
| HK-BIO-142 | Hongkong | x | — | — | x | — | — |
| KE-BIO-142 | Kenya | x | — | — | x | — | — |
| MW-BIO-142 | Malawi | x | — | — | x | — | — |
| SG-BIO-142 | Szingapúr | x | — | — | x | — | — |
| TH-BIO-142 | Thaiföld | x | — | — | x | — | — |
| UG-BIO-142 | Uganda | x | — | — | x | — | — |
| VE-BIO-142 | Venezuela | x | — | — | — | — | — |
| VN-BIO-142 | Vietnám | x | — | — | x | — | — |
| WS-BIO-142 | Szamoa | x | — | — | x | — | — |
| ZA-BIO-142 | Dél-Afrika | x | – | – | x | – | – |
| (*1) A Nagy-Britannia és Észak-Írország Egyesült Királyságának az Európai Unióból és az Európai Atomenergia-közösségből történő kilépéséről szóló megállapodással és különösen az Írországról/Észak-Írországról szóló jegyzőkönyv 5. cikkének az említett jegyzőkönyv 2. mellékletével összefüggésben értelmezett (4) bekezdésével összhangban e melléklet alkalmazásában az Egyesült Királyságra való hivatkozásokat úgy kell értelmezni, hogy azok nem foglalják magukban Észak-Írországot. | |||||||
4. Kivételek: az ökológiai termelésre való átállás időszakából származó termékek.
5. A jegyzékben való feltüntetés érvényességének vége: 2021. december 31.
"Southern Cross Certified Australia Pty Ltd"
1. Cím: 8/27 Mayneview Street, Milton, Queensland, 4064, Ausztrália
2. Internetcím: https://www.sxcertified.com.au
3. Érintett kódszámok, harmadik országok és termékkategóriák:
| Kódszám | Harmadik ország | Termékkategória | |||||
| A | B | C | D | E | F | ||
| AU-BIO-194 | Ausztrália (1) | – | x | – | x | x | – |
| FJ-BIO-194 | Fidzsi | x | x | – | x | x | – |
| MY-BIO-194 | Malajzia | x | x | – | x | x | – |
| SG-BIO-194 | Szingapúr | x | x | – | x | x | – |
| TO-BIO-194 | Tonga | x | x | – | x | x | – |
| VU-BIO-194 | Vanuatu | x | x | – | x | x | – |
| WS-BIO-194 | Szamoa | x | x | – | x | x | – |
| (1) Ezen ellenőrző szerv esetében a D termékkategória elismerése Ausztrália tekintetében csak a borra és az élesztőre vonatkozik. | |||||||
4. Kivételek: az ökológiai termelésre való átállás időszakából származó termékek és a III. mellékletben szereplő termékek.
5. A jegyzékben való feltüntetés érvényességének vége: 2021. december 31.
"SRS Certification GmbH"
1. Cím: Friedländer Weg 20, Göttingen, 37085, Németország
2. Internetcím: http://www.srs-certification.com
3. Érintett kódszámok, harmadik országok és termékkategóriák:
| Kódszám | Harmadik ország | Termékkategória | |||||
| A | B | C | D | E | F | ||
| CN-BIO-195 | Kína | x | – | – | x | x | – |
| TW-BIO-195 | Tajvan | x | – | – | x | x | – |
4. Kivételek: az ökológiai termelésre való átállás időszakából származó termékek.
5. A jegyzékben való feltüntetés érvényességének vége: 2021. december 31.
"Suolo e Salute srl"
1. Cím: Via Paolo Borsellino 12, 61032 Fano (PU), Olaszország
2. Internetcím: http://www.suoloesalute.it
3. Érintett kódszámok, harmadik országok és termékkategóriák:
| Kódszám | Harmadik ország | Termékkategória | |||||||
| A | B | C | D | E | F | ||||
| DO-BIO-150 | Dominikai Köztársaság | x | — | — | x | — | — | ||
| EG-BIO-150 | Egyiptom | x | — | — | x | — | — | ||
| SN-BIO-150 | Szenegál | x | — | — | — | — | — | ||
| UA-BIO-150 | Ukrajna | x | — | — | — | — | — | ||
4. Kivételek: az ökológiai termelésre való átállás időszakából származó termékek és a bor.
5. A jegyzékben való feltüntetés érvényességének vége: 2021. december 31.
"Tse-Xin Organic Certification Corporation"
1. Cím: 7F., No.75, Sec.4, Nanjing E. R., Songshan Dist., Taipei City 105, Tajvan (R.O.C.)
2. Internetcím: http://www.tw-toc.com/en
3. Érintett kódszámok, harmadik országok és termékkategóriák:
| Kódszám | Harmadik ország | Termékkategória | |||||||
| A | B | C | D | E | F | ||||
| HK-BIO-174 | Hongkong | — | — | — | x | — | — | ||
| ID-BIO-174 | Indonézia | x | — | — | x | — | — | ||
| KH-BIO-174 | Kambodzsa | x | — | — | x | — | — | ||
| KR-BIO-174 | Koreai Köztársaság | x | — | — | — | — | — | ||
| LA-BIO-174 | Laosz | x | — | — | x | — | — | ||
| MM-BIO-174 | Mianmar/Burma | x | — | — | x | — | — | ||
| MY-BIO-174 | Malajzia | x | — | — | x | — | — | ||
| PH-BIO-174 | Fülöp-szigetek | x | — | — | x | — | — | ||
| SG-BIO-174 | Szingapúr | — | — | — | x | — | — | ||
| TH-BIO-174 | Thaiföld | x | — | — | x | — | — | ||
| TW-BIO-174 | Tajvan | x | — | — | x | — | — | ||
| VN-BIO-174 | Vietnám | x | — | — | x | — | — | ||
4. Kivételek: az ökológiai termelésre való átállás időszakából származó termékek és a bor.
5. A jegyzékben való feltüntetés érvényességének vége: 2021. december 31.
"TÜV Nord Integra"
1. Cím: Statiestraat 164, 2600 Berchem (Antwerpen), Belgium
2. Internetcím: http://www.tuv-nord-integra.com
3. Érintett kódszámok, harmadik országok és termékkategóriák:
| Kódszám | Harmadik ország | Termékkategória | |||||
| A | B | C | D | E | F | ||
| BF-BIO-160 | Burkina Faso | x | — | — | x | — | — |
| CI-BIO-160 | Elefántcsontpart | x | — | — | x | — | — |
| CM-BIO-160 | Kamerun | x | — | — | x | — | — |
| CW-BIO-160 | Curaçao | x | — | — | x | — | — |
| DZ-BIO-160 | Algéria | x | — | — | x | — | — |
| EG-BIO-160 | Egyiptom | x | — | — | x | — | — |
| JO-BIO-160 | Jordánia | x | — | — | x | — | — |
| MA-BIO-160 | Marokkó | x | — | — | x | — | — |
| MG-BIO-160 | Madagaszkár | x | — | — | x | — | — |
| ML-BIO-160 | Mali | x | — | — | x | — | — |
| SN-BIO-160 | Szenegál | x | — | — | x | — | — |
4. Kivételek: az ökológiai termelésre való átállás időszakából származó termékek és a bor.
5. A jegyzékben való feltüntetés érvényességének vége: 2021. december 31.
"SIA »Sertifikācijas un testēšanas centrs«"
1. Cím: Dārza iela 12, Priekuļi, Priekuļu pagasts, Priekuļu novads, LV-4126, Lettország
2. Internetcím: www.stc.lv
3. Érintett kódszámok, harmadik országok és termékkategóriák:
| Kódszám | Harmadik ország | Termékkategória | |||||||
| A | B | C | D | E | F | ||||
| BY-BIO-173 | Belorusz | x | x | — | x | x | x | ||
| KG-BIO-173 | Kirgizisztán | x | x | — | x | x | — | ||
| KZ-BIO-173 | Kazahsztán | x | x | — | x | x | x | ||
| MD-BIO-173 | Moldova | x | x | — | x | x | x | ||
| RU-BIO-173 | Oroszország | x | x | — | x | x | x | ||
| TJ-BIO-173 | Tádzsikisztán | x | x | — | x | x | x | ||
| TM-BIO-173 | Türkmenisztán | x | — | — | — | — | — | ||
| UA-BIO-173 | Ukrajna | x | x | — | x | x | x | ||
| UZ-BIO-173 | Üzbegisztán | x | x | — | x | x | x | ||
4. Kivételek: az ökológiai termelésre való átállás időszakából származó termékek és a bor.
5. A jegyzékben való feltüntetés érvényességének vége: 2021. december 31.
V. MELLÉKLET
[Kép #2] [Kép #3] [Kép #4]

Kép #2

Kép #3

Kép #4
VI. MELLÉKLET
[Kép #5] [Kép #6]

Kép #5

Kép #6
VII. MELLÉKLET
A 20. cikkben említett megfelelési táblázat
| 345/2008/EK rendelet | 605/2008/EK rendelet | E rendelet |
| — | 1. cikk (1) bekezdés | 1. cikk |
| — | 1. cikk (2) bekezdés | — |
| — | 2. cikk, bevezető szöveg és (1) pont | 2. cikk, bevezető szöveg és (1) pont |
| — | 2. cikk, (2) pont | |
| 2. cikk, (2) pont | 2. cikk, (3) pont | |
| 2. cikk, (3) pont | 2. cikk, (4) pont | |
| 2. cikk, (4) pont | — | |
| 2. cikk, (5) pont | 2. cikk, (5) pont | |
| — | — | 3. cikk |
| — | — | 4. cikk |
| — | — | 5. cikk |
| — | — | 6. cikk |
| 1. cikk | — | 7. cikk |
| 2. cikk (1) bekezdés | — | 8. cikk (1) bekezdés |
| 2. cikk (2) bekezdés | — | 8. cikk (2) bekezdés |
| 2. cikk (3) bekezdés | — | 8. cikk (3) bekezdés |
| 2. cikk (4) bekezdés | — | 8. cikk (3) bekezdés és 9. cikk (2) bekezdés |
| — | — | 8. cikk (4) bekezdés |
| 2. cikk (5) bekezdés | 9. cikk (1) bekezdés | |
| 2. cikk (6) bekezdés | 9. cikk (3) bekezdés és 9. cikk (4) bekezdés | |
| — | — | 10. cikk |
| — | — | 11. cikk |
| — | — | 12. cikk |
| — | 3. és 4. cikk | 13. cikk |
| — | 5. cikk | 14. cikk |
| — | 6. cikk | 15. cikk |
| — | — | 16. cikk |
| — | — | 17. cikk |
| — | 7. cikk (1) bekezdés | — |
| — | 7. cikk (2) bekezdés | — |
| — | — | 18. cikk |
| — | — | 19. cikk |
| 3. cikk | 8. cikk | 20. cikk |
| 4. cikk | 9. cikk | 21. cikk |
| II. melléklet | — | — |
| — | — | I. melléklet |
| — | — | II. melléklet |
| I. melléklet | — | III. melléklet |
| — | — | IV. melléklet |
| — | I. melléklet | V. melléklet |
| — | II. melléklet | VI. melléklet |
| III. melléklet | IV. melléklet | VII. melléklet |
( 1 ) HL L 250., 2008.9.18., 1. o.
( 2 ) Az Európai Parlament és a Tanács 2004. április 29-i 882/2004/EK rendelete a takarmány- és élelmiszerjog, valamint az állat-egészségügyi és az állatok kíméletére vonatkozó szabályok követelményeinek történő megfelelés ellenőrzésének biztosítása céljából végrehajtott hatósági ellenőrzésekről (HL L 165., 2004.4.30., 1. o.).
( 3 ) Az Európai Parlament és a Tanács 2013. december 11-i 1380/2013/EU rendelete a közös halászati politikáról, az 1954/2003/EK és az 1224/2009/EK tanácsi rendelet módosításáról, valamint a 2371/2002/EK és a 639/2004/EK tanácsi rendelet és a 2004/585/EK tanácsi határozat hatályon kívül helyezéséről (HL L 354., 2013.12.28., 22. o.).
( 4 ) Az Európai Parlament és a Tanács 2004. április 29-i 852/2004/EK rendelete az élelmiszer-higiéniáról (HL L 139., 2004.4.30., 1. o.).
( 5 ) Az Európai Parlament és a Tanács 2013. október 9-i 952/2013/EU rendelete az Uniós Vámkódex létrehozásáról (HL L 269., 2013.10.10., 1. o.).
( 6 ) A Bizottság 2003/24/EK határozata (2002. december 30.) az integrált számítógépes állategészségügyi rendszer kifejlesztéséről (HL L 8., 2003.1.14., 44. o.)
( 7 ) Az Európai Parlament és a Tanács 910/2014/EU rendelete (2014. július 23.) a belső piacon történő elektronikus tranzakciókhoz kapcsolódó elektronikus azonosításról és bizalmi szolgáltatásokról, valamint az 1999/93/EK irányelv hatályon kívül helyezéséről (HL L 257., 2014.8.28., 73. o.).
( 8 ) Izrael állam területe, kivéve az 1967 júniusa óta izraeli közigazgatás alatt álló területeket, nevezetesen a Golán-fennsíkot, a Gázai övezetet, Kelet-Jeruzsálemet és Ciszjordánia többi részét.
( 9 ) Az összetevőket tanúsítania kell valamely, a 834/2007/EK rendelet 33. cikkének (3) bekezdése szerinti elismert ellenőrző szervnek vagy ellenőrző hatóságnak, illetve termelésüknek és tanúsításuknak valamely, az ugyanazon rendelet 33. cikkének (2) bekezdése alapján elismert harmadik országban vagy az Unió területén, ugyanazon rendeletnek megfelelően kell történnie.
Lábjegyzetek:
[1] A dokumentum eredetije megtekinthető CELEX: 32008R1235 - https://eur-lex.europa.eu/legal-content/HU/ALL/?uri=CELEX:32008R1235&locale=hu Utolsó elérhető, magyar nyelvű konszolidált változat CELEX: 02008R1235-20210318 - https://eur-lex.europa.eu/legal-content/HU/ALL/?uri=CELEX:02008R1235-20210318&locale=hu