32024R3094[1]
A Bizottság (EU) 2024/3094 végrehajtási rendelete (2024. november 27.) az (EU) 2019/1241 európai parlamenti és tanácsi rendelet VIII. mellékletében előírt, a balti-tengeri közönségestőkehal-állomány járulékos fogásainak csökkentésére szolgáló szelektáló eszközökre vonatkozó részletes szabályok megállapításáról
A BIZOTTSÁG (EU) 2024/3094 VÉGREHAJTÁSI RENDELETE
(2024. november 27.)
az (EU) 2019/1241 európai parlamenti és tanácsi rendelet VIII. mellékletében előírt, a balti-tengeri közönségestőkehal-állomány járulékos fogásainak csökkentésére szolgáló szelektáló eszközökre vonatkozó részletes szabályok megállapításáról
AZ EURÓPAI BIZOTTSÁG,
tekintettel az Európai Unió működéséről szóló szerződésre,
tekintettel a halászati erőforrások és a tengeri ökoszisztémák technikai intézkedések révén történő védelméről, az 1967/2006/EK és az 1224/2009/EK tanácsi rendelet, továbbá az 1380/2013/EU, az (EU) 2016/1139, az (EU) 2018/973, az (EU) 2019/472 és az (EU) 2019/1022 európai parlamenti és tanácsi rendelet módosításáról, valamint a 894/97/EK, a 850/98/EK, a 2549/2000/EK, a 254/2002/EK, a 812/2004/EK és a 2187/2005/EK tanácsi rendelet hatályon kívül helyezéséről szóló, 2019. június 20-i (EU) 2019/1241 európai parlamenti és tanácsi rendeletre (1) és különösen annak 24. cikke (1) bekezdésének a) pontjára,
mivel:
(1) Az (EU) 2019/1241 rendelet VIII. melléklete B. részének 1.3.1.1. pontja bizonyos, a halászeszközökhöz rögzített szelektáló eszközökről rendelkezik a lepényhal-alakúaknak az ICES 22-26 alkörzetben folytatott halászata során a balti-tengeri közönségestőkehal-állományból ejtett járulékos fogások csökkentése érdekében.
(2) Az említett eszközökre vonatkozó műszaki előírásokat meg kell határozni.
(3) A műszaki előírásoknak különösen a roofless szelektáló eszköz, a módosított (legalább 125 mm szembőségű, feszítőkötéllel megerősített szegélyű) T90 típusú zsákvég és a (két hálómezőből álló, legalább 125 mm legkisebb szembőségű) négyzetes szemű zsákvég használatára kell vonatkozniuk.
(4) A Halászati Tudományos, Műszaki és Gazdasági Bizottság (HTMGB) arra a következtetésre jutott (2), hogy ezek a műszaki előírások részletesek és elégségesek a végrehajtáshoz.
(5) A HTMGB a Halászati és Akvakultúraágazati Bizottság 2022. szeptemberi ülésén a tagállamok által javasolt számos további előírást is értékelt. Ezek az előírások a halászeszközök műszaki leírásának új változatát foglalják magukban. A HTMGB arra a következtetésre jutott (3), hogy a javasolt előírások egyértelműbbek és egyszerűbbek, és nem mérséklik az eszközök funkcionalitását és szelektivitását.
(6) Elegendő időt kell biztosítani a hajótulajdonosoknak arra, hogy hajóikat felszereljék az új szelektáló eszközökkel.
(7) Az e rendeletben előírt intézkedések összhangban vannak a Halászati és Akvakultúraágazati Bizottság véleményével,
ELFOGADTA EZT A RENDELETET:
1. cikk
Az (EU) 2019/1241 rendelet VIII. melléklete B. részének 1.3.1.1. pontjában említett szelektáló eszközökre vonatkozó műszaki előírásokat e rendelet melléklete tartalmazza.
2. cikk
Ez a rendelet az Európai Unió Hivatalos Lapjában való kihirdetését követő huszadik napon lép hatályba.
Ezt a rendeletet 2025. április 9-től kell alkalmazni.
Ez a rendelet teljes egészében kötelező és közvetlenül alkalmazandó valamennyi tagállamban.
Kelt Brüsszelben, 2024. november 27-én.
a Bizottság részéről
az elnök
Ursula VON DER LEYEN
(1) HL L 198., 2019.7.25., 105. o.
MELLÉKLET
I. Fogalommeghatározások
E rendelet alkalmazásában:
1. "csomó nélküli léhés": olyan négyoldalú szemekből álló hálóanyag, amelyek sarkát két egymás mellett elhelyezkedő szem oldalának fonadéka képezi;
2. "moduláris szelektálásra alkalmas háló (NEMOS)": a vonóháló utolsó kúpos szakasza és a zsákvég közé felszerelt, négyes osztatú hálószakasz, amelyet úgy alakítottak ki, hogy lehetővé tegye szelektáló eszközök felszerelését.
II. A négyzetes szemű zsákvégre vonatkozó műszaki előírások (eszközazonosító: SMC_125)
1. A zsákvég két azonos méretű, négyzetes szemű hálómezőből készüljön, amelyeket a két azonos hosszúságú oldalon egy-egy szegéllyel kell összekötni.
2. A szabad hálószemoldalak számának - a szegélyekben lévők kivételével - a toldat elülső részétől a zsákvég leghátsó részéig bármely kerület esetén állandónak kell lennie.
3. A négyzet alakú hálószemek szembősége 125 mm legyen. A léhést úgy kell rögzíteni, hogy a hálószemoldalak párhuzamosan és merőlegesen helyezkedjenek el a zsákvég hosszirányához képest.
4. A négyzetes szemű háló csomó nélküli, legalább 5 mm fonalvastagságú, fonott egyágú fonalból vagy hasonló, bizonyítottan szelektív jellemzőkkel rendelkező léhésből álljon.
5. A zsákvég kerületén legfeljebb 50 szabad hálószemoldal lehet.
6. A négyzetes szemű hálószakasz hossza legalább 5,5 m legyen.
7. A négyzetes szemű zsákvég elülső végét a vonóháló rombusz alakú hálószemekből álló léhéséhez kell rögzíteni, minden egyes (négyzetes) hálószemoldalt 2 (rombuszos) hálócsomóhoz illesztve.
8. A zsákkötél felszerelésének és működtetésének megkönnyítéséhez a négyzetes szemű zsákvég hátsó végére rombusz alakú szemekből álló hálószakaszt kell elhelyezni, 2 hálócsomóként (rombusz alakú hálószemek) 1 hálószemoldal (négyzetes hálószemek) illesztési aránnyal. A négyzetes szemű háló legfeljebb négy hálószemnyire lehet a zsákkötéltől, beleértve azt a kézi kötésű hálószemsort is, amelyen keresztül a zsákkötelet átfűzik. A rombusz alakú hálószemek legkisebb szembősége 105 mm, anyaguk pedig polietilén szál legyen, amelynek vastagsága egyszálas fonalnál legfeljebb 6 mm, kétszálas fonalnál pedig legfeljebb 4 mm.
9. A jogi követelményeknek megfelelő négyzetes szemű zsákvégre az 1. ábrán látható példa.
1. ábra

III. A módosított T90 típusú zsákvégre vonatkozó műszaki előírások (eszközazonosító: T90_125_2P_LR)
1. A zsákvég szembősége legalább 125 mm legyen.
2. A fonal anyaga polietilén szál legyen, amelynek vastagsága egyszálas fonalnál legfeljebb 6 mm, duplaszálas fonalnál pedig legfeljebb 4 mm.
3. A zsákvég hosszát a zsákvég egyes szegélyeihez rögzített, kifeszített feszítőkötél hossza határozza meg. A feszítőkötél hossza legalább 6 m legyen.
4. A feszítőkötél anyaga legalább 18 mm átmérőjű PP Danline kötél legyen.
5. A feszítőkötelek szegélyekhez való rögzítésének egységesnek kell lennie, 90 cm-nyi kötelenként 10 zsákvéghálószemmel.
6. A T90 típusú zsákvéget a zsákvégre előírttal azonos léhésből készült, T90 típusú toldathoz, vagy a vonóháló szelektív hálószakaszához kell csatlakoztatni.
7. A szigorú értelemben vett zsákvég és a toldat tetszőleges kerületén a hálószemek száma - az illesztések és szegélyek kivételével - körben legfeljebb 50 hálószem lehet.
8. A módosított T90 típusú zsákvégre a 2. ábrán látható szemléltető példa.
2. ábra

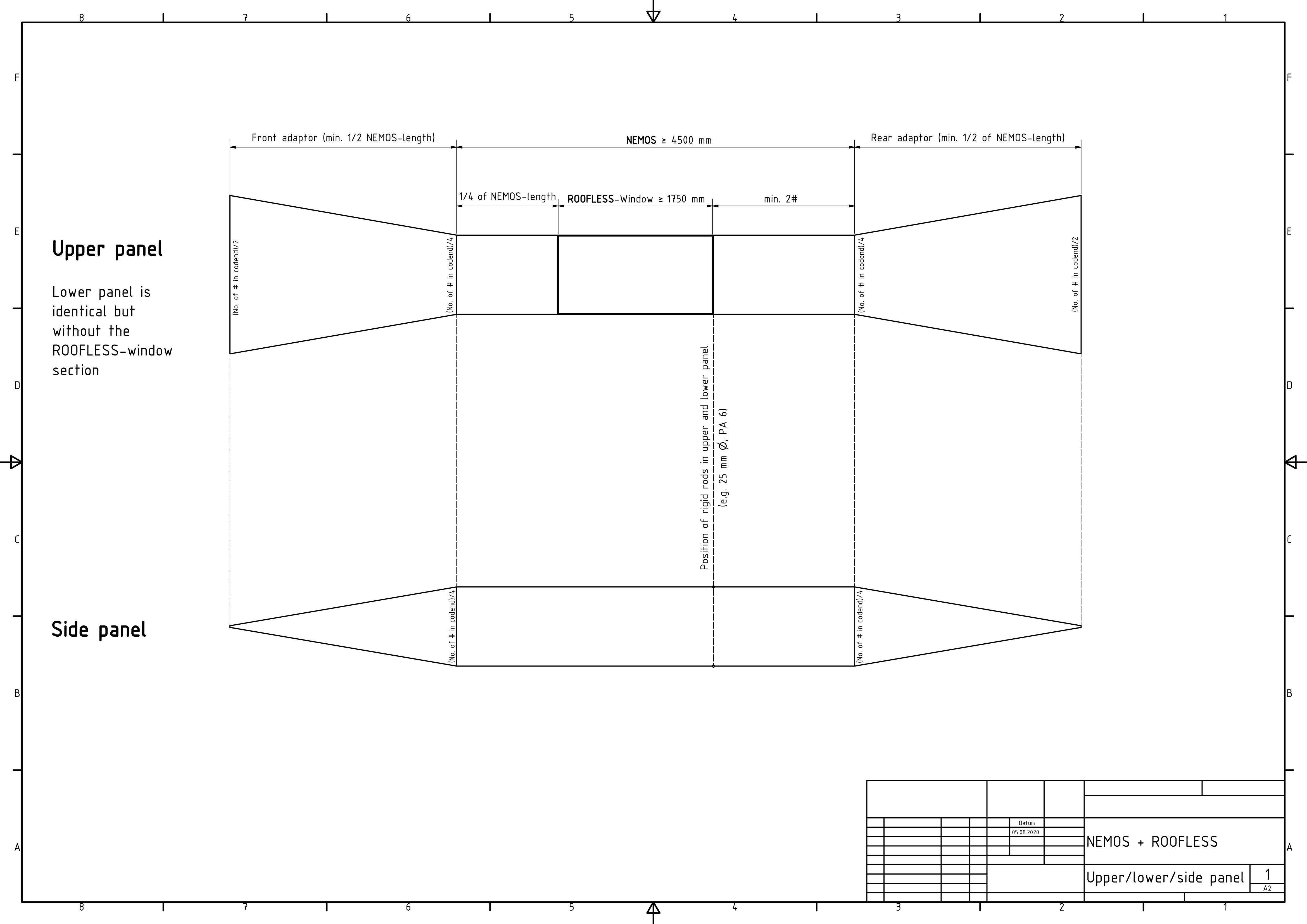
IV. A NEMOS és a ROOFLESS eszközre vonatkozó műszaki előírások (eszközazonosító: NEMOS+RL175) - a) NEMOS
1. A NEMOS eszköznek négy egyenlő szélességű, legalább 4,5 méter hosszúságú hálómezőből kell állnia.
2. A NEMOS eszköz négy hálómezője hagyományos rombuszos szemű léhésből készüljön, és ugyanaz legyen a névleges (feszített) hálószembősége, mint annak a zsákvégnek, amelyhez rögzítik (a zsákvég típusától függetlenül).
3. A NEMOS eszköz egyes hálómezőinek szélességében az eszközhöz rögzített rombuszos szemű zsákvég kerületén lévő szabad hálószemek számának 25 %-ával megegyező, a négyzetes szemű vagy a T90 típusú zsákvég kerületén lévő szabad hálószemek számának pedig 50 %-ával azonos számú szabad hálószem legyen (a szegélyekben lévő hálószemek kivételével).
4. Két hálómezőből álló vonóhálóhoz rögzítés esetén biztosítani kell, hogy a NEMOS eszköz elülső szélét ugyanabból a hálóanyagból készült 2-4 hálómezős adapterrel, a NEMOS eszköz legalább felével megegyező hosszúságban össze lehessen kapcsolni a vonóhálótesttel.
5. Két hálómezőből álló zsákvéghez rögzítés esetén a NEMOS eszköz hátsó szélét a 4. pontban leírt adapterrel, de fordított elrendezésben kell csatlakoztatni a zsákvéghez.
6. A stabil keresztmetszetének biztosításához a NEMOS eszközt opcionálisan további elemekkel, például úszókkal és súlyokkal is fel lehet szerelni.
b) ROOFLESS
1. A szelektálóablak egy egyenes szegélyű, négyszögletes hálószakaszból álljon.
2. A szelektálóablak legalább 175 cm hosszúságú legyen. Az ablak szélessége egyezzen meg a NEMOS eszköz felső hálómezőjének a szegélyek hálószemei nélkül vett szélességével.
3. A szelektálóablak elülső szélét a felső hálómező teljes hosszának 25 %-ánál (± két hálószem) kell elhelyezni, gondoskodva arról, hogy a hálómező hátsó szélétől legalább 2 hálószemre végződjön.
c) A NEMOS ÉS A ROOFLESS ESZKÖZRE VONATKOZÓ EGYÉB ELŐÍRÁSOK
1. A közvetlenül a szelektálóablak előtti felső hálómezőt két, egymás után sorba felszerelt úszóval kell megemelni. Az úszók átmérője legalább 200 mm legyen.
2. Felszerelés esetén az úszókat az alsó, a súlyokat pedig a felső szegélyhez sorokban kell rögzíteni. A NEMOS eszköz azon szakaszán, ahol a ROOFLESS eszközt alakítják ki, nem lehet úszó és súly. Az úszókat és a súlyokat a bal és a jobb oldalon párban kell használni. A felső szegélyhez rögzített minden egyes úszósort az alsó szegélyen egy sor súllyal kell párosítani. Azért, hogy függőleges irányban ne nyúljon meg túlságosan a NEMOS eszköz (és ne juthasson ki kevesebb közönséges tőkehal), a súlysorok negatív felhajtóereje nem haladhatja meg a 4 kg/m értéket, míg az úszósorok legfeljebb hat, egyenként legfeljebb 120 mm átmérőjű egységből állhatnak.
3. A hálómezőnek a szelektálóablak utáni szélét a léhéshez csatlakoztatott merev rúddal kell stabilizálni, 0,3 és 0,4 közötti merülési aránynál. Egy további, azonos jellemzőkkel és hosszal rendelkező, merev rudat kell rögzíteni az alsó hálómezőhöz, közvetlenül a felső hálómező merev rúdja alá.
4. A NEMOS és a ROOFLESS eszközt a 3. és a 4. ábra szemlélteti.
3. ábra

A lepényhal-halászat során a közönséges tőkehal járulékos fogásainak csökkentésére szolgáló eszközként kifejlesztett NEMOS+ROOFLESS eszközkombináció felépítésének részletei és izometrikus nézete.
4. ábra

A NEMOS+ROOFLESS eszközkombináció sematikus műszaki rajza (felül- és oldalnézet).
ELI: http://data.europa.eu/eli/reg_impl/2024/3094/oj
ISSN 1977-0731 (electronic edition)
Lábjegyzetek:
[1] A dokumentum eredetije megtekinthető CELEX: 32024R3094 - https://eur-lex.europa.eu/legal-content/HU/ALL/?uri=CELEX:32024R3094&locale=hu